+14 fotó
Hirdetéskód: 8773114
Referenciaszám: M315663-5076149
Frissítve: 19 napja
Hajdúszoboszló eladó téglalakás 2 szobás: 77,5 millió Ft
77,5 millió Ft
1 091 549 Ft/m²
71 m²
2 szoba
1. emelet
Eladó Lakás, Hajdúszoboszló
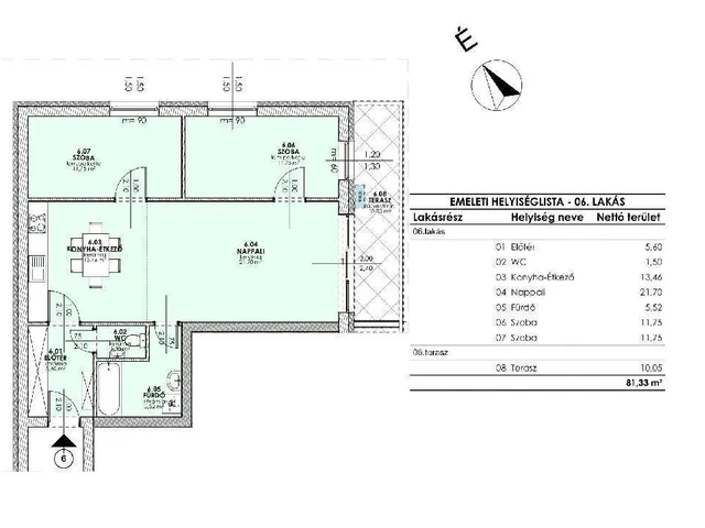
Hajdúszoboszló központjában újépítésű társasházban 1. emeleti 71,3nm-es lakás várja első tulajdonosát!
A társasházban két szinten összesen 11 lakás kerül kivitelezésre.
Az ingatlan 2024 év végén került átadásra.
Főbb paraméterek a következőek:
-Porotherm 30-as tégla falazat 15cm hőszigeteléssel, Porotherm 10-es válaszfalak
-Belső és külső nyílászárók: műanyag tok- és szárnyszerkezetűek, 3 rétegű hőszigetelt üvegezéssel , kívül barna-belül fehér színben, belső egyedi CPL ajtók, tele ajtólapokkal
-Bejárati ajtók: hőszigetelt, fokozott légzárású, öt ponton záródó műanyag ajtó
-Hőszivattyús rendszer (padlófűtés és mennyezeti hűtés-fűtés)
-10nm-es terasz
Helyiségek:
-Előszoba, WC+mosdó, amerikai konyhás nappali, fürdőszoba, 2 hálószoba
Az ingatlan vételára magában foglalja:
-Felszíni beálló 2.5mFt értékben
-Beépített konyhabútor gépesítve
-Világítástechnikák
A lakás ára tartalmazza az 5% áfát, amely CSOK igénybe vétele esetén visszaigényelhető!
Az OTP bankcsoport teljes körű ügyintézéssel áll rendelkezésre az eladók és a vevők részére!
Helyszíni bejárás során teljes dokumentációt, műszaki tartalomról szóló leírást biztosítunk a korrekt tájékoztatás érdekében!
További kérdéseivel, megtekintésre való egyeztetés kapcsán keressen bátran a hét bármely napján!
Tulajdonságok
Téglalakás
Új építésű
Hőszivattyú
2024
Nem adta meg a hirdető
Vedd fel a kapcsolatot a hirdetővel
Hódos Gergő OTPip - Hajdúszoboszló Bethlen utca 23 - OTP Ingatlanpont Iroda Az iroda összes hirdetése
+36 70 595 3
Hitelkalkulátor
Második évtől
333 525 Ft A 13. hónaptól
7,99% 8,49%
Végig fix Futamidő: 20 év Banki visszahívás
Az OTP Bank munkatársai a neked megfelelő napszakban veszik fel veled a kapcsolatot. A becslés a hirdető által megadott adatokon alapul. A jelen tájékoztatás nem minősül ajánlattételnek és nem teljes körű, az egyes feltételek a hitelbírálat eredményétől függően változhatnak. Kérjük, a részletekről tájékozódj az OTP Bank fiókjaiban vagy az OTP Bank honlapján közzétett vonatkozó Üzletszabályzatokból és Hirdetményekből.
Vedd fel a kapcsolatot a hirdetővel
Hódos Gergő OTPip - Hajdúszoboszló Bethlen utca 23 - OTP Ingatlanpont Iroda Az iroda összes hirdetése
+36 70 595 3
Vedd fel a kapcsolatot a hirdetővel
Hódos Gergő OTPip - Hajdúszoboszló Bethlen utca 23 - OTP Ingatlanpont Iroda Az iroda összes hirdetése
+36 70 595 3
UI_KIT.CHARACTER_COUNTER__COMPONENT.REMAINING_SPACE__SR_ONLYUI_KIT.CHARACTER_COUNTER__COMPONENT.MAXIMUM_CHARACTER__SR_ONLY
Hasonló eladó ingatlanok Hajdúszoboszlón
Frissítve: 22 napja
12
84,9 M Ft 1 035 366 Ft/m²
Eladó lakás, Hajdúszoboszló

Frissítve: 19 napja
12
84,9 M Ft 1 035 366 Ft/m²
Eladó lakás, Hajdúszoboszló

Frissítve: 19 napja
11
70,8 M Ft 1 264 286 Ft/m²
Eladó lakás, Hajdúszoboszló


Fedezd fel a
hasonló lakásokat!Még további lakások Hajdúszoboszlón 77,5 M Ft körüli értékben
Tovább a hirdetésekhez Frissítve: 12 napja
20
82 M Ft 872 341 Ft/m²
Eladó lakás, Hajdúszoboszló

Frissítve: 19 napja
16
73 M Ft 1 042 857 Ft/m²
Eladó lakás, Hajdúszoboszló

Frissítve: 2 napja
11
70,8 M Ft 1 264 286 Ft/m²
Eladó lakás, Hajdúszoboszló

