Hirdetéskód: 8893419
Referenciaszám: 2518256
Frissítve: ma
Hatvan eladó téglalakás 2 szobás: 46 millió Ft
46 millió Ft
1 210 526 Ft/m²
38 m²
2 szoba
Leírás
Hatvan központhoz közeli részén megbízható referenciákkal rendelkező építő által, kizárólag minőségi anyagok felhasználásával épült 38,5nm-es teraszkapcsolatos lakás eladó!
Műszaki paraméterek:
- 30-as tégla falazat + 15cm vastag dryvit szigetelés,
- monolit vasbeton födém,
- 22-27cm tetőszigetelés,
- 3 réteg üvegezésű hőszigetelt nyílászárók fehér műanyag tokban,
- több ponton záródó műanyag bejárati ajtó,
- kívül műkő vagy műanyag párkány, belül gipszkarton fehér festéssel,
- kondenzációs gázkazán padlófűtéssel,
- 3,5 kW-os inverteres hűtő-fűtő klíma,
- 1,32A áram,
- hanggátló falazat
Elosztás:
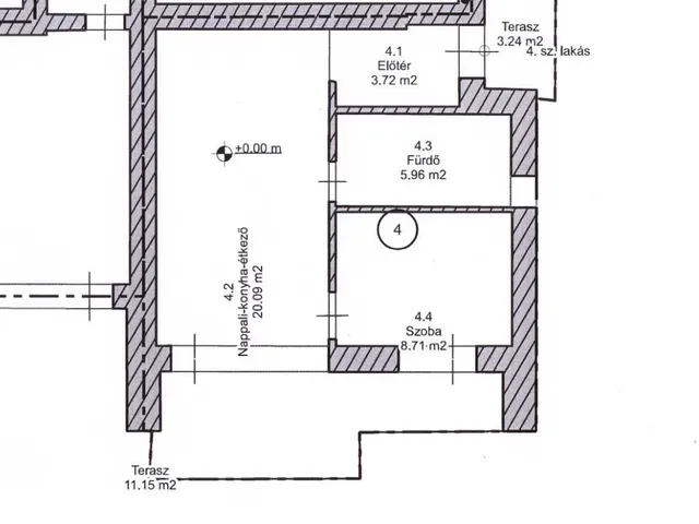
- előtér, nappali-konyha-étkező, egy szoba, fürdőszoba + 14,39nm terasz
Telek:
- kiskaputól a bejáratig térkő borítás (4.000.-Ft/m2),
- a kert durva tereprendezéssel, teljes építkezésben keletkező hulladék elszállítással kerül átadásra,
- a közös területek parkosítása a látványtervek szerint lesz megvalósítva,
- parkoláshoz térkövezet kocsibeálló áll majd rendelkezésre,
- a kert előregyártott betonelemes kerítéssel lesz elválasztva, utcafronton színes WPC szegmensekkel szerelt kerítéssel
Nagyon jó környék, a városközpont, iskola, óvoda, bevásárlási lehetőség stb. autóval kb. 5 percre van.
Az ingatlant számos referenciával rendelkező, megbízható kivitelező építi! CSOK+, Otthon Start hitel és ehhez kapcsolódó kedvezmények igénybe vehetők!
A lakóparkban több társasház is kialakításra kerül! Bővebb információkért hívjon bizalommal!
Irányár: 46Mft
Hivatkozási szám: 2518256.
Megtekinthető telefonos időpont egyeztetés alapján:
Sápi Tamás +36 20 944-7025 sapitamas@godolloi.hu
GÖDÖLLŐ INGATLANKÖZPONT - www.godolloi.hu: Gödöllő és környéke legnagyobb ingatlan választéka /Gödöllő, Szada, Veresegyház, Kistarcsa, Kerepes, Erdőkertes/ eladó-kiadó családi ház, telek, lakás! Ingatlan építés és felújítás!
Tulajdonságok
Téglalakás
1
Új építésű
Gázkazán
2026
Nem adta meg a hirdető
Vedd fel a kapcsolatot a hirdetővel
+36 20 944 7
Hitelkalkulátor
Második évtől
197 963 Ft A 13. hónaptól
7,99% 8,49%
Végig fix Futamidő: 20 év Banki visszahívás
Az OTP Bank munkatársai a neked megfelelő napszakban veszik fel veled a kapcsolatot. A becslés a hirdető által megadott adatokon alapul. A jelen tájékoztatás nem minősül ajánlattételnek és nem teljes körű, az egyes feltételek a hitelbírálat eredményétől függően változhatnak. Kérjük, a részletekről tájékozódj az OTP Bank fiókjaiban vagy az OTP Bank honlapján közzétett vonatkozó Üzletszabályzatokból és Hirdetményekből.
Vedd fel a kapcsolatot a hirdetővel
+36 20 944 7
Vedd fel a kapcsolatot a hirdetővel
+36 20 944 7
UI_KIT.CHARACTER_COUNTER__COMPONENT.ACTUAL_CHARACTER__SR_ONLY UI_KIT.CHARACTER_COUNTER__COMPONENT.MAXIMUM_CHARACTER__SR_ONLY
Hasonló eladó ingatlanok Hatvanban
Frissítve: ma
17
46,2 M Ft 997 194 Ft/m²
Eladó lakás, Hatvan

Frissítve: ma
8
43 M Ft 934 783 Ft/m²
Eladó lakás, Hatvan
Frissítve: ma
20
50 M Ft 555 556 Ft/m²
Eladó lakás, Hatvan, Klapka utca


Fedezd fel a
hasonló lakásokat!Még további lakások Heves megyében 46 M Ft körüli értékben
Tovább a hirdetésekhez Frissítve: ma
15
46,9 M Ft 919 608 Ft/m²
Eladó lakás, Hatvan

Frissítve: ma
8
41,9 M Ft 710 170 Ft/m²
Eladó lakás, Hatvan

Frissítve: ma
8
41,9 M Ft 710 169 Ft/m²
Eladó lakás, Hatvan

