
Hirdetéskód: 8576020
Referenciaszám: M304283
Frissítve: 10 napja
Hegyeshalom eladó téglalakás 3 szobás: 56,5 millió Ft
56,5 millió Ft
946 558 Ft/m² *
* A m² árat a hirdető adta meg.
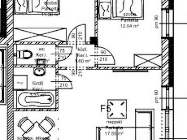
59 m²
3 szoba
Leírás
Győr-Moson-Sopron vármegyében, Hegyeshalomban modern, új építésű lakások leköthetők, kiváló műszaki tartalommal és minőségi beépített anyagokkal. Az épületek monolit vasbeton vázszerkezettel készülnek, falazatuk 30 cm vastag Porotherm tégla, míg a válaszfalak 10 cm-es hanggátló téglából épülnek. A homlokzati hőszigetelés 20 cm vastagságú Polisztirol Dryvit rendszerrel biztosított.
A földszinti lakások kizárólagos használatú kerttel rendelkeznek, míg az emeleti lakásokhoz tágas erkély tartozik. Igény szerint tárolók, parkolók és garázsok is vásárolhatók. A fűtésről és melegvízellátásról központi hőszivattyú gondoskodik, padlófűtéssel és egyedi hőmennyiségmérővel.
A projekt nyugodt, zöld környezetben valósul meg, napfényes és tágas lakásokkal, praktikus alaprajzokkal és modern megoldásokkal. Több éves tapasztalattal rendelkező kivitelező garantálja a minőséget és a kiemelkedő bérbeadhatóságot, garantált bérleti díjjal. OTTHON START HITELPROGRAM!
Amennyiben további kérdése van, forduljon hozzánk bizalommal elérhetőségeinken.
Tulajdonságok
Téglalakás
Új építésű
2025
Nem adta meg a hirdető
Vedd fel a kapcsolatot a hirdetővel
+36 70 622 9
Hitelkalkulátor
Második évtől
243 150 Ft A 13. hónaptól
7,99% 8,49%
Végig fix Futamidő: 20 év Banki visszahívás
Az OTP Bank munkatársai a neked megfelelő napszakban veszik fel veled a kapcsolatot. A becslés a hirdető által megadott adatokon alapul. A jelen tájékoztatás nem minősül ajánlattételnek és nem teljes körű, az egyes feltételek a hitelbírálat eredményétől függően változhatnak. Kérjük, a részletekről tájékozódj az OTP Bank fiókjaiban vagy az OTP Bank honlapján közzétett vonatkozó Üzletszabályzatokból és Hirdetményekből.
Vedd fel a kapcsolatot a hirdetővel
+36 70 622 9
Vedd fel a kapcsolatot a hirdetővel
+36 70 622 9
UI_KIT.CHARACTER_COUNTER__COMPONENT.REMAINING_SPACE__SR_ONLYUI_KIT.CHARACTER_COUNTER__COMPONENT.MAXIMUM_CHARACTER__SR_ONLY
Hasonló eladó ingatlanok Hegyeshalomon
Frissítve: 10 napja

1
56,5 M Ft 946 558 Ft/m²
Eladó lakás, Hegyeshalom

Frissítve: 2 napja

1
56,5 M Ft 957 627 Ft/m²
Eladó lakás, Hegyeshalom

Frissítve: 17 napja

1
56,5 M Ft 957 627 Ft/m²
Eladó lakás, Hegyeshalom


Fedezd fel a
hasonló lakásokat!Még további lakások Győr-Moson-Sopron megyében 56,5 M Ft körüli értékben
Tovább a hirdetésekhez Frissítve: 10 napja

6
60,12 M Ft 724 303 Ft/m²
Eladó lakás, Mosonszolnok
Frissítve: 11 napja

10
I. ütem
55,39 M Ft 1 023 057 Ft/m²
Eladó lakás, Győr

Frissítve: 11 napja

10
I. ütem
54,26 M Ft 1 000 000 Ft/m²
Eladó lakás, Győr


Töltsd fel hirdetésed ingyenesen!
Egyszerű