+12 fotó
Zenga
Premier
Hirdetéskód: 8991278
Referenciaszám: M327712
Feltöltve: ma
Kazincbarcika eladó téglalakás 2 szobás: 17 millió Ft
17 millió Ft
361,7 ezer Ft/m² *
* A m² árat a hirdető adta meg.
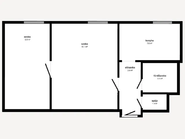
47 m²
2 szoba
3. emelet

Friss hirdetések, amiket nem találsz meg más ingatlankereső portálon.
Fedezd fel elsőként a Zenga Premier címkés eladó ingatlanokat! További részletek A Duna House, OTP Ingatlanpont, Otthon Centrum és további hálózatok új, kizárólagos hirdetéseinek nagy részét a zenga.hu és koltozzbe.hu ingatlankeresőn láthatod legelőször, és a feltöltéstől két hétig nem érhetők el más ingatlankeresőn!
Leírás
Kazincbarcika városában, az Építők útján, 2 szobás, 47 m2-es, 3. emeleti, tehermentes, felújítandó lakás eladó tégla épületben. Vételár kifizetése után azonnal birtokba vehető. Az ablakok és a bejárati ajtó műanyag, hőszigetelt. A fűtésről gáz-konvektorok, a melegvízről 1 éves villanybojler gondoskodik. A fürdőszoba teljesen felújított, a vízvezetékeket is cserélték. Csendes, zárható lépcsőház, kulturált lakóközösség. OTP Banki hátterünknek köszönhetően finanszírozási igényekben (pl. Otthon Start Hitelprogram, Babaváró, Falusi CSOK, CSOK Plusz, Lakáshitel, Személyi kölcsön stb.), illetve biztosítások tekintetében is díjmentesen, soron kívüli ügyintézéssel segítem ügyfeleim! Érdeklődés esetén hivatkozzon az M327712 referenciaszámra!
Tulajdonságok
Téglalakás
Felújítandó
Gáz (konvektor)
1960
Nem adta meg a hirdető
Vedd fel a kapcsolatot a hirdetővel
+36 20 491 1
Hitelkalkulátor
Második évtől
73 160 Ft A 13. hónaptól
7,99%
Végig fix Futamidő: 20 év Banki visszahívás
Az OTP Bank munkatársai a neked megfelelő napszakban veszik fel veled a kapcsolatot. A becslés a hirdető által megadott adatokon alapul. A jelen tájékoztatás nem minősül ajánlattételnek és nem teljes körű, az egyes feltételek a hitelbírálat eredményétől függően változhatnak. Kérjük, a részletekről tájékozódj az OTP Bank fiókjaiban vagy az OTP Bank honlapján közzétett vonatkozó Üzletszabályzatokból és Hirdetményekből.
Vedd fel a kapcsolatot a hirdetővel
+36 20 491 1
Vedd fel a kapcsolatot a hirdetővel
+36 20 491 1
UI_KIT.CHARACTER_COUNTER__COMPONENT.ACTUAL_CHARACTER__SR_ONLY UI_KIT.CHARACTER_COUNTER__COMPONENT.MAXIMUM_CHARACTER__SR_ONLY
Hasonló eladó ingatlanok Belváros városrészben
Frissítve: 21 napja
17
15,9 millió Ft 361,4 ezer Ft/m²
Eladó lakás, Kazincbarcika

Frissítve: 3 napja
6
18 millió Ft 300 ezer Ft/m²
Eladó lakás, Kazincbarcika

Frissítve: 17 napja
5
17 millió Ft 298,2 ezer Ft/m²
Eladó lakás, Kazincbarcika


Fedezd fel a
hasonló lakásokat!Még további lakások Borsod-Abaúj-Zemplén megyében 17 M Ft körüli értékben
Tovább a hirdetésekhez Feltöltve: 1 éve
1
18,2 millió Ft 364 ezer Ft/m²
Eladó lakás, Kazincbarcika
Frissítve: 21 napja
17
15,9 millió Ft 361,4 ezer Ft/m²
Eladó lakás, Kazincbarcika

Frissítve: 1 hónapja
5
18 millió Ft 461,5 ezer Ft/m²
Eladó lakás, Kazincbarcika, Békeváros, Építők útja
