+15 fotó
Hirdetéskód: 8941966
Referenciaszám: LK079313-5182606
Feltöltve: ma
Kecskemét eladó téglalakás 3 szobás: 130 millió Ft
130 millió Ft
1 511 628 Ft/m²
86 m²
3 szoba
földszint
Eladó lakás, Kecskemét
Prémium újépítésű lakás eladó Kecskemét belvárosában
Kecskemét szívében, a belvárosi övezetben kínálunk megvásárlásra egy kivételesen igényes kivitelezésű, 87 négyzetméteres, földszinti lakást. Az ingatlan 2026-ban épült, azonnal költözhető, és a kecskeméti ingatlanpiacon ritkaságnak számító minőséget képvisel: egy gondosan felújított, egykori polgári ház karaktere és a modern, energiahatékony műszaki tartalom ötvöződik benne. A mindössze 4 lakásos társasház intim, csendes közösséget jelent, ahol nem kell tömegházak zsúfoltságával számolni.
Az ingatlan ára 130 millió forint, amelyhez kötelezően hozzátartozik egy zárt udvari autóbeálló elektromos töltővel, 5 millió forint értékben.
Főbb paraméterek
Típus: lakás, eladó
Település: Kecskemét belváros, Bács-Kiskun megye
Alapterület: 87 nm
Szobák száma: 3 (nappali + 2 külön nyíló hálószoba)
Emelet: földszint
Épület típusa: tégla, 4 lakásos társasház
Építés éve: 2026
Állapot: új építésű, azonnal költözhető
Fűtés: hőszivattyús padlófűtés, H tarifa
Hűtés: mennyezeti hűtés
Tájolás: délnyugati
Kilátás: udvari kert, belső kert
Parkolás: zárt udvari autóbeálló elektromos töltővel (kötelező, +5 millió Ft)
Lift: nincs
Erkély/terasz: nincs
Ár: 130 millió Ft + 5 millió Ft (parkoló)
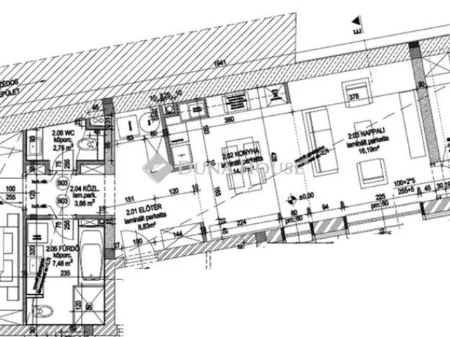
Elrendezés és a terek
A lakás alaprajza tágas, jól átgondolt elrendezést kínál: nappali mellé 2 külön nyíló hálószoba csatlakozik, összesen 3 helyiséggel. A 87 négyzetméteres alapterület kellő mozgásteret biztosít egyedülállóknak, párnak és kisebb családnak egyaránt. A tájolás délnyugati, így a lakás egész nap napfényes, ami különösen értékes egy belvárosi, földszinti elhelyezkedés esetén. A kilátás az udvari kertre, belső kertre nyílik, ami kellemes, zöld vizuális környezetet teremt az utcai forgalomtól elvonulva.
Prémium műszaki tartalom és energiahatékonyság
Az ingatlan legfontosabb erénye az átlag feletti műszaki felszereltség, amely hosszú távon alacsony rezsiköltséget és magas komfortszintet biztosít. A fűtést hőszivattyús padlófűtés biztosítja H tarifán, amely az egyik legkorszerűbb és legolcsóbban üzemeltethető fűtési rendszer. A nyári hónapokban mennyezeti hűtés gondoskodik a megfelelő hőérzetről, klimatizáló berendezés nélkül is. A vízlágyító berendezés a csövek és a háztartási gépek élettartamát növeli, és megkíméli a lakókat a kemény víz okozta kellemetlenségektől.
A nyílászárók prémium minőségű fa szerkezetből készültek, szúnyoghálóval ellátva. Az elektromos redőnyök automatikus árnyékolást biztosítanak, ami különösen napfényes, déli tájolású lakásnál jelent valódi kényelmet. A burkolatok és a világítótestek egyaránt prémium kategóriás anyagokból készültek, a konyhabútor beépített gépekkel van felszerelve, így a lakás teljes értékű, azonnal beköltözhető állapotban van.
Parkolás és elektromos autótöltő
A zárt udvari autóbeálló elektromos töltőállomással felszerelt, ami a növekvő elektromosautó-állomány fényében egyre nagyobb értéket jelent. Az ilyen elhelyezkedésű, biztonságos, zárt parkolóhely Kecskemét belvárosában különösen keresett, és a lakás értékét jelentősen növeli. A beálló ára 5 millió forint, és a vásárlással együtt kötelezően megvásárolandó.
Hívj még ma, és megmutatom!
(30) 474 6890
Jobbágy Miklós Ingatlanos Duna House
Hívjon! (30) 474 6890
Referencia szám: LK079313
Tulajdonságok
Téglalakás
Új építésű
Hőszivattyú
2026
Nem adta meg a hirdető
Vedd fel a kapcsolatot a hirdetővel
+36 76 998 5
Hitelkalkulátor
Második évtől
559 461 Ft A 13. hónaptól
7,99% 8,49%
Végig fix Futamidő: 20 év Banki visszahívás
Az OTP Bank munkatársai a neked megfelelő napszakban veszik fel veled a kapcsolatot.Hitelfelvétel esetén akár egy héttel rövidebb lehet az ügyintézés.
Ez az ingatlan a nálunk meglévő adatok alapján azonnali értékbecslésre alkalmas lehet.
A becslés a hirdető által megadott adatokon alapul. A jelen tájékoztatás nem minősül ajánlattételnek és nem teljes körű, az egyes feltételek a hitelbírálat eredményétől függően változhatnak. Kérjük, a részletekről tájékozódj az OTP Bank fiókjaiban vagy az OTP Bank honlapján közzétett vonatkozó Üzletszabályzatokból és Hirdetményekből.
Vedd fel a kapcsolatot a hirdetővel
+36 76 998 5
Vedd fel a kapcsolatot a hirdetővel
+36 76 998 5
UI_KIT.CHARACTER_COUNTER__COMPONENT.ACTUAL_CHARACTER__SR_ONLY UI_KIT.CHARACTER_COUNTER__COMPONENT.MAXIMUM_CHARACTER__SR_ONLY
Hasonló eladó ingatlanok Kecskeméten
Frissítve: 1 hónapja
5
118 M Ft 1 053 571 Ft/m²
Eladó lakás, Kecskemét
Frissítve: 2 napja
18
125 M Ft 892 092 Ft/m²
Eladó lakás, Kecskemét

Frissítve: 1 hónapja
8
130 M Ft 1 354 167 Ft/m²
Eladó lakás, Kecskemét

Fedezd fel a
hasonló lakásokat!Még további lakások Kecskeméten 130 M Ft körüli értékben
Tovább a hirdetésekhez Frissítve: ma
18
125 M Ft 892 857 Ft/m²
Eladó lakás, Kecskemét

Frissítve: 18 napja
18
125 M Ft 892 857 Ft/m²
Eladó lakás, Kecskemét

Frissítve: 17 napja
18
125 M Ft 892 857 Ft/m²
Eladó lakás, Kecskemét

