+9 fotó
Hirdetéskód: 8919843
Referenciaszám: M324001-5167459
Feltöltve: 3 napja
Komló eladó téglalakás 2 szobás: 35,4 millió Ft
35,4 millió Ft
680 769 Ft/m²
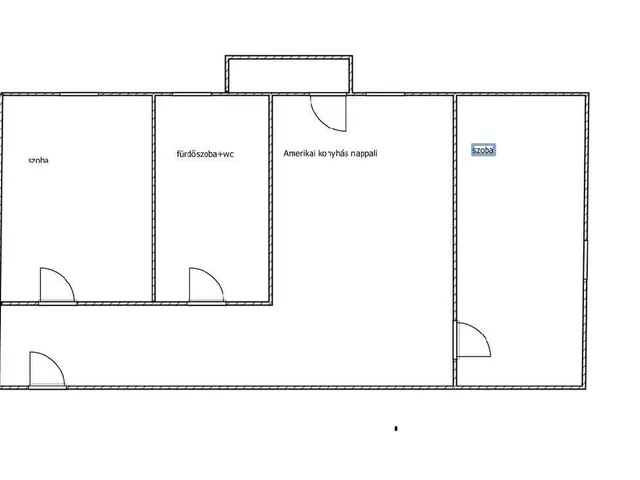
52 m²
2 szoba
1. emelet
Eladó Lakás, Komló
Azonnal költözhető, felújított 52 nm-es tégla lakás Komlón!
Kökönyös városrészben, 1. emeleten eladó erkélyes, 2 hálószoba + amerikai konyhás nappali elrendezésű ingatlan.
Modern megoldásokkal: infra padlófűtés, új nyílászárók, elektromos redőnyök, gépesített konyha, kényelmes nagy zuhanyzós fürdőszoba.
Kiváló közlekedés Pécs felé, iskola és óvoda a közelben.
Ne maradj le, hívj még ma, nézzük meg együtt!
M324001
Tulajdonságok
Téglalakás
Felújított
Elektromos
1970
Nem adta meg a hirdető
Vedd fel a kapcsolatot a hirdetővel
+36 30 819 4
Hitelkalkulátor
Második évtől
152 345 Ft A 13. hónaptól
7,99%
Végig fix Futamidő: 20 év Banki visszahívás
Az OTP Bank munkatársai a neked megfelelő napszakban veszik fel veled a kapcsolatot. A becslés a hirdető által megadott adatokon alapul. A jelen tájékoztatás nem minősül ajánlattételnek és nem teljes körű, az egyes feltételek a hitelbírálat eredményétől függően változhatnak. Kérjük, a részletekről tájékozódj az OTP Bank fiókjaiban vagy az OTP Bank honlapján közzétett vonatkozó Üzletszabályzatokból és Hirdetményekből.
Vedd fel a kapcsolatot a hirdetővel
+36 30 819 4
Vedd fel a kapcsolatot a hirdetővel
+36 30 819 4
UI_KIT.CHARACTER_COUNTER__COMPONENT.ACTUAL_CHARACTER__SR_ONLY UI_KIT.CHARACTER_COUNTER__COMPONENT.MAXIMUM_CHARACTER__SR_ONLY
Hasonló eladó ingatlanok Komlón
Frissítve: 20 napja
20
34,5 M Ft 616 072 Ft/m²
Eladó lakás, Komló

Frissítve: 17 napja
20
34,5 M Ft 616 071 Ft/m²
Eladó lakás, Komló

Frissítve: 13 napja
20
33,9 M Ft 605 357 Ft/m²
Eladó lakás, Komló


Fedezd fel a
hasonló lakásokat!Még további lakások Komlón 35,4 M Ft körüli értékben
Tovább a hirdetésekhez Frissítve: ma
20
34,5 M Ft 616 071 Ft/m²
Eladó lakás, Komló

Frissítve: 20 napja
20
33,9 M Ft 605 357 Ft/m²
Eladó lakás, Komló

Feltöltve: 1 hónapja
10
34,6 M Ft 629 091 Ft/m²
Eladó lakás, Komló, Kossuth Lajos utca
