

 +18 fotó 
Hirdetéskód: 8768369
Referenciaszám: 389124
 Feltöltve: 1 napja 
Mende eladó téglalakás 2+1 fél szobás: 49,9 millió Ft
 49,9 millió Ft 
 978 431 Ft/m² 
 51 m²  
 2+1 fél szoba 
 1. emelet  
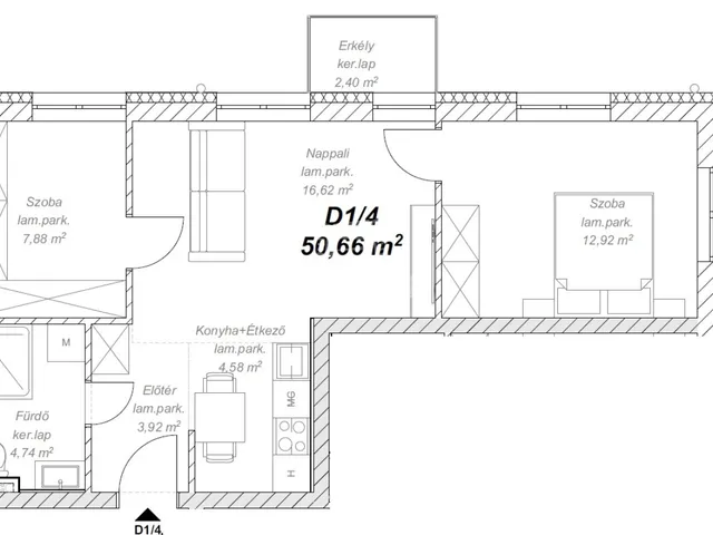
Eladó téglalakás Mende, 51nm, 49.900.000Ft - Mendei Lakópark, D. épület I.em. 4.
 Mendén csodálatos zöld környezetben a Hétdomb lakóparkban, I. ütem második szakaszában megvalósuló új építésű zárt lakóparkban, A. kategóriás energiatakarékos ( hőszivattyús ) 16 lakásos társasházban, nettó hasznos 50,66 m² alapterületű, I. EMELETI ERKÉLYES lakást kínálunk eladásra ( D épület I. emelet  4. Lakás ).
A kivitelező cég szem előtt tartja az alacsony rezsiköltséget, ezért a projekt a legkorszerűbb követelményeknek megfelel, ( lásd műszaki tartalom ).
Az épületek társasházzá lesznek nyilvánítva, így a lakások külön helyrajzi számmal azaz albetéttel rendelkeznek majd.
A lakások fűtését hőszivattyú biztosítja padlófűtéses hőleadással, a használati melegvíz ellátást minden lakásban hőszivattyús bojler biztosítja.
Felszíni kocsibeálló bruttó ára: 2,5 MFt./db. és 3 MFt/db-ig (itt már elektromos töltési lehetőséggel)
Tároló bruttó ára: 2 MFt./db.
C. épület vállalt befejezési ideje: 2026.03.30.
C. épület várható használatbavétele: 2026.06.30.
Műszaki tartalom ( részlet ):
-Alapozás: Monolit vasbeton lemezalapozás
-Teherhordó falazat: Porotherm vázkerámia falazat, érintkező falaknál SILKA (hanggátló) mészhomoktégla falazat
-Válaszfalak: Falazott vagy Gipszkarton válaszfalak, kétoldali vakolással vagy gletteléssel
-Tetőszerkezet: Szeglemezes rácsostartó faváz szerkezet
-Nyílászárók: Fokozott légzárású 3 rtg-ű műanyag nyílászárók / k=min.: 1,0 W/m2K /
-Vízszigetelés: 1, 2 rtg vagy kent modifikált bitumenes vastaglemez szigetelés
-Hőszigetelés: Lábazaton 15 XPS hőszigetelés, oldalfalon 15 cm EPS hőszigetelés
-Héjalás: Cserépfedés, bádogos kiegészítő elemekkel
-Homlokzatburkolatok: Homlokzati színezett vakolat
-Padlóburkolatok: Kerámia hidegburkolatok, laminált parketta melegburkolatok
-Falburkolatok: Belső oldali vakolat, festve, felület kezelve, vizes helyiségekben kerámia burkolat
Az ingatlan részletes ismertetése és bemutatása, előre egyeztetett időpontban lehetséges, amelyet nagyon rugalmasan kezelünk, akár HÉTVÉGÉN is.
További kérdéseivel kapcsolatban várom a jelentkezését.
Amennyiben Önnek a vásárláshoz szüksége lenne hitelre, babaváró kölcsönre, lakástakarékra, stb., kezdeményezheti a kapcsolatfelvételt bankfüggetlen hitelügyintézőinkkel, teljesen DÍJMENTESEN.
Közel 25 év szakmai tapasztalattal rendelkezem, eladó vagy kiadó ingatlana értékesítése vagy bérbeadása esetén, készséggel állok az Ön rendelkezésére is, keressen bizalommal. ...TOVÁBBI, TÖBBEZRES INGATLAN KÍNÁLAT: www.gdn-ingatlan.hu - GDN azonosító: 389124 
Tulajdonságok
Téglalakás
Új építésű
Hőszivattyú
2025
A
Vedd fel a kapcsolatot a hirdetővel
 +36 30 560 5 
Hitelkalkulátor
 Második évtől 
 214 747 Ft  A 13. hónaptól 
 7,99%  8,49% 
 Végig fix  Futamidő: 20 év Banki visszahívás
Az OTP Bank munkatársai a neked megfelelő napszakban veszik fel veled a kapcsolatot. A becslés a hirdető által megadott adatokon alapul. A jelen tájékoztatás nem minősül ajánlattételnek és nem teljes körű, az egyes feltételek a hitelbírálat eredményétől függően változhatnak. Kérjük, a részletekről tájékozódj az OTP Bank fiókjaiban vagy az OTP Bank honlapján közzétett vonatkozó Üzletszabályzatokból és Hirdetményekből. 
Vedd fel a kapcsolatot a hirdetővel
 +36 30 560 5 
Vedd fel a kapcsolatot a hirdetővel
 +36 30 560 5 
UI_KIT.CHARACTER_COUNTER__COMPONENT.REMAINING_SPACE__SR_ONLYUI_KIT.CHARACTER_COUNTER__COMPONENT.MAXIMUM_CHARACTER__SR_ONLY
Hasonló eladó ingatlanok Mendén
 Feltöltve: 1 napja 

 20 
 47,9 M Ft  939 216 Ft/m² 
 Eladó lakás, Mende 

 Frissítve: 7 hónapja 

 1 
 140 000 Euro 
 54,74 M Ft  770 986 Ft/m² 
 Eladó lakás, Monor 
 Frissítve: 6 napja 

 9 
 49,9 M Ft  733 824 Ft/m² 
 Eladó lakás, Göd 


Fedezd fel a 
hasonló lakásokat!Még további lakások Pest megyében 49,9 M Ft körüli értékben
 Tovább a hirdetésekhez  Frissítve: 7 hónapja 

 1 
 48,9 M Ft  698 571 Ft/m² 
 Eladó lakás, Szigetszentmiklós 
 Frissítve: 9 hónapja 

 1 
 49,9 M Ft  941 509 Ft/m² 
 Eladó lakás, Galgamácsa, Panoráma lakótelep 
 Feltöltve: 11 hónapja 
 0 
 50 M Ft  342 466 Ft/m² 
 Eladó lakás, Monor, Atila sor 6 

Töltsd fel hirdetésed ingyenesen!
Egyszerű 
