+11 fotó
Zenga
Premier
Hirdetéskód: 8961037
Referenciaszám: M326745
Feltöltve: ma
Mezőhegyes eladó téglalakás 3 szobás: 9,49 millió Ft
9,49 millió Ft
116 872 Ft/m² *
* A m² árat a hirdető adta meg.
81 m²
3 szoba

Friss hirdetések, amiket nem találsz meg más ingatlankereső portálon.
Fedezd fel elsőként a Zenga Premier címkés eladó ingatlanokat! További részletek A Duna House, OTP Ingatlanpont, Otthon Centrum és további hálózatok új, kizárólagos hirdetéseinek nagy részét a zenga.hu és koltozzbe.hu ingatlankeresőn láthatod legelőször, és a feltöltéstől két hétig nem érhetők el más ingatlankeresőn!
Leírás
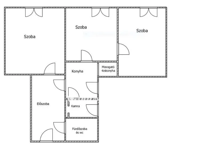
Eladó Mezőhegyes városközpontjában egy jó állapotú, tégla építésű, 3 szobás, 81 m2 területű lakás. A vizesblokk 2 éve teljeskörűen felújításra került, valamint ugyanekkor a konyha is teljeskörűen fel lett újítva, emellett új bútorzatot kapott, melyben beépített mosogatógép is található. A 3 nagy tágas szoba gondoskodik arról, hogy akár nagyobb családoknak is tökéletes otthona legyen ez az ingatlan. Az ingatlan remek elhelyezkedésének köszönhetően 100 méteres körzetében található bolt, posta, orvosi rendelő, vasútállomás valamint buszmegálló is, 300 méteres körzetében pedig iskola, valamint óvoda is, de ettől függetlenül mégis egy nyugodt és kellemes környezetben található. Emellett az ingatlanra még az Otthon Start Hitelprogram is igényelhető. Amennyiben felkeltettem érdeklődését keressen bátran vagy esetleg ingatlant adna el? Abban az esetben is állunk rendelkezésére és segítünk az értékesítés kezdetétől a végéig
Tulajdonságok
Téglalakás
1
Átlagos
Gáz (konvektor)
1960
Nem adta meg a hirdető
Vedd fel a kapcsolatot a hirdetővel
+36 30 732 8
Hitelkalkulátor
Második évtől
40 841 Ft A 13. hónaptól
7,99%
Végig fix Futamidő: 20 év Banki visszahívás
Az OTP Bank munkatársai a neked megfelelő napszakban veszik fel veled a kapcsolatot. A becslés a hirdető által megadott adatokon alapul. A jelen tájékoztatás nem minősül ajánlattételnek és nem teljes körű, az egyes feltételek a hitelbírálat eredményétől függően változhatnak. Kérjük, a részletekről tájékozódj az OTP Bank fiókjaiban vagy az OTP Bank honlapján közzétett vonatkozó Üzletszabályzatokból és Hirdetményekből.
Vedd fel a kapcsolatot a hirdetővel
+36 30 732 8
Vedd fel a kapcsolatot a hirdetővel
+36 30 732 8
UI_KIT.CHARACTER_COUNTER__COMPONENT.ACTUAL_CHARACTER__SR_ONLY UI_KIT.CHARACTER_COUNTER__COMPONENT.MAXIMUM_CHARACTER__SR_ONLY
Hasonló eladó ingatlanok Mezőhegyesen
Frissítve: 1 napja
14
9,9 M Ft 159 678 Ft/m²
Eladó lakás, Mezőhegyes

Frissítve: 1 napja
13
9,9 M Ft 159 677 Ft/m²
Eladó lakás, Mezőhegyes

Frissítve: 1 napja
12
8,9 M Ft 109 877 Ft/m²
Eladó lakás, Mezőhegyes

Frissítve: 1 napja
20
9,9 M Ft 102 804 Ft/m²
Eladó lakás, Mezőhegyes

Frissítve: 1 napja
20
9,9 M Ft 157 143 Ft/m²
Eladó lakás, Mezőhegyes

Frissítve: 1 napja
13
9,9 M Ft 159 677 Ft/m²
Eladó lakás, Mezőhegyes

