+12 fotó
Hirdetéskód: 8905765
Referenciaszám: M323170-5156558
Feltöltve: ma
Miskolc eladó téglalakás 2 szobás: 58,9 millió Ft
58,9 millió Ft
934 921 Ft/m²
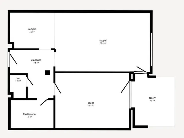
63 m²
2 szoba
1. emelet
Miskolc, Bodótető, 63 nm-es, 2 szobás 1. em-i lakás!
Eladó Miskolc Bodótető városrészen, új építésű panorámás társasházi lakás
- 63 m2- es, egy szoba + amerikai konyhás nappalis, emeleti, erkélyes új építésű lakás
- az ablakok műanyag hőszigetelt kivitelűek 3 rétegű üvegezéssel
- a lakások közötti elválasztásról 30 cm vastagságú hanggátló falak gondoskodnak
- a meleg vizet villanybojlerek, a lakások hűtés- fűtését Mitsubishi levegő - levegő hőszivattyú rendszerek biztosítják
- a homlokzat 20 cm hőszigeteléssel van ellátva
- a lakások kulcsrakészen készülnek el
- egyes lakások hosszútávra bérbe is kivehetőek, ezek a lakások kulcsrakészen, konyhabútorral felszerelve kerülnek kialakításra
- a garázsban elektromos autó töltési lehetőség is kialakításra kerül, a lakások saját napeleméről
- az udvaron kávézó és minőségi, modern játszótér kerül kialakításra
- az épület alatt 8 db külön álló garázs található, illetve a teremgarázsba beállóhelyek, melyekhez tároló is tartozik.
Amennyiben az ingatlan felkeltette az érdeklődését, hívjon bizalommal és tekintsük meg együtt akár hétvégén is! OTP Banki hátterünknek köszönhetően finanszírozási igényekben (pl. Babaváró, CSOK, Felújítási hitel, stb.) is állunk ügyfeleink rendelkezésére. Az ingatlan előre egyeztetett időpontban megtekinthető, megbízható ügyvédi közreműködést, szerződéskötéshez irodai hátteret biztosítunk. Referencia szám: M323170
Referencia szám: M323170
Tulajdonságok
Téglalakás
Új építésű
Elektromos
2023
Nem adta meg a hirdető
Vedd fel a kapcsolatot a hirdetővel
dr. Rohács Andrea OTPip - Miskolc Corvin utca 1-3 - OTP Ingatlanpont Iroda Az iroda összes hirdetése
+36 70 439 8
Hitelkalkulátor
Második évtől
253 479 Ft A 13. hónaptól
7,99% 8,49%
Végig fix Futamidő: 20 év Banki visszahívás
Az OTP Bank munkatársai a neked megfelelő napszakban veszik fel veled a kapcsolatot.Hitelfelvétel esetén akár egy héttel rövidebb lehet az ügyintézés.
Ez az ingatlan a nálunk meglévő adatok alapján azonnali értékbecslésre alkalmas lehet.
A becslés a hirdető által megadott adatokon alapul. A jelen tájékoztatás nem minősül ajánlattételnek és nem teljes körű, az egyes feltételek a hitelbírálat eredményétől függően változhatnak. Kérjük, a részletekről tájékozódj az OTP Bank fiókjaiban vagy az OTP Bank honlapján közzétett vonatkozó Üzletszabályzatokból és Hirdetményekből.
Vedd fel a kapcsolatot a hirdetővel
dr. Rohács Andrea OTPip - Miskolc Corvin utca 1-3 - OTP Ingatlanpont Iroda Az iroda összes hirdetése
+36 70 439 8
Vedd fel a kapcsolatot a hirdetővel
dr. Rohács Andrea OTPip - Miskolc Corvin utca 1-3 - OTP Ingatlanpont Iroda Az iroda összes hirdetése
+36 70 439 8
UI_KIT.CHARACTER_COUNTER__COMPONENT.ACTUAL_CHARACTER__SR_ONLY UI_KIT.CHARACTER_COUNTER__COMPONENT.MAXIMUM_CHARACTER__SR_ONLY
Hasonló eladó ingatlanok Bodótető városrészben
Frissítve: 8 napja
8
58,24 M Ft 924 444 Ft/m²
Eladó lakás, Miskolc, Bodótető
Frissítve: 8 napja
7
58,9 M Ft 950 000 Ft/m²
Eladó lakás, Miskolc, Bodótető

Frissítve: 3 hónapja
9
58,9 M Ft 934 921 Ft/m²
Eladó lakás, Miskolc, Bodótető


Fedezd fel a
hasonló lakásokat!Még további lakások Miskolcon 58,9 M Ft körüli értékben
Tovább a hirdetésekhez Frissítve: 3 napja
7
64 M Ft 1 032 258 Ft/m²
Eladó lakás, Miskolc, Bodótető

Frissítve: 7 napja
17
64 M Ft 1 015 873 Ft/m²
Eladó lakás, Miskolc, Bodótető

Frissítve: 7 napja
17
64 M Ft 1 015 873 Ft/m²
Eladó lakás, Miskolc, Bodótető


