+15 fotó
Hirdetéskód: 8827710
Referenciaszám: M318378-5108387
Feltöltve: 3 napja
Miskolc eladó téglalakás 1+1 fél szobás: 27,3 millió Ft
27,3 millió Ft
535 294 Ft/m²
51 m²
1+1 fél szoba
1. emelet
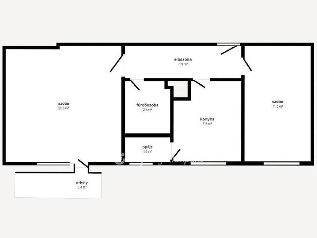
Felújított, 51 nm-es, 1. emeleti lakás - Miskolc, Torontáli u
KIVÉTELES AJÁNLAT MISKOLCON!
FELÚJÍTOTT 2 SZOBÁS TÉGLALAKÁS AZONNALI KÖLTÖZÉSSEL!
Ne keressen tovább, ha egy kifogástalan állapotú, azonnal költözhető otthont keres Miskolcon, a közkedvelt Torontáli úton! Kínálunk egy rendkívül igényesen felújított, 51 nm-es, 2 szobás téglalakást, amely az első emeleten található, így ideális elhelyezkedést biztosít a házban.
A lakás felújítása során a minőség és a modern esztétika volt a fő szempont. A terek frissen cserélt, új burkolatokat kaptak, és egy vadonatúj, modern konyha került beépítésre, amely garantálja, hogy Önnek már csak a beköltözéssel kelljen foglalkoznia. A melegvíz-ellátásról egy energiatakarékos villanybojler gondoskodik, segítve a fenntartási költségek optimalizálását.
Kényelmét tovább növeli, hogy a lakáshoz tartozik egy kellemes erkély, ahol reggeli kávéját vagy esti pihenését töltheti. Ráadásul a vételár tartalmaz egy saját, zárható pincehelyiséget is, mely értékes extra tárolókapacitást jelent. Tiszta, rendezett, tégla építésű ház, első emeleti elhelyezkedés, ez az ingatlan befektetésnek és első otthonnak is tökéletes választás! Ne maradjon le erről a páratlan lehetőségről!
OTP Banki hátterünknek köszönhetően finanszírozási igényekben (pl. Otthon Start Hitelprogram , Babaváró, Falusi CSOK, CSOK Plusz, Lakáshitel, Személyi kölcsön stb.), illetve biztosítások tekintetében is díjmentesen, soron kívüli ügyintézéssel segítem ügyfeleim! Referenciaszám: M318378
Tulajdonságok
Téglalakás
Jó állapotú
Gáz (konvektor)
1975
Nem adta meg a hirdető
Vedd fel a kapcsolatot a hirdetővel
+36 70 267 3
Hitelkalkulátor
Második évtől
117 487 Ft A 13. hónaptól
7,99%
Végig fix Futamidő: 20 év Banki visszahívás
Az OTP Bank munkatársai a neked megfelelő napszakban veszik fel veled a kapcsolatot.Hitelfelvétel esetén akár egy héttel rövidebb lehet az ügyintézés.
Ez az ingatlan a nálunk meglévő adatok alapján azonnali értékbecslésre alkalmas lehet.
A becslés a hirdető által megadott adatokon alapul. A jelen tájékoztatás nem minősül ajánlattételnek és nem teljes körű, az egyes feltételek a hitelbírálat eredményétől függően változhatnak. Kérjük, a részletekről tájékozódj az OTP Bank fiókjaiban vagy az OTP Bank honlapján közzétett vonatkozó Üzletszabályzatokból és Hirdetményekből.
Vedd fel a kapcsolatot a hirdetővel
+36 70 267 3
Vedd fel a kapcsolatot a hirdetővel
+36 70 267 3
UI_KIT.CHARACTER_COUNTER__COMPONENT.REMAINING_SPACE__SR_ONLYUI_KIT.CHARACTER_COUNTER__COMPONENT.MAXIMUM_CHARACTER__SR_ONLY
Hasonló eladó ingatlanok Bulgárföld városrészben
Frissítve: 17 napja
20
25,5 M Ft 500 000 Ft/m²
Eladó lakás, Miskolc, Bulgárföld
Feltöltve: 3 hónapja
1
24,9 M Ft 488 235 Ft/m²
Eladó lakás, Miskolc, Bulgárföld
Frissítve: 16 napja
20
24,9 M Ft 579 070 Ft/m²
Eladó lakás, Miskolc, Bulgárföld


Fedezd fel a
hasonló lakásokat!Még további lakások Miskolcon 27,3 M Ft körüli értékben
Tovább a hirdetésekhez Feltöltve: ma
6
25,49 M Ft 499 804 Ft/m²
Eladó lakás, Miskolc, Bulgárföld
Feltöltve: 1 éve
1
24,9 M Ft 461 111 Ft/m²
Eladó lakás, Miskolc, Selyemrét, Bajcsy Zs.u.31
Feltöltve: 1 éve
1
24,9 M Ft 461 111 Ft/m²
Eladó lakás, Miskolc, Selyemrét

