

+16 fotó
Hirdetéskód: 8732133
Referenciaszám: M313195-5052895
Feltöltve: 2 napja
Miskolc eladó téglalakás 2+1 fél szobás: 31,5 millió Ft
31,5 millió Ft
572 727 Ft/m²
55 m²
2+1 fél szoba
2. emelet
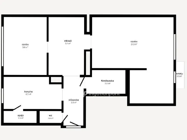
Miskolc, Selyemrét, 55 nm-es, 2 szobás lakás!
Miskolc egyik kedvelt részén, az Éder György utcában kínálunk eladásra egy 55 nm-es, második emeleti, erkélyes lakást, amely igazi lehetőséget rejt magában mind otthonteremtők, mind befektetők számára. Az ingatlan 2,5 szobával rendelkezik, tágas elrendezésének és jó beosztásának köszönhetően könnyen átalakítható és a saját igényekhez igazítható. A fűtést gázkonvektor biztosítja, az ablakokat redőnyök védik, a lakás állapota felújítandó, így kiváló alapot nyújt egy egyedi, modern otthon kialakításához.
A lakáshoz saját pince és spájz is tartozik, valamint külön helyiségben található a fürdőszoba és a wc, ami növeli a mindennapi kényelmet. Az ár különlegessége, hogy magában foglal egy 14 nm-es, szerelőaknás garázst is, amely közvetlenül a ház előtt található. Ez a lehetőség igazi ritkaságnak számít a környéken, hiszen a biztonságos parkolás és a garázsban tárolható extra hely nagyban megkönnyíti a mindennapokat, és önmagában is jelentős értéket képvisel.
A környék infrastrukturálisan rendkívül jól ellátott. Néhány száz méterre megtalálható villamos- és buszmegálló, a közelben óvoda, bölcsőde és iskola is biztosítja a családok számára a mindennapi praktikumot. A belváros gyalogosan mindössze 10 perc alatt elérhető, így minden fontos szolgáltatás karnyújtásnyira van. A társasház külső homlokzatának felújítása hamarosan elkezdődik, amely tovább növeli az ingatlan értékét és esztétikai vonzerejét.
Ez a lakás ideális választás mindazoknak, akik saját ízlésük szerint szeretnék megvalósítani új otthonukat, vagy hosszú távon értékálló befektetést keresnek.
A lakás a 3%-os Otthon Start hitelre is megvásárolható.
OTP Banki hátterünknek köszönhetően finanszírozási igényekben (pl. Otthon Start Hitelprogram , Babaváró, Falusi CSOK, CSOK Plusz, Lakáshitel, Személyi kölcsön stb.), illetve biztosítások tekintetében is díjmentesen, soron kívüli ügyintézéssel segítem ügyfeleim! Érdeklődés esetén hivatkozzon az M313195 referenciaszámra.
Referencia szám: M313195
Tulajdonságok
Téglalakás
Felújítandó
Gáz (konvektor)
1980
Nem adta meg a hirdető
Vedd fel a kapcsolatot a hirdetővel
dr. Rohács Andrea OTPip - Miskolc Corvin utca 1-3 - OTP Ingatlanpont Iroda Az iroda összes hirdetése
+36 70 439 8
Hitelkalkulátor
Második évtől
135 562 Ft A 13. hónaptól
7,99%
Végig fix Futamidő: 20 év Banki visszahívás
Az OTP Bank munkatársai a neked megfelelő napszakban veszik fel veled a kapcsolatot.Hitelfelvétel esetén akár egy héttel rövidebb lehet az ügyintézés.
Ez az ingatlan a nálunk meglévő adatok alapján azonnali értékbecslésre alkalmas lehet.
A becslés a hirdető által megadott adatokon alapul. A jelen tájékoztatás nem minősül ajánlattételnek és nem teljes körű, az egyes feltételek a hitelbírálat eredményétől függően változhatnak. Kérjük, a részletekről tájékozódj az OTP Bank fiókjaiban vagy az OTP Bank honlapján közzétett vonatkozó Üzletszabályzatokból és Hirdetményekből.
Vedd fel a kapcsolatot a hirdetővel
dr. Rohács Andrea OTPip - Miskolc Corvin utca 1-3 - OTP Ingatlanpont Iroda Az iroda összes hirdetése
+36 70 439 8
Vedd fel a kapcsolatot a hirdetővel
dr. Rohács Andrea OTPip - Miskolc Corvin utca 1-3 - OTP Ingatlanpont Iroda Az iroda összes hirdetése
+36 70 439 8
UI_KIT.CHARACTER_COUNTER__COMPONENT.REMAINING_SPACE__SR_ONLYUI_KIT.CHARACTER_COUNTER__COMPONENT.MAXIMUM_CHARACTER__SR_ONLY
Hasonló eladó ingatlanok Selyemrét városrészben
Frissítve: 8 napja

16
29,75 M Ft 512 931 Ft/m²
Eladó lakás, Miskolc, Selyemrét
Frissítve: 3 napja

13
29,95 M Ft 544 545 Ft/m²
Eladó lakás, Miskolc, Selyemrét, Éder György utca
Feltöltve: 4 napja

20
28,9 M Ft 516 071 Ft/m²
Eladó lakás, Miskolc, Selyemrét


Fedezd fel a
hasonló lakásokat!Még további lakások Miskolcon 31,5 M Ft körüli értékben
Tovább a hirdetésekhez Frissítve: 3 napja

20
29,95 M Ft 544 545 Ft/m²
Eladó lakás, Miskolc, Selyemrét
Frissítve: 2 napja

18
31,5 M Ft 572 728 Ft/m²
Eladó lakás, Miskolc, Selyemrét

Frissítve: 3 napja

12
31,9 M Ft 436 986 Ft/m²
Eladó lakás, Miskolc, Belváros, Dankó Pista utca

Töltsd fel hirdetésed ingyenesen!
Egyszerű