

+16 fotó
Hirdetéskód: 8734480
Referenciaszám: M313195-5053996
Feltöltve: ma
Miskolc eladó téglalakás 2+1 fél szobás: 31,5 millió Ft
31,5 millió Ft
572 727 Ft/m²
55 m²
2+1 fél szoba
2. emelet
Eladó Lakás, Miskolc
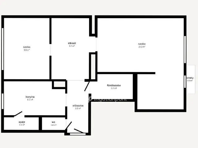
Miskolc egyik kedvelt részén, az Éder György utcában kínálunk eladásra egy 55 nm-es, második emeleti, erkélyes lakást, amely igazi lehetőséget rejt magában mind otthonteremtők, mind befektetők számára. Az ingatlan 2,5 szobával rendelkezik, tágas elrendezésének és jó beosztásának köszönhetően könnyen átalakítható és a saját igényekhez igazítható. A fűtést gázkonvektor biztosítja, az ablakokat redőnyök védik, a lakás állapota felújítandó, így kiváló alapot nyújt egy egyedi, modern otthon kialakításához.
A lakáshoz saját pince és spájz is tartozik, valamint külön helyiségben található a fürdőszoba és a wc, ami növeli a mindennapi kényelmet. Az ár különlegessége, hogy magában foglal egy 14 nm-es, szerelőaknás garázst is, amely közvetlenül a ház előtt található. Ez a lehetőség igazi ritkaságnak számít a környéken, hiszen a biztonságos parkolás és a garázsban tárolható extra hely nagyban megkönnyíti a mindennapokat, és önmagában is jelentős értéket képvisel.
A környék infrastrukturálisan rendkívül jól ellátott. Néhány száz méterre megtalálható villamos- és buszmegálló, a közelben óvoda, bölcsőde és iskola is biztosítja a családok számára a mindennapi praktikumot. A belváros gyalogosan mindössze 10 perc alatt elérhető, így minden fontos szolgáltatás karnyújtásnyira van. A társasház külső homlokzatának felújítása hamarosan elkezdődik, amely tovább növeli az ingatlan értékét és esztétikai vonzerejét.
Ez a lakás ideális választás mindazoknak, akik saját ízlésük szerint szeretnék megvalósítani új otthonukat, vagy hosszú távon értékálló befektetést keresnek.
A lakás a 3%-os Otthon Start hitelre is megvásárolható.
OTP Banki hátterünknek köszönhetően finanszírozási igényekben (pl. Otthon Start Hitelprogram , Babaváró, Falusi CSOK, CSOK Plusz, Lakáshitel, Személyi kölcsön stb.), illetve biztosítások tekintetében is díjmentesen, soron kívüli ügyintézéssel segítem ügyfeleim! Érdeklődés esetén hivatkozzon az M313195 referenciaszámra.
Tulajdonságok
Téglalakás
Felújítandó
Gáz (konvektor)
1980
Nem adta meg a hirdető
Vedd fel a kapcsolatot a hirdetővel
Komáromi Tünde Éva OTPip - Debrecen Miklós utca 5-13 - OTP Ingatlanpont Iroda Az iroda összes hirdetése
+36 30 432 0
Hitelkalkulátor
Második évtől
135 562 Ft A 13. hónaptól
7,99%
Végig fix Futamidő: 20 év Banki visszahívás
Az OTP Bank munkatársai a neked megfelelő napszakban veszik fel veled a kapcsolatot.Hitelfelvétel esetén akár egy héttel rövidebb lehet az ügyintézés.
Ez az ingatlan a nálunk meglévő adatok alapján azonnali értékbecslésre alkalmas lehet.
A becslés a hirdető által megadott adatokon alapul. A jelen tájékoztatás nem minősül ajánlattételnek és nem teljes körű, az egyes feltételek a hitelbírálat eredményétől függően változhatnak. Kérjük, a részletekről tájékozódj az OTP Bank fiókjaiban vagy az OTP Bank honlapján közzétett vonatkozó Üzletszabályzatokból és Hirdetményekből.
Vedd fel a kapcsolatot a hirdetővel
Komáromi Tünde Éva OTPip - Debrecen Miklós utca 5-13 - OTP Ingatlanpont Iroda Az iroda összes hirdetése
+36 30 432 0
Vedd fel a kapcsolatot a hirdetővel
Komáromi Tünde Éva OTPip - Debrecen Miklós utca 5-13 - OTP Ingatlanpont Iroda Az iroda összes hirdetése
+36 30 432 0
UI_KIT.CHARACTER_COUNTER__COMPONENT.REMAINING_SPACE__SR_ONLYUI_KIT.CHARACTER_COUNTER__COMPONENT.MAXIMUM_CHARACTER__SR_ONLY
Hasonló eladó ingatlanok Miskolcon
Frissítve: 17 napja

13
34 M Ft 629 630 Ft/m²
Eladó lakás, Miskolc

Frissítve: 17 napja

8
30,99 M Ft 563 455 Ft/m²
Eladó lakás, Miskolc

Frissítve: 11 napja

18
29,8 M Ft 541 818 Ft/m²
Eladó lakás, Miskolc, Klapka György utca


Fedezd fel a
hasonló lakásokat!Még további lakások Miskolcon 31,5 M Ft körüli értékben
Tovább a hirdetésekhez Frissítve: 6 hónapja

1
30 M Ft 555 556 Ft/m²
Eladó lakás, Miskolc, Bajcsy-Zsilinszky utca
Frissítve: 2 hónapja

1
28,5 M Ft 491 379 Ft/m²
Eladó lakás, Miskolc
Frissítve: 17 napja

13
29,5 M Ft 536 364 Ft/m²
Eladó lakás, Miskolc


Töltsd fel hirdetésed ingyenesen!
Egyszerű