+14 fotó
Zenga
Premier
Hirdetéskód: 8863744
Referenciaszám: M320147
Feltöltve: 4 napja
Nagykőrös eladó téglalakás 1+1 fél szobás: 26,9 millió Ft
26,9 millió Ft
584 783 Ft/m² *
* A m² árat a hirdető adta meg.
46 m²
1+1 fél szoba
2. emelet

Friss hirdetések, amiket nem találsz meg más ingatlankereső portálon.
Fedezd fel elsőként a Zenga Premier címkés eladó ingatlanokat! További részletek A Duna House, OTP Ingatlanpont, Otthon Centrum és további hálózatok új, kizárólagos hirdetéseinek nagy részét a zenga.hu és koltozzbe.hu ingatlankeresőn láthatod legelőször, és a feltöltéstől két hétig nem érhetők el más ingatlankeresőn!
Leírás
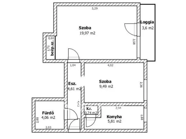
Pest vármegye, Nagykőrös Belvárosi részén 46 m2 hasznos alapterületű tégla építésű erkélyes lakás eladó! Az ingatlan frekventált főút mellett egy négyemeletes társasház 2. emeletén helyezkedik el. A komfortos lakásban egy szoba, egy félszoba, egy konyha, egy kamra, egy előszoba, egy fürdőszoba-WC helyiség és egy erkély kapott helyet. Az épület homlokzata nincs szigetelve, ennek ellenére a lakás rezsiköltsége alacsony, mert minden oldalról körbefűtött. A helyiségek PVC- és járólap borítást kaptak. A nyílászárók eredetiek, cserére szorulnak. Az otthon melegét helyiségenként gázkonvektor látja el, a konyhában a fűtőtest leszerelésre került. A melegvíz ellátásáról HÉVÍZ típusú vízátfolyós rendszerű gázüzemű vízmelegítő gondoskodik. A közművek közül az egyfázisú villany-, a gáz- és a vezetékes víz-ellátás saját mérőórával, valamint a szennyvíz-elvezetés rendelkezésre állnak. A lakás helyiségei átlagos állapotúak, tisztasági festés után jelen állapotában is lakható vagy igény szerint felújítható. Az erkély nyugodt zöldövezetre néz, a parkot gépjárművek ingyenes tárolására alkalmas parkoló veszi körbe. A lépcsőház zárt, tiszta, bejárata kaputelefonos rendszerrel nyitható. A földszinten közös használatú tárolók állnak rendelkezésre. Az ingatlan elhelyezkedése kiváló, a közelben minden megtalálható: többféle bevásárlási lehetőség, iskola, óvoda, gyógyszertár, egészségügyi intézmény, játszótér, buszmegálló száz méteren belül elérhető. Birtokba adás a teljes vételár kifizetését követően lehetséges.
A vásárlás finanszírozásában az OTP kedvezőbb kamatozású hitelkonstrukcióival és egyéb banki termékek lehetőségével tudunk segíteni díjmentesen, sorban állás nélkül! Az adásvételi szerződés lebonyolításához korrekt ügyvédi közreműködést tudunk ajánlani. Amennyiben felkeltettem érdeklődését, hívjon bizalommal!
Tulajdonságok
Téglalakás
1
Átlagos
Gáz (konvektor)
1976
3,6 m²
Nem adta meg a hirdető
Vedd fel a kapcsolatot a hirdetővel
Koltainé Szentpéteri Emőke Nagykőrös Ceglédi út 14 - OTP Ingatlanpont Iroda Az iroda összes hirdetése
+36 70 374 2
Hitelkalkulátor
Második évtől
115 765 Ft A 13. hónaptól
7,99%
Végig fix Futamidő: 20 év Banki visszahívás
Az OTP Bank munkatársai a neked megfelelő napszakban veszik fel veled a kapcsolatot. A becslés a hirdető által megadott adatokon alapul. A jelen tájékoztatás nem minősül ajánlattételnek és nem teljes körű, az egyes feltételek a hitelbírálat eredményétől függően változhatnak. Kérjük, a részletekről tájékozódj az OTP Bank fiókjaiban vagy az OTP Bank honlapján közzétett vonatkozó Üzletszabályzatokból és Hirdetményekből.
Vedd fel a kapcsolatot a hirdetővel
Koltainé Szentpéteri Emőke Nagykőrös Ceglédi út 14 - OTP Ingatlanpont Iroda Az iroda összes hirdetése
+36 70 374 2
Vedd fel a kapcsolatot a hirdetővel
Koltainé Szentpéteri Emőke Nagykőrös Ceglédi út 14 - OTP Ingatlanpont Iroda Az iroda összes hirdetése
+36 70 374 2
UI_KIT.CHARACTER_COUNTER__COMPONENT.REMAINING_SPACE__SR_ONLYUI_KIT.CHARACTER_COUNTER__COMPONENT.MAXIMUM_CHARACTER__SR_ONLY
Hasonló eladó ingatlanok Nagykőrösön
Feltöltve: 5 hónapja
0
28,7 M Ft 521 818 Ft/m²
Eladó lakás, Nagykőrös
Frissítve: 4 napja
9
27,4 M Ft 1 014 815 Ft/m²
Eladó lakás, Kiskunlacháza
Frissítve: 2 hónapja
13
26,9 M Ft 440 984 Ft/m²
Eladó lakás, Kiskunlacháza, Völgyi út

Fedezd fel a
hasonló lakásokat!Még további lakások Pest megyében 26,9 M Ft körüli értékben
Tovább a hirdetésekhez Frissítve: 8 napja
10
29,5 M Ft 737 500 Ft/m²
Eladó lakás, Monor
Frissítve: 26 napja
13
25,5 M Ft 447 368 Ft/m²
Eladó lakás, Perbál

Frissítve: 1 napja
20
27,5 M Ft 597 826 Ft/m²
Eladó lakás, Cegléd

