+17 fotó
Hirdetéskód: 8849703
Referenciaszám: M312169-5123984
Frissítve: 1 napja
Nyíregyháza eladó téglalakás 1+2 fél szobás: 37,4 millió Ft
37,4 millió Ft
733 333 Ft/m²
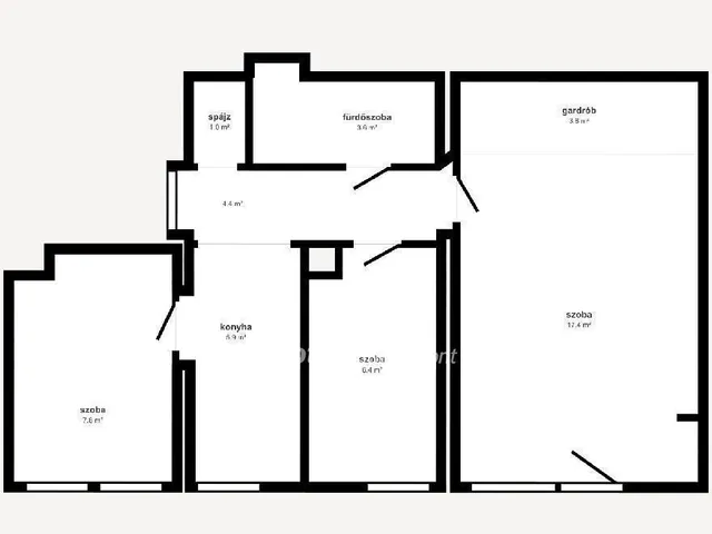
51 m²
1+2 fél szoba
4. emelet
Eladó Lakás, Nyíregyháza
Eladó 1+2 szobás lakás Nyíregyháza frekventált részén, belváros közelében.
Otthon Start Hitelprogram igényelhető rá!
Ha olyan otthont keresel, ami azonnal költözhető, világos, jó elosztású, és ráadásul remek ár-érték arányt képvisel, akkor ez a lakás Neked szól.
Az ingatlan egy 51 nm-es, 1+2 szobás lakás, amely egy szigetelt, tégla építésű társasház legfelső emeletén található. A ház lakóközössége kimondottan barátságos és összetartó, ami nagyban hozzájárul a kellemes, nyugodt mindennapokhoz.
Főbb jellemzők:
kisebb festést követően azonnal költözhető állapot,
gázfűtés, a meleg vizet bojler biztosítja,
műanyag nyílászárók, redőny, klíma, gardrób,
saját, 3 nm-es pince tároló,
nyugati tájolás, világos belső terek.
A lakás igény szerint kisebb korszerűsítést igényelhet, de elhelyezkedése, adottságai és a társasház hangulata miatt kiváló lehetőség mind saját otthonnak, mind befektetésnek.
A környéken minden megtalálható: üzletek, szolgáltatások, közlekedés - minden egy karnyújtásnyira.
Ez a lakás azoknak szól, akik értékelik a jó környezetet, a praktikus megoldásokat és a kedvező fenntartási költségeket.
OTP Banki hátterünknek köszönhetően finanszírozási igényekben (pl. Otthon Start Hitelprogram , Babaváró, Falusi CSOK, CSOK Plusz, Lakáshitel, Személyi kölcsön stb.), illetve biztosítások tekintetében is díjmentesen, soron kívüli ügyintézéssel segítem ügyfeleim! Referenciaszám: M312169
37400000 Ft
Referencia szám: M312169
Tulajdonságok
Téglalakás
Átlagos
Gáz (konvektor)
1991
Nem adta meg a hirdető
Vedd fel a kapcsolatot a hirdetővel
Szücs-Hajdú Angelika OTPip - Nyíregyháza Bocskai utca 18-20 - OTP Ingatlanpont Iroda Az iroda összes hirdetése
+36 70 262 4
Hitelkalkulátor
Második évtől
160 953 Ft A 13. hónaptól
7,99%
Végig fix Futamidő: 20 év Banki visszahívás
Az OTP Bank munkatársai a neked megfelelő napszakban veszik fel veled a kapcsolatot.Hitelfelvétel esetén akár egy héttel rövidebb lehet az ügyintézés.
Ez az ingatlan a nálunk meglévő adatok alapján azonnali értékbecslésre alkalmas lehet.
A becslés a hirdető által megadott adatokon alapul. A jelen tájékoztatás nem minősül ajánlattételnek és nem teljes körű, az egyes feltételek a hitelbírálat eredményétől függően változhatnak. Kérjük, a részletekről tájékozódj az OTP Bank fiókjaiban vagy az OTP Bank honlapján közzétett vonatkozó Üzletszabályzatokból és Hirdetményekből.
Vedd fel a kapcsolatot a hirdetővel
Szücs-Hajdú Angelika OTPip - Nyíregyháza Bocskai utca 18-20 - OTP Ingatlanpont Iroda Az iroda összes hirdetése
+36 70 262 4
Vedd fel a kapcsolatot a hirdetővel
Szücs-Hajdú Angelika OTPip - Nyíregyháza Bocskai utca 18-20 - OTP Ingatlanpont Iroda Az iroda összes hirdetése
+36 70 262 4
UI_KIT.CHARACTER_COUNTER__COMPONENT.REMAINING_SPACE__SR_ONLYUI_KIT.CHARACTER_COUNTER__COMPONENT.MAXIMUM_CHARACTER__SR_ONLY
Hasonló eladó ingatlanok Nyíregyházán
Frissítve: 16 napja
14
36 M Ft 620 690 Ft/m²
Eladó lakás, Nyíregyháza
Frissítve: 16 napja
7
36 M Ft 620 690 Ft/m²
Eladó lakás, Nyíregyháza
Frissítve: 12 napja
12
40,5 M Ft 512 658 Ft/m²
Eladó lakás, Nyíregyháza

Fedezd fel a
hasonló lakásokat!Még további lakások Nyíregyházán 37,4 M Ft körüli értékben
Tovább a hirdetésekhez Frissítve: 16 napja
10
36 M Ft 620 690 Ft/m²
Eladó lakás, Nyíregyháza
Frissítve: 12 napja
15
40,5 M Ft 512 658 Ft/m²
Eladó lakás, Nyíregyháza
Frissítve: 24 napja
13
39,5 M Ft 500 000 Ft/m²
Eladó lakás, Nyíregyháza

