+17 fotó
Hirdetéskód: 8923909
Referenciaszám: M321313-5171367
Feltöltve: 2 napja
Nyíregyháza eladó téglalakás 3 szobás: 112,8 millió Ft
112,8 millió Ft
1 151 020 Ft/m²
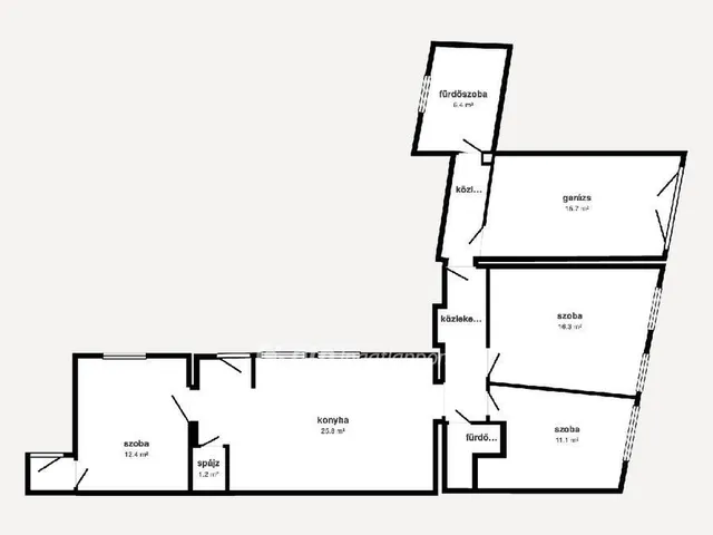
98 m²
3 szoba
1. emelet
Eladó Lakás, Nyíregyháza
Eladó tágas téglalakás saját udvarral Nyíregyháza belvárosának közelében
Nyíregyháza központi városrészében, a belvárostól mindössze 5 perc sétára eladó egy 98 nm-es, 3 szobás, kiváló elosztású téglalakás.
A 2017-ben épült, szigetelt homlokzatú ingatlan világos, tágas terekkel rendelkezik, állapota rendezett, azonnal költözhető, felújítást nem igényel. A lakás egyik nagy előnye a tágas konyha-étkező, amely kényelmes teret biztosít a mindennapokra és a családi étkezésekhez.
A fűtést gázkazán biztosítja. Különlegessége, hogy a garázsból közvetlen bejárás nyílik a lakásba, ami ritka és rendkívül praktikus megoldás.
Az ingatlanhoz 180 nm-es saját udvar tartozik, amely ideális pihenésre vagy családi programokra.
Főbb jellemzők:
98 nm alapterület
3 szoba
tégla építés, szigetelt homlokzat
gázkazános fűtés
garázs közvetlen bejárással
180 nm saját udvar
2017-es építés
azonnal költözhető
Elhelyezkedés:
Belváros 5 perc sétára, iskola 2 perc távolságra, üzletek, szolgáltatások és buszmegálló a közelben.
Az ingatlan családoknak és befektetésnek is kiváló, elhelyezkedése miatt könnyen kiadható.
OTP Banki hátterünknek köszönhetően finanszírozási igényekben (pl. Otthon Start Hitelprogram, Babaváró, Falusi CSOK, CSOK Plusz, Lakáshitel, Személyi kölcsön stb.), illetve biztosítások tekintetében is díjmentesen, soron kívüli ügyintézéssel segítem ügyfeleim! Referenciaszám: M321313
Tulajdonságok
Téglalakás
Átlagos
Gáz (konvektor)
2017
Nem adta meg a hirdető
Vedd fel a kapcsolatot a hirdetővel
Lipcseiné Kozák Judit OTPip - Nyíregyháza Bocskai utca 18-20 - OTP Ingatlanpont Iroda Az iroda összes hirdetése
+36 20 940 6
Hitelkalkulátor
Második évtől
485 440 Ft A 13. hónaptól
7,99%
Végig fix Futamidő: 20 év Banki visszahívás
Az OTP Bank munkatársai a neked megfelelő napszakban veszik fel veled a kapcsolatot.Hitelfelvétel esetén akár egy héttel rövidebb lehet az ügyintézés.
Ez az ingatlan a nálunk meglévő adatok alapján azonnali értékbecslésre alkalmas lehet.
A becslés a hirdető által megadott adatokon alapul. A jelen tájékoztatás nem minősül ajánlattételnek és nem teljes körű, az egyes feltételek a hitelbírálat eredményétől függően változhatnak. Kérjük, a részletekről tájékozódj az OTP Bank fiókjaiban vagy az OTP Bank honlapján közzétett vonatkozó Üzletszabályzatokból és Hirdetményekből.
Vedd fel a kapcsolatot a hirdetővel
Lipcseiné Kozák Judit OTPip - Nyíregyháza Bocskai utca 18-20 - OTP Ingatlanpont Iroda Az iroda összes hirdetése
+36 20 940 6
Vedd fel a kapcsolatot a hirdetővel
Lipcseiné Kozák Judit OTPip - Nyíregyháza Bocskai utca 18-20 - OTP Ingatlanpont Iroda Az iroda összes hirdetése
+36 20 940 6
UI_KIT.CHARACTER_COUNTER__COMPONENT.ACTUAL_CHARACTER__SR_ONLY UI_KIT.CHARACTER_COUNTER__COMPONENT.MAXIMUM_CHARACTER__SR_ONLY
Hasonló eladó ingatlanok Nyíregyházán
Frissítve: 23 napja
20
105 M Ft 724 138 Ft/m²
Eladó lakás, Nyíregyháza

Frissítve: 23 napja
20
105 M Ft 700 000 Ft/m²
Eladó lakás, Nyíregyháza

Frissítve: 23 napja
20
105 M Ft 700 000 Ft/m²
Eladó lakás, Nyíregyháza

Frissítve: 23 napja
5
105,12 M Ft 834 286 Ft/m²
Eladó lakás, Nyíregyháza
Frissítve: 23 napja
20
105 M Ft 700 000 Ft/m²
Eladó lakás, Nyíregyháza

Frissítve: 1 napja
20
120 M Ft 923 069 Ft/m²
Eladó lakás, Nyíregyháza
