+17 fotó
Hirdetéskód: 8961910
Referenciaszám: M321313-5196448
Frissítve: 7 napja
Nyíregyháza eladó téglalakás 3 szobás: 112,8 millió Ft
112,8 millió Ft
1,15 millió Ft/m²
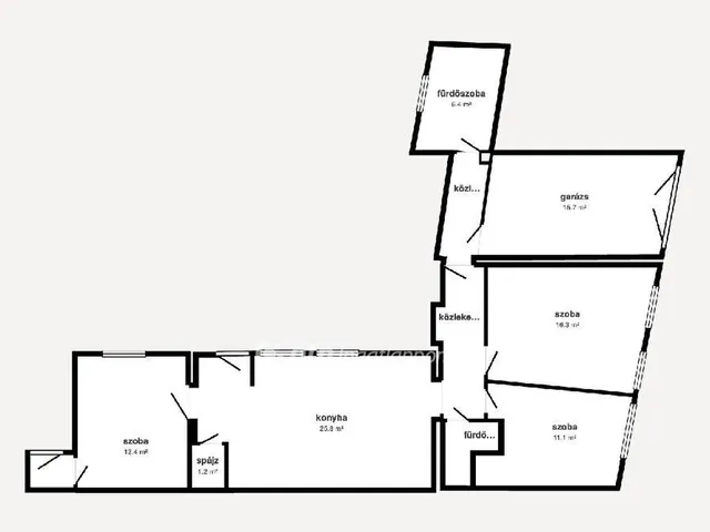
98 m²
3 szoba
földszint
Eladó Lakás, Nyíregyháza
Eladó tágas, belső udvaros téglalakás Nyíregyháza belvárosának közelében
Nyíregyháza egyik keresett részén, a Központi városrészben, a belvárostól mindössze 5 perc sétatávolságra kínálunk megvételre egy 98 nm alapterületű, 3 szobás, kiváló elosztású téglalakást.
Az ingatlan 2017-ben épült, külső homlokzata szigetelt, belső terei rendezettek, folyamatosan karbantartottak. A lakás világos, tágas helyiségekkel rendelkezik, elrendezése praktikus, így kényelmes otthont biztosít akár családok számára is. Azonnal költözhető, nem igényel felújítást.
A lakás egyik legnagyobb előnye a tágas konyha?étkező, amely ideális a mindennapi használatra és a közös étkezésekhez.
A fűtést gázkazán biztosít.
Különleges kényelmi megoldás, hogy a garázsból közvetlen bejárás nyílik a lakásba, ami ritka és rendkívül praktikus megoldás. Az ingatlanhoz egy 180 nm-es saját udvar is tartozik, amely nyugodt, csendes környezetet biztosít pihenéshez vagy családi programokhoz.
A lakóközösség rendezett, kulturált, a szomszédság kifejezetten jó.
A bútorok megegyezés szerint a vételár részét képezhetik, így akár teljes berendezéssel is megvásárolható az ingatlan.
Főbb adatok:
Építés éve: 2017
Alapterület: 98 nm
Szobaszám: 3
Fűtés: gázkazán
Szerkezet: tégla, szigetelt homlokzat
Saját udvar: 180 nm
Garázs: van, közvetlen bejárással a lakásba
Otthon Start Program: igen
Elhelyezkedés:
Belváros: 5 perc sétára
Iskola: 2 perc sétatávolságra
Üzletek, boltok, szolgáltatások a közelben
Kiváló közlekedési lehetőségek, buszmegálló szintén pár perc távolságra van.
Az ingatlan ideális választás családok számára, de befektetésnek is kiváló, elhelyezkedésének köszönhetően könnyen és jól kiadható.
Amennyiben egy tágas, jó elosztású, központi elhelyezkedésű, saját udvarral és garázzsal rendelkező, azonnal költözhető lakást keres Nyíregyházán, ezt az ingatlant érdemes személyesen is megtekinteni.
OTP Banki hátterünknek köszönhetően finanszírozási igényekben (pl. Otthon Start Hitelprogram, Babaváró, Falusi CSOK, CSOK Plusz, Lakáshitel, Személyi kölcsön stb.), illetve biztosítások tekintetében is díjmentesen, soron kívüli ügyintézéssel segítem ügyfeleim! Referenciaszám: M321313
Az energetikai tanúsítvány készítése folyamatban van, amint rendelkezésre áll, úgy azzal a hirdetés frissítésre kerül.
112800000 Ft
Referencia szám: M321313
Tulajdonságok
Téglalakás
Átlagos
Gáz (konvektor)
2017
Nem adta meg a hirdető
Vedd fel a kapcsolatot a hirdetővel
Szücs-Hajdú Angelika
OTPip - Nyíregyháza Bocskai utca 18-20 - OTP Ingatlanpont Iroda
Az iroda összes hirdetése +36 70 262 4
Hitelkalkulátor
Második évtől
485 440 Ft A 13. hónaptól
7,99%
Végig fix Futamidő: 20 év Banki visszahívás
Az OTP Bank munkatársai a neked megfelelő napszakban veszik fel veled a kapcsolatot.Hitelfelvétel esetén akár egy héttel rövidebb lehet az ügyintézés.
Ez az ingatlan a nálunk meglévő adatok alapján azonnali értékbecslésre alkalmas lehet.
A becslés a hirdető által megadott adatokon alapul. A jelen tájékoztatás nem minősül ajánlattételnek és nem teljes körű, az egyes feltételek a hitelbírálat eredményétől függően változhatnak. Kérjük, a részletekről tájékozódj az OTP Bank fiókjaiban vagy az OTP Bank honlapján közzétett vonatkozó Üzletszabályzatokból és Hirdetményekből.
Vedd fel a kapcsolatot a hirdetővel
Szücs-Hajdú Angelika
OTPip - Nyíregyháza Bocskai utca 18-20 - OTP Ingatlanpont Iroda
Az iroda összes hirdetése +36 70 262 4
Vedd fel a kapcsolatot a hirdetővel
Szücs-Hajdú Angelika
OTPip - Nyíregyháza Bocskai utca 18-20 - OTP Ingatlanpont Iroda
Az iroda összes hirdetése +36 70 262 4
UI_KIT.CHARACTER_COUNTER__COMPONENT.ACTUAL_CHARACTER__SR_ONLY UI_KIT.CHARACTER_COUNTER__COMPONENT.MAXIMUM_CHARACTER__SR_ONLY
Hasonló eladó ingatlanok Nyíregyházán
Frissítve: 11 napja
20
105 millió Ft 700 ezer Ft/m²
Eladó lakás, Nyíregyháza

Frissítve: 1 hónapja
20
105 millió Ft 700 ezer Ft/m²
Eladó lakás, Nyíregyháza

Frissítve: 1 hónapja
20
105 millió Ft 724,1 ezer Ft/m²
Eladó lakás, Nyíregyháza


Fedezd fel a
hasonló lakásokat!Még további lakások Nyíregyházán 112,8 M Ft körüli értékben
Tovább a hirdetésekhez Frissítve: 7 napja
20
105 millió Ft 700 ezer Ft/m²
Eladó lakás, Nyíregyháza

Frissítve: 1 hónapja
20
105 millió Ft 700 ezer Ft/m²
Eladó lakás, Nyíregyháza

Frissítve: 12 napja
7
119,99 millió Ft 799,9 ezer Ft/m²
Eladó lakás, Nyíregyháza
