

+18 fotó
Hirdetéskód: 8749901
Referenciaszám: M314908-5063177
Feltöltve: ma
Pécs eladó téglalakás 2 szobás: 39,9 millió Ft
39,9 millió Ft
561 972 Ft/m²
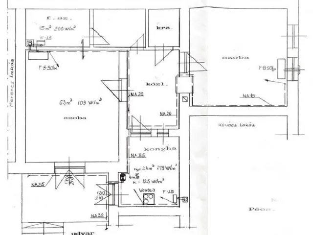
71 m²
2 szoba
földszint
Eladó Lakás, Pécs
Földszinti 2 szobás 71 négyzetméteres tégla lakás eladó Pécs belvárosában!
A felújítandó udvari lakás nagy előnye, hogy csendes. A Széchenyi tértől gyalog 5 perc távolságra van. A Pécsi Orvostudományi Egyetem gyalog 10 percre. A Jogi-Közgazdasági egyetem 3 buszmegállóra van. Az utca felé ki lehet nyitni a falat, ezáltal irodának, rendelőnek, Stb. kiválóan használható. Befektetésnek is kiváló. Teljes közmű van. Boltok iskolák bevásárlási lehetőségek vannak a közelben. Az udvarban ingyen lehet parkolni, a kapu mindig zárva van. Tároló és pince is jár hozzá. Az Otthon start programban is részt vesz (3%)
Referenciaszám: M314908
39900000 Ft
Referencia szám: M314908
Tulajdonságok
Téglalakás
Felújítandó
Gáz (konvektor)
1940
Nem adta meg a hirdető
Vedd fel a kapcsolatot a hirdetővel
+36 70 393 4
Hitelkalkulátor
Második évtől
171 711 Ft A 13. hónaptól
7,99%
Végig fix Futamidő: 20 év Banki visszahívás
Az OTP Bank munkatársai a neked megfelelő napszakban veszik fel veled a kapcsolatot.Hitelfelvétel esetén akár egy héttel rövidebb lehet az ügyintézés.
Ez az ingatlan a nálunk meglévő adatok alapján azonnali értékbecslésre alkalmas lehet.
A becslés a hirdető által megadott adatokon alapul. A jelen tájékoztatás nem minősül ajánlattételnek és nem teljes körű, az egyes feltételek a hitelbírálat eredményétől függően változhatnak. Kérjük, a részletekről tájékozódj az OTP Bank fiókjaiban vagy az OTP Bank honlapján közzétett vonatkozó Üzletszabályzatokból és Hirdetményekből.
Vedd fel a kapcsolatot a hirdetővel
+36 70 393 4
Vedd fel a kapcsolatot a hirdetővel
+36 70 393 4
UI_KIT.CHARACTER_COUNTER__COMPONENT.REMAINING_SPACE__SR_ONLYUI_KIT.CHARACTER_COUNTER__COMPONENT.MAXIMUM_CHARACTER__SR_ONLY
Hasonló eladó ingatlanok Belváros városrészben
Frissítve: 1 napja

17
37,9 M Ft 715 094 Ft/m²
Eladó lakás, Pécs, Belváros
Frissítve: 17 napja

6
39,9 M Ft 654 098 Ft/m²
Eladó lakás, Pécs, Belváros

Frissítve: 14 napja

11
39,9 M Ft 886 667 Ft/m²
Eladó lakás, Pécs, Belváros


Fedezd fel a
hasonló lakásokat!Még további lakások Pécsett 39,9 M Ft körüli értékben
Tovább a hirdetésekhez Frissítve: ma

11
39,9 M Ft 886 667 Ft/m²
Eladó lakás, Pécs, Belváros

Frissítve: 7 napja

4
39,9 M Ft 725 455 Ft/m²
Eladó lakás, Pécs, Belváros
Frissítve: 2 napja

11
39,9 M Ft 886 667 Ft/m²
Eladó lakás, Pécs, Belváros


Töltsd fel hirdetésed ingyenesen!
Egyszerű