+11 fotó
Hirdetéskód: 8866447
Referenciaszám: M321363
Feltöltve: ma
Pécs eladó téglalakás 2+1 fél szobás: 57 millió Ft
57 millió Ft
966 102 Ft/m² *
* A m² árat a hirdető adta meg.
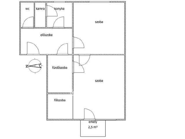
59 m²
2+1 fél szoba
3. emelet
Leírás
Belváros közeli, 3/3 emeleti (lift nincs) tégla, gáz fűtéses (konvektor), hűtő-fűtő klímával ellátott, gépesített tágas, világos lakás eladó.
Tiszta, rendezett lépcsőház, jó lakóközösség.
A lakástól kb. 10 perc gyalogtávon belül érhető el a vasútállomás, buszpályaudvar, Árkád és Széchenyi tér.
A lakás a Zsolnay-körforgalom alatt található, így számos buszjárat a közelben elérhető.
A lakás jó állapotú, a gépek folyamatosan karban tartottak. A vezetékek korszerűsítése 10 éven belül történt. Az ablakokat műanyagra cserélték redőnnyel ellátva. A lakáshoz saját alagsori tároló is tartozik.
A lakás bútorozottan, gépesítve eladó.
Jó adottságainak köszönhetően, családosoknak és egyetemistáknak is jó választás, illetve jó befektetési lehetőséget is kínál.
További információkért hívjon, nézze meg, tegyen egy ajánlatot hét végén is!
Az OTP INGATLANPONT teljes körű ügyintézéssel áll az eladók és a vevők rendelkezésére! A megvásárolni kívánt ingatlan finanszírozásához a CSOK-pluszt, a Babaváró hitelt, a START hitelt (3 %), a kedvezményes hitelkonstrukciókat helyben ingyenesen intézzük. Az adásvételi szerződés megkötéséhez igény szerint megbízható ügyvédi közreműködést, az energetikai tanúsítvány elkészítéséhez energetikust biztosítunk, segítséget nyújtunk az adásvételhez kapcsolódó ügyintézésben az ajánlattételtől a birtokba lépésig. Várom hívását a hét minden napján, megtekintést rugalmasan egyeztetek.
Referenciaszám: M321363
Tulajdonságok
Téglalakás
Átlagos
Gáz (konvektor)
1960
Nem adta meg a hirdető
Vedd fel a kapcsolatot a hirdetővel
+36 20 938 4
Hitelkalkulátor
Második évtől
245 302 Ft A 13. hónaptól
7,99%
Végig fix Futamidő: 20 év Banki visszahívás
Az OTP Bank munkatársai a neked megfelelő napszakban veszik fel veled a kapcsolatot.Hitelfelvétel esetén akár egy héttel rövidebb lehet az ügyintézés.
Ez az ingatlan a nálunk meglévő adatok alapján azonnali értékbecslésre alkalmas lehet.
A becslés a hirdető által megadott adatokon alapul. A jelen tájékoztatás nem minősül ajánlattételnek és nem teljes körű, az egyes feltételek a hitelbírálat eredményétől függően változhatnak. Kérjük, a részletekről tájékozódj az OTP Bank fiókjaiban vagy az OTP Bank honlapján közzétett vonatkozó Üzletszabályzatokból és Hirdetményekből.
Vedd fel a kapcsolatot a hirdetővel
+36 20 938 4
Vedd fel a kapcsolatot a hirdetővel
+36 20 938 4
UI_KIT.CHARACTER_COUNTER__COMPONENT.REMAINING_SPACE__SR_ONLYUI_KIT.CHARACTER_COUNTER__COMPONENT.MAXIMUM_CHARACTER__SR_ONLY
Hasonló eladó ingatlanok Belváros városrészben
Frissítve: 1 éve
1
160 000 Euro
61,6 M Ft 1 310 640 Ft/m²
Eladó lakás, Pécs, Belváros, Anna utca 19
Frissítve: 2 hónapja
20
56 M Ft 903 226 Ft/m²
Eladó lakás, Pécs, Belváros, Váradi Antal utca 22
Feltöltve: 10 hónapja
10
59,9 M Ft 593 069 Ft/m²
Eladó lakás, Pécs, Belváros

Fedezd fel a
hasonló lakásokat!Még további lakások Pécs, Belváros városrészben 57 M Ft körüli értékben
Tovább a hirdetésekhez Frissítve: 6 hónapja
10
61 M Ft 782 051 Ft/m²
Eladó lakás, Pécs, Belváros

Frissítve: 3 napja
8
Belváros szélén
57,32 M Ft 1 592 111 Ft/m²
Eladó lakás, Pécs, Belváros

Frissítve: 6 napja
10
59,9 M Ft 950 794 Ft/m²
Eladó lakás, Pécs, Belváros

