+10 fotó
Hirdetéskód: 8905959
Referenciaszám: M321363-5159956
Feltöltve: ma
Pécs eladó téglalakás 2+1 fél szobás: 54,9 millió Ft
54,9 millió Ft
930 508 Ft/m²
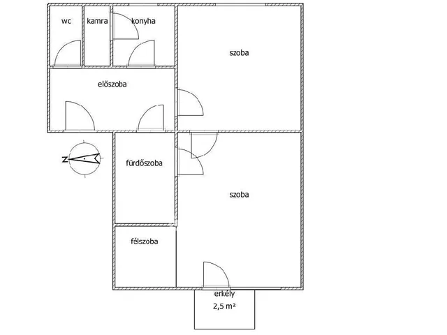
59 m²
2+1 fél szoba
3. emelet
Eladó Lakás, Pécs
Belváros közeli, 3/3 emeleti (lift nincs) tégla, gáz fűtéses (konvektor), hűtő-fűtő klímával ellátott, gépesített tágas, világos lakás eladó.
Tiszta, rendezett lépcsőház, jó lakóközösség.
A lakástól kb. 10 perc gyalogtávon belül érhető el a vasútállomás, buszpályaudvar, Árkád és Széchenyi tér.
A lakás a Zsolnay-körforgalom alatt található, így számos buszjárat a közelben elérhető.
A lakás jó állapotú, a gépek folyamatosan karban tartottak. A vezetékek korszerűsítése 10 éven belül történt. Az ablakokat műanyagra cserélték redőnnyel ellátva. A lakáshoz saját alagsori tároló is tartozik.
A lakás bútorozottan, gépesítve eladó.
Jó adottságainak köszönhetően, családosoknak és egyetemistáknak is jó választás, illetve jó befektetési lehetőséget is kínál.
További információkért hívjon, nézze meg, tegyen egy ajánlatot hét végén is!
Az OTP INGATLANPONT teljes körű ügyintézéssel áll az eladók és a vevők rendelkezésére! A megvásárolni kívánt ingatlan finanszírozásához a CSOK-pluszt, a Babaváró hitelt, a START hitelt (3 %), a kedvezményes hitelkonstrukciókat helyben ingyenesen intézzük. Az adásvételi szerződés megkötéséhez igény szerint megbízható ügyvédi közreműködést, az energetikai tanúsítvány elkészítéséhez energetikust biztosítunk, segítséget nyújtunk az adásvételhez kapcsolódó ügyintézésben az ajánlattételtől a birtokba lépésig.
Várom hívását a hét minden napján, megtekintést rugalmasan egyeztetek.
Referenciaszám: M321363
Referencia szám: M321363-ZE
Tulajdonságok
Téglalakás
Jó állapotú
Gáz (konvektor)
1960
C
Vedd fel a kapcsolatot a hirdetővel
+36 30 204 0
Hitelkalkulátor
Második évtől
236 265 Ft A 13. hónaptól
7,99%
Végig fix Futamidő: 20 év Banki visszahívás
Az OTP Bank munkatársai a neked megfelelő napszakban veszik fel veled a kapcsolatot.Hitelfelvétel esetén akár egy héttel rövidebb lehet az ügyintézés.
Ez az ingatlan a nálunk meglévő adatok alapján azonnali értékbecslésre alkalmas lehet.
A becslés a hirdető által megadott adatokon alapul. A jelen tájékoztatás nem minősül ajánlattételnek és nem teljes körű, az egyes feltételek a hitelbírálat eredményétől függően változhatnak. Kérjük, a részletekről tájékozódj az OTP Bank fiókjaiban vagy az OTP Bank honlapján közzétett vonatkozó Üzletszabályzatokból és Hirdetményekből.
Vedd fel a kapcsolatot a hirdetővel
+36 30 204 0
Vedd fel a kapcsolatot a hirdetővel
+36 30 204 0
UI_KIT.CHARACTER_COUNTER__COMPONENT.ACTUAL_CHARACTER__SR_ONLY UI_KIT.CHARACTER_COUNTER__COMPONENT.MAXIMUM_CHARACTER__SR_ONLY
Hasonló eladó ingatlanok Belváros városrészben
Frissítve: 8 napja
9
49,9 M Ft 1 188 095 Ft/m²
Eladó lakás, Pécs, Belváros

Frissítve: 8 napja
11
54,9 M Ft 930 508 Ft/m²
Eladó lakás, Pécs, Belváros

Frissítve: 23 napja
13
52,5 M Ft 1 346 154 Ft/m²
Eladó lakás, Pécs, Belváros

Fedezd fel a
hasonló lakásokat!Még további lakások Pécs, Belváros városrészben 54,9 M Ft körüli értékben
Tovább a hirdetésekhez Frissítve: 2 napja
8
Belváros szélén
51,12 M Ft 1 420 000 Ft/m²
Eladó lakás, Pécs, Belváros

Frissítve: ma
18
52,5 M Ft 833 333 Ft/m²
Eladó lakás, Pécs, Belváros

Feltöltve: 2 napja
18
59,99 M Ft 1 153 654 Ft/m²
Eladó lakás, Pécs, Belváros, Nagy Lajos Király utca

