+10 fotó
Hirdetéskód: 8867462
Referenciaszám: M321363-5134465
Feltöltve: ma
Pécs eladó téglalakás 2+1 fél szobás: 57 millió Ft
57 millió Ft
966 102 Ft/m²
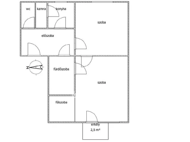
59 m²
2+1 fél szoba
Eladó Lakás, Pécs
Belváros közeli, 3/3 emeleti (lift nincs) tégla, gáz fűtéses (konvektor), hűtő-fűtő klímával ellátott, gépesített tágas, világos lakás eladó.
Tiszta, rendezett lépcsőház, jó lakóközösség.
A lakástól kb. 10 perc gyalogtávon belül érhető el a vasútállomás, buszpályaudvar, Árkád és Széchenyi tér.
A lakás a Zsolnay-körforgalom alatt található, így számos buszjárat a közelben elérhető.
A lakás jó állapotú, a gépek folyamatosan karban tartottak. A vezetékek korszerűsítése 10 éven belül történt. Az ablakokat műanyagra cserélték redőnnyel ellátva. A lakáshoz saját alagsori tároló is tartozik.
A lakás bútorozottan, gépesítve eladó.
Jó adottságainak köszönhetően, családosoknak és egyetemistáknak is jó választás, illetve jó befektetési lehetőséget is kínál.
További információkért hívjon, nézze meg, tegyen egy ajánlatot hét végén is!
Az OTP INGATLANPONT teljes körű ügyintézéssel áll az eladók és a vevők rendelkezésére! A megvásárolni kívánt ingatlan finanszírozásához a CSOK-pluszt, a Babaváró hitelt, a START hitelt (3 %), a kedvezményes hitelkonstrukciókat helyben ingyenesen intézzük. Az adásvételi szerződés megkötéséhez igény szerint megbízható ügyvédi közreműködést, az energetikai tanúsítvány elkészítéséhez energetikust biztosítunk, segítséget nyújtunk az adásvételhez kapcsolódó ügyintézésben az ajánlattételtől a birtokba lépésig. Várom hívását a hét minden napján, megtekintést rugalmasan egyeztetek.
Referenciaszám: M321363
57000000 Ft
Referencia szám: M321363
Tulajdonságok
1960
Nem adta meg a hirdető
Vedd fel a kapcsolatot a hirdetővel
+36 20 938 4
Hitelkalkulátor
Második évtől
245 302 Ft A 13. hónaptól
7,99%
Végig fix Futamidő: 20 év Banki visszahívás
Az OTP Bank munkatársai a neked megfelelő napszakban veszik fel veled a kapcsolatot.Hitelfelvétel esetén akár egy héttel rövidebb lehet az ügyintézés.
Ez az ingatlan a nálunk meglévő adatok alapján azonnali értékbecslésre alkalmas lehet.
A becslés a hirdető által megadott adatokon alapul. A jelen tájékoztatás nem minősül ajánlattételnek és nem teljes körű, az egyes feltételek a hitelbírálat eredményétől függően változhatnak. Kérjük, a részletekről tájékozódj az OTP Bank fiókjaiban vagy az OTP Bank honlapján közzétett vonatkozó Üzletszabályzatokból és Hirdetményekből.
Vedd fel a kapcsolatot a hirdetővel
+36 20 938 4
Vedd fel a kapcsolatot a hirdetővel
+36 20 938 4
UI_KIT.CHARACTER_COUNTER__COMPONENT.REMAINING_SPACE__SR_ONLYUI_KIT.CHARACTER_COUNTER__COMPONENT.MAXIMUM_CHARACTER__SR_ONLY
Hasonló eladó ingatlanok Pécsett
Frissítve: 13 napja
7
59,8 M Ft 1 013 559 Ft/m²
Eladó lakás, Pécs
Frissítve: 3 napja
14
54,9 M Ft 1 168 085 Ft/m²
Eladó lakás, Pécs, Péchy Blanka tér

Feltöltve: 2 napja
17
51,5 M Ft 990 385 Ft/m²
Eladó lakás, Pécs


Fedezd fel a
hasonló lakásokat!Még további lakások Pécsett 57 M Ft körüli értékben
Tovább a hirdetésekhez Frissítve: ma
14
54,9 M Ft 1 168 085 Ft/m²
Eladó lakás, Pécs

Frissítve: 2 napja
14
54,9 M Ft 1 168 085 Ft/m²
Eladó lakás, Pécs

Frissítve: 2 napja
18
57,9 M Ft 851 471 Ft/m²
Eladó lakás, Pécs


