+8 fotó
Hirdetéskód: 8723171
Referenciaszám: LK084418-5045477
Frissítve: 17 napja
Pétfürdő eladó téglalakás 4 szobás: 65 millió Ft
65 millió Ft
474,4 ezer Ft/m²
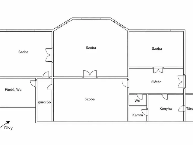
137 m²
4 szoba
2. emelet
Eladó lakás, Pétfürdő
*** KIZÁRÓLAG A DUNA HOUSE KÍNÁLATÁBAN! ***Ne hagyja ki ezt a kivételes lehetőséget, hogy otthonra leljen vagy befektetési céllal vásároljon Pétfürdő egyik legkedveltebb részén. Az ingatlan kialakítása és elhelyezkedése miatt ideális választás lehet családoknak, akik szeretnék élvezni a város közeli, de mégis nyugodt környezetet. Az épület szerkezete és a rendelkezésre álló fűtési lehetőségek hosszú távra biztosítják az új tulajdonosok kényelmét és biztonságát.A lakás utcára néző ablakai bőséges természetes fényt biztosítanak, kellemes és barátságos légkört teremtve. A modern, gáz kazános fűtésrendszer garantálja a meleg otthonát minden évszakban. A téglaépítés nem csak esztétikailag vonzó, de a hőszigetelés szempontjából is előnyös, segít csökkenteni a fűtési költségeket.Eladó egy lenyűgöző téglaépítésű lakás a második emeleten található. Három szoba található benne, amely akár két különálló lakássá is átalakítható, így befektetési célra is kiválóan megfelel.Tartozik hozzá még egy kb. 12 m2-es tároló!Az ingatlanra az otthon start 3% hitel igénybe vehető!Vegye fel velünk a kapcsolatot még ma, hogy megtekinthesse ezt a különleges ingatlant!
Az energetikai tanúsítvány készítése folyamatban van, amint rendelkezésre áll, úgy azzal a hirdetés frissítésre kerül.
+36302149474
Referencia szám: LK084418
Tulajdonságok
Téglalakás
Átlagos
Gázkazán
1989
Nem adta meg a hirdető
Vedd fel a kapcsolatot a hirdetővel

+36 22 945 0
Hitelkalkulátor
Második évtől
279 726 Ft A 13. hónaptól
7,99%
Végig fix Futamidő: 20 év Banki visszahívás
Az OTP Bank munkatársai a neked megfelelő napszakban veszik fel veled a kapcsolatot. A becslés a hirdető által megadott adatokon alapul. A jelen tájékoztatás nem minősül ajánlattételnek és nem teljes körű, az egyes feltételek a hitelbírálat eredményétől függően változhatnak. Kérjük, a részletekről tájékozódj az OTP Bank fiókjaiban vagy az OTP Bank honlapján közzétett vonatkozó Üzletszabályzatokból és Hirdetményekből.
Vedd fel a kapcsolatot a hirdetővel

+36 22 945 0
Vedd fel a kapcsolatot a hirdetővel

+36 22 945 0
UI_KIT.CHARACTER_COUNTER__COMPONENT.ACTUAL_CHARACTER__SR_ONLY UI_KIT.CHARACTER_COUNTER__COMPONENT.MAXIMUM_CHARACTER__SR_ONLY
Hasonló eladó ingatlanok Pétfürdőn
Frissítve: 4 napja
11
65 millió Ft 474,4 ezer Ft/m²
Eladó lakás, Pétfürdő

Frissítve: 15 napja
11
65 millió Ft 474,4 ezer Ft/m²
Eladó lakás, Pétfürdő

Frissítve: 9 napja
18
64,99 millió Ft 474,4 ezer Ft/m²
Eladó lakás, Pétfürdő

Fedezd fel a
hasonló lakásokat!Még további lakások Veszprém megyében 65 M Ft körüli értékben
Tovább a hirdetésekhez Frissítve: 14 napja
13
64,9 millió Ft 473,7 ezer Ft/m²
Eladó lakás, Pétfürdő

Frissítve: 11 napja
11
64,9 millió Ft 473,7 ezer Ft/m²
Eladó lakás, Pétfürdő

Frissítve: 29 napja
12
64,9 millió Ft 473,7 ezer Ft/m²
Eladó lakás, Pétfürdő

