+16 fotó
Hirdetéskód: 8873422
Referenciaszám: M317067-5133441
Feltöltve: 1 napja
Sajószentpéter eladó téglalakás 2+1 fél szobás: 20,9 millió Ft
20,9 millió Ft
387 037 Ft/m²
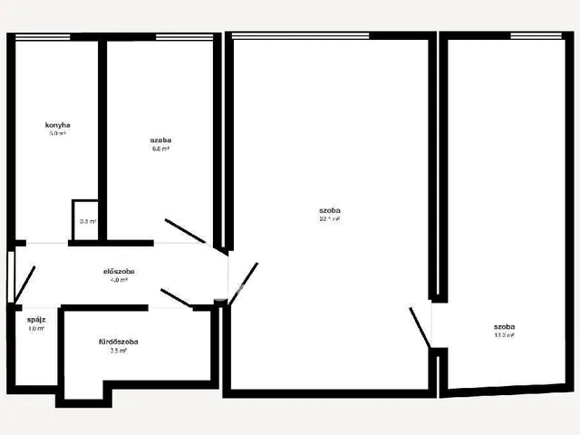
54 m²
2+1 fél szoba
földszint
Eladó Lakás, Sajószentpéter
Sajószentpéter BÉV telepen FÖLDSZINTI, 2+1 félszobás, 54 m2-es, részben felújított, kívülről SZIGETELT lakás eladó. A lakáshoz egy 4 m2-es önálló, zárható tároló tartozik. Az otthon melegét 2 szobában gázkonvektorok, egy szobában cserépkályha biztosítja. A társasházban az EU előírásoknak megfelelő gázfelújítást 2025 februárjában elvégezték. A meleg vizet a fürdőszobában gáz átfolyós vízmelegítő, a konyhában villanybojler biztosítja. A bejárati ajtó biztonsági heveder zárral felszerelt. Két szobát új laminált padló, egy szobát hagyományos parketta, egyéb helyiségeket járólap burkol. Közös költség: 10.000 Ft/hó, ebből 4.000 Ft a felújítási alapba fizetendő, mivel a társasházat a közeljövőben felújítják. OTTHON START PROGRAM igényelhető!
OTP Banki hátterünknek köszönhetően finanszírozási igényekben (pl. Otthon Start Hitelprogram, Babaváró, Falusi CSOK, CSOK Plusz, Lakáshitel, Személyi kölcsön stb.), illetve biztosítások tekintetében is díjmentesen, soron kívüli ügyintézéssel segítem ügyfeleim!
Érdeklődés esetén hivatkozzon az M317067 referencia számra!
Tulajdonságok
Téglalakás
Átlagos
Gáz (konvektor)
1960
Nem adta meg a hirdető
Vedd fel a kapcsolatot a hirdetővel
Szoboszlai Péter OTPip - Miskolc Szemere Bertalan utca 20 - OTP Ingatlanpont Iroda Az iroda összes hirdetése
+36 70 550 4
Hitelkalkulátor
Második évtől
89 944 Ft A 13. hónaptól
7,99%
Végig fix Futamidő: 20 év Banki visszahívás
Az OTP Bank munkatársai a neked megfelelő napszakban veszik fel veled a kapcsolatot. A becslés a hirdető által megadott adatokon alapul. A jelen tájékoztatás nem minősül ajánlattételnek és nem teljes körű, az egyes feltételek a hitelbírálat eredményétől függően változhatnak. Kérjük, a részletekről tájékozódj az OTP Bank fiókjaiban vagy az OTP Bank honlapján közzétett vonatkozó Üzletszabályzatokból és Hirdetményekből.
Vedd fel a kapcsolatot a hirdetővel
Szoboszlai Péter OTPip - Miskolc Szemere Bertalan utca 20 - OTP Ingatlanpont Iroda Az iroda összes hirdetése
+36 70 550 4
Vedd fel a kapcsolatot a hirdetővel
Szoboszlai Péter OTPip - Miskolc Szemere Bertalan utca 20 - OTP Ingatlanpont Iroda Az iroda összes hirdetése
+36 70 550 4
UI_KIT.CHARACTER_COUNTER__COMPONENT.REMAINING_SPACE__SR_ONLYUI_KIT.CHARACTER_COUNTER__COMPONENT.MAXIMUM_CHARACTER__SR_ONLY
Hasonló eladó ingatlanok Sajószentpéteren
Frissítve: 13 napja
19
20,9 M Ft 387 038 Ft/m²
Eladó lakás, Sajószentpéter

Frissítve: 1 hónapja
19
20,9 M Ft 387 037 Ft/m²
Eladó lakás, Sajószentpéter

Frissítve: 1 hónapja
19
20,9 M Ft 387 037 Ft/m²
Eladó lakás, Sajószentpéter


Fedezd fel a
hasonló lakásokat!Még további lakások Borsod-Abaúj-Zemplén megyében 20,9 M Ft körüli értékben
Tovább a hirdetésekhez Frissítve: 1 hónapja
19
20,9 M Ft 387 037 Ft/m²
Eladó lakás, Sajószentpéter

Frissítve: 1 napja
19
20,9 M Ft 387 037 Ft/m²
Eladó lakás, Sajószentpéter

Frissítve: 9 hónapja
1
20 M Ft 344 828 Ft/m²
Eladó lakás, Szerencs, Kilián tér
