+6 fotó
Hirdetéskód: 8960186
Referenciaszám: 394213
Feltöltve: ma
Siófok eladó téglalakás 5 szobás: 185 millió Ft
185 millió Ft
1 608 696 Ft/m²
115 m²
5 szoba
földszint
Eladó téglalakás Siófok, 115nm, 185.000.000Ft - Sóstó
Új építésű lakások Siófok, Sóstón!
Sóstó nyugodt, csendes részén, a Balatontól, strandtól sétatávolságra kínálunk megvételre egy most épülő, kétlakásos lakóingatlant.
Az építkezést most kezdték meg, így önnek még van lehetősége a belső tereket a saját izlése szerint kialakíttatni, kiválasztani a burkolatokat, beltéri ajtókat, falszíneket.
Ebben a hírdetésben az ingatlan földszinti lakását ajánljuk.
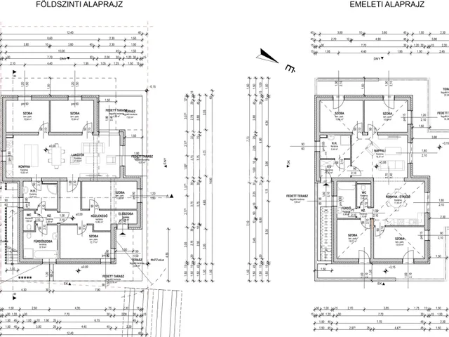
Alapterülete: nettó 115 nm + teraszok 43 nm + saját kertrész 436 nm.
Beosztása:
-előtér 2,26 nm,
- közlekedő 10,83 nm,
- közlekedő 2,28 nm,
- szoba 12,17 nm,
- szoba 11,68 nm,
- szoba 10,64 nm,
- szoba 10,64 nm,
- konyha 10,50 nm,
- nappali + étkező 27 nm,
- fürdőszoba + WC 8,19 nm,
- háztartási h. zuhanyzóval+ kézmosóval 7,01 nm,
- WC 1,8 nm,
- Teraszok:
- fedett terasz 13,09 nm,
- fedett terasz 26,82 nm,
- fedett terasz 3,15 nm.
Műszaki paraméterek:
- falazat Porotherm N+F 30 tégla,
- vasbeton födém + 25 cm szigetelés,
- 3 rétegű műanyag nyílászárók,
- elektromos alumínium redőny + szúnyogháló,
- külső szigetelés 15 cm polisztirol,
- a tetőterasz hangszigetelt,
- hőszivattyús fűtésrendszer, padlófűtés,
- 5 db hűtő-fűtő klíma,
- hideg burkolatok 9.000.-Ft/nm,
- meleg burkolatok 7.000.-Ft/nm,
- beltéri ajtók 100.000.- Ft/db,
- szaniterek 800.000.-Ft-ig.
- udvarban térkövezett autóbeálló.
Az emeleti panorámás lakás is még elérhető: nettó alapterülete 98 nm + 57 nm + 120 nm privát tetőterasz + 200 nm saját kertrész.
Ára: 225.000.000.-Ft.
Tervezett átadás: 2027. első negyedév.
Közlekedés kiváló: Budapesttől alig 1 óra alatt elérhető.
Amivel segítjük az Ön ingatlan vásárlását:
- ingyenes hitelügyintézés (CSOK és Babaváró és egyéb hitel
ügyintézése is)
- jogi háttér,
- földhivatali ügyintézés,
- energetikai tanúsítvány ügyintézése,
- a vevő számára ingyenes az ingatlanközvetítés.
Irodánk 30 éves tapasztalattal áll ügyfelei rendelkezésére!
Várom szíves megkeresését! ...TOVÁBBI, TÖBBEZRES INGATLAN KÍNÁLAT: www.gdn-ingatlan.hu - GDN azonosító: 394213
Tulajdonságok
Téglalakás
Új építésű
Hőszivattyú
2026
43 m²
Nem adta meg a hirdető
Vedd fel a kapcsolatot a hirdetővel
+36 20 588 7
Hitelkalkulátor
Második évtől
796 156 Ft A 13. hónaptól
7,99% 8,49%
Végig fix Futamidő: 20 év Banki visszahívás
Az OTP Bank munkatársai a neked megfelelő napszakban veszik fel veled a kapcsolatot. A becslés a hirdető által megadott adatokon alapul. A jelen tájékoztatás nem minősül ajánlattételnek és nem teljes körű, az egyes feltételek a hitelbírálat eredményétől függően változhatnak. Kérjük, a részletekről tájékozódj az OTP Bank fiókjaiban vagy az OTP Bank honlapján közzétett vonatkozó Üzletszabályzatokból és Hirdetményekből.
Vedd fel a kapcsolatot a hirdetővel
+36 20 588 7
Vedd fel a kapcsolatot a hirdetővel
+36 20 588 7
UI_KIT.CHARACTER_COUNTER__COMPONENT.ACTUAL_CHARACTER__SR_ONLY UI_KIT.CHARACTER_COUNTER__COMPONENT.MAXIMUM_CHARACTER__SR_ONLY
Hasonló eladó ingatlanok Sóstó városrészben
Frissítve: ma
15
169 M Ft 1 836 956 Ft/m²
Eladó lakás, Siófok, Sóstó

Frissítve: ma
20
Blue lake
169 M Ft 2 139 241 Ft/m²
Eladó lakás, Siófok, Sóstó

Frissítve: ma
17
Blue lake
169 M Ft 2 139 241 Ft/m²
Eladó lakás, Siófok, Sóstó


Fedezd fel a
hasonló lakásokat!Még további lakások Siófokon 185 M Ft körüli értékben
Tovább a hirdetésekhez Frissítve: ma
20
Blue lake
195 M Ft 1 805 556 Ft/m²
Eladó lakás, Siófok, Sóstó

Frissítve: ma
2
185 M Ft 1 608 696 Ft/m²
Eladó lakás, Siófok, Sóstó
Frissítve: ma
12
169 M Ft 1 920 455 Ft/m²
Eladó lakás, Siófok, Sóstó

