

+13 fotó
Hirdetéskód: 8748729
Referenciaszám: M305636-5062586
Feltöltve: ma
Siófok eladó téglalakás 3 szobás: 61 millió Ft
61 millió Ft
1 051 724 Ft/m²
58 m²
3 szoba
1. emelet
Eladó Lakás, Siófok
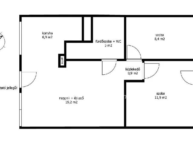
Balaton déli part, Siófok, 56 m2 lakás eladó. Az ingatlan a belvárosban, társasházi környezetben, egy 4 emeletes épület első emeletén helyezkedik el, kelet-nyugati fekvéssel, utcai, illetve udvari kilátással. A 3 szobás lakáshoz tágas loggia tartozik, parkolni az épület körüli parkolókban ingyenesen lehet. Az egyedi mérőórákkal felszerelt ingatlan fűtését gázkonvektorok biztosítják, amit hűtő-fűtő klíma egészít ki. A lakás teljeskörű felújításra került, belső terei kényelmes, praktikus elrendezéssel megújultak. Az ingatlan a benne lévő bútorokkal és berendezésekkel együtt azonnal használatba vehető. Óvoda, játszótér, iskola, bolt, egészségügyi intézmény, patika, posta, tömegközlekedés a közelben, a Siófoki Nagystrand vagy az Aranypart szabadstrand pedig csak egy 10-15 perces sétával könnyen elérhető. Ideális családoknak állandó lakhatásra vagy nyaralásra, de befektetésként kiadásra is kiváló lehetőség. Bővebb információért keressen telefonon!
Referencia szám: M305636
Tulajdonságok
Téglalakás
Felújított
Gáz (konvektor)
1978
Nem adta meg a hirdető
Vedd fel a kapcsolatot a hirdetővel
+36 70 316 3
Hitelkalkulátor
Második évtől
262 516 Ft A 13. hónaptól
7,99%
Végig fix Futamidő: 20 év Banki visszahívás
Az OTP Bank munkatársai a neked megfelelő napszakban veszik fel veled a kapcsolatot. A becslés a hirdető által megadott adatokon alapul. A jelen tájékoztatás nem minősül ajánlattételnek és nem teljes körű, az egyes feltételek a hitelbírálat eredményétől függően változhatnak. Kérjük, a részletekről tájékozódj az OTP Bank fiókjaiban vagy az OTP Bank honlapján közzétett vonatkozó Üzletszabályzatokból és Hirdetményekből.
Vedd fel a kapcsolatot a hirdetővel
+36 70 316 3
Vedd fel a kapcsolatot a hirdetővel
+36 70 316 3
UI_KIT.CHARACTER_COUNTER__COMPONENT.REMAINING_SPACE__SR_ONLYUI_KIT.CHARACTER_COUNTER__COMPONENT.MAXIMUM_CHARACTER__SR_ONLY
Hasonló eladó ingatlanok Siófokon
Frissítve: 4 napja

13
54,99 M Ft 1 341 219 Ft/m²
Eladó lakás, Siófok

Frissítve: 22 napja

8
54,99 M Ft 1 309 286 Ft/m²
Eladó lakás, Siófok

Frissítve: 21 napja

8
54,99 M Ft 1 331 477 Ft/m²
Eladó lakás, Siófok


Fedezd fel a
hasonló lakásokat!Még további lakások Siófokon 61 M Ft körüli értékben
Tovább a hirdetésekhez Frissítve: 21 napja

11
54,99 M Ft 1 341 220 Ft/m²
Eladó lakás, Siófok

Frissítve: 22 napja

3
65 M Ft 1 120 690 Ft/m²
Eladó lakás, Siófok

Frissítve: 22 napja

3
58,4 M Ft 1 101 887 Ft/m²
Eladó lakás, Siófok


Töltsd fel hirdetésed ingyenesen!
Egyszerű