

+9 fotó
Hirdetéskód: 8247512
Referenciaszám: M286575-4725624
Frissítve: ma
Szántód eladó téglalakás 3 szobás: 74,9 millió Ft
74,9 millió Ft
1 085 507 Ft/m²
69 m²
3 szoba
földszint
Eladó Lakás, Szántód
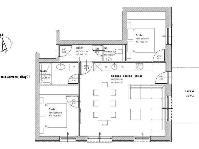
Balaton Déli parton, Szántódon, 69 m2-es lakás eladó. A 63 m2 alapterületű, 12 m2 terasszal kiegészített lakás egy két szintes ház földszintjén helyezkedik el, 104 m2 saját kerttel és saját parkolóval rendelkezik. A ház a település kertvárosias, természetközeli lakóövezetében, örökpanorámával a közvetlen szomszédságában elterülő, a Balatoni Nemzeti Park részét képező területre, 500 méterre a Balatontól. Az ingatlan hőszigetelt, fűtését kombi gázkazán biztosítja, amit padlófűtés és hűtő-fűtő klíma egészít ki, a nyílászárókon elektromos távirányítós redőny, szúnyogháló. Kiváló lehetőség akár állandó lakhatásra akár nyaralásra, de befektetésnek, kiadásra is tökéletes megoldás. A Balaton-part és strandolási lehetőség, a Balaland 5* szálloda és élményfürdő gyalog 10 perc, a Szántódpusztai Majorság autóval pár perc távolságra található, így a pihenés számos módja könnyen elérhető minden korosztály számára. A lakáshoz tartozó parkoló ára 3 M Ft, amit nem tartalmaz a hirdetési ár. Várható befejezés 2025. október. Otthon Start Hitelprogram. Bővebb információért vagy a többi elérhető lakással kapcsoltban keressen telefonon!
Referencia szám: M286575
Tulajdonságok
Téglalakás
Új építésű
Egyéb
2024
Nem adta meg a hirdető
Vedd fel a kapcsolatot a hirdetővel
+36 70 316 3
Hitelkalkulátor
Második évtől
322 335 Ft A 13. hónaptól
7,99% 8,49%
Végig fix Futamidő: 20 év Banki visszahívás
Az OTP Bank munkatársai a neked megfelelő napszakban veszik fel veled a kapcsolatot. A becslés a hirdető által megadott adatokon alapul. A jelen tájékoztatás nem minősül ajánlattételnek és nem teljes körű, az egyes feltételek a hitelbírálat eredményétől függően változhatnak. Kérjük, a részletekről tájékozódj az OTP Bank fiókjaiban vagy az OTP Bank honlapján közzétett vonatkozó Üzletszabályzatokból és Hirdetményekből.
Vedd fel a kapcsolatot a hirdetővel
+36 70 316 3
Vedd fel a kapcsolatot a hirdetővel
+36 70 316 3
UI_KIT.CHARACTER_COUNTER__COMPONENT.REMAINING_SPACE__SR_ONLYUI_KIT.CHARACTER_COUNTER__COMPONENT.MAXIMUM_CHARACTER__SR_ONLY
Hasonló eladó ingatlanok Szántódon
Frissítve: 6 napja

15
69,9 M Ft 1 092 187 Ft/m²
Eladó lakás, Szántód

Frissítve: 6 napja

14
79,9 M Ft 1 109 722 Ft/m²
Eladó lakás, Szántód

Frissítve: 10 napja

16
79,9 M Ft 1 736 957 Ft/m²
Eladó lakás, Szántód


Fedezd fel a
hasonló lakásokat!Még további lakások Somogy megyében 74,9 M Ft körüli értékben
Tovább a hirdetésekhez Frissítve: 6 napja

11
74,9 M Ft 1 085 508 Ft/m²
Eladó lakás, Szántód

Frissítve: 7 napja

12
69,9 M Ft 1 092 188 Ft/m²
Eladó lakás, Szántód

Frissítve: 7 napja

12
79,9 M Ft 1 115 922 Ft/m²
Eladó lakás, Szántód


Töltsd fel hirdetésed ingyenesen!
Egyszerű