

+6 fotó
Jó befektetés
Hirdetéskód: 8747886
Referenciaszám: 441
Frissítve: 4 napja
Szeged eladó téglalakás 2+1 fél szobás: 123 millió Ft
123 millió Ft
1 835 821 Ft/m²
67 m²
2+1 fél szoba
tetőtér
Leírás
Új építésű lakások (42-98 m2 között) Szeged Felsővárosában – a belvárostól pár percre, bevezető, elővásárlási áron!
Szeged egyik legkedveltebb városrészében, Felsővárosban, újonnan épülő társasházi lakások vásárolhatók!
Összesen 12 lakás érhető el jelenleg!
Lakások méretei: 35–98 m²
Árak: már 64 millió forinttól (3%-os hitel nem használható fel)
Kulcsrakész: 2026. december
Szakhatósági engedélyek: 2027. júniusra várható
2027-ben átadott lakás 2025-ös áron? Igen, ez most lehetséges!
Miért éri meg most vásárolni?
- Bevezető ár – most még idei áron juthatsz új lakáshoz
- Te választhatod ki a burkolatokat
- Modern fűtésrendszer: padlófűtés + fan coil
- Parkoló vagy garázs vásárolható
- Rugalmas fizetési ütemezés (kb. 40% önerő, a többi szakaszosan)
Jelenleg elérhető lakások:
3A lakás
44,88 m² + 9,75 m² erkély
1,5 szobás, ideális fiatal pároknak vagy befektetésnek
Világos erkély
3B lakás
49,21 m² + 9,93 m² erkély
1,5 szoba
4A lakás
52 m² + 5,5 m² erkély
1,5 szobás, kényelmes elosztás
4B lakás
47,2 m² + 7,17 m² loggia
1,5 szobás, loggiás lakás
5A lakás
35,1 m² + 7,3 m² loggia
Kompakt, de praktikus elosztás – befektetőknek tökéletes
5B lakás
46,54 m² + 3,94 m² loggia + 5,44 m² erkély
1,5 szoba, loggiával és erkéllyel egyaránt
6A lakás
44,83 m² + 9,76 m² erkély
1,5 szobás, modern kialakítás
6B lakás
49,16 m² + 9,54 m² erkély
1,5 szobás, kellemes méret, ideális első otthonként
7A lakás
51,32 m² + 4,78 m² erkély
1,5 szobás, jól bútorozható elrendezéssel
7B lakás
47,15 m² + 7,17 m² loggia
1,5 szobás, napfényes lakás loggiával
9-es lakás
66,91 m² + 30,94 m² terasz
2,5 szobás, hatalmas terasszal – tökéletes családosoknak vagy akik szeretnek szabadtéren pihenni
10-es lakás
59,2 m² + 7,17 m² erkély
1,5 szobás, kiváló elosztás, erkélyes, világos
Fizetési ütemezés:
Önerő: 30% + telek (összesen kb. 40%)
Fennmaradó rész: szakaszosan fizethető az építkezés üteme szerint
Használd ki az elővásárlási akciót és válaszd ki a számodra tökéletes lakást!
2027-ben új otthonod kulcsait már a kezedben tarthatod – de 2025-ös áron!
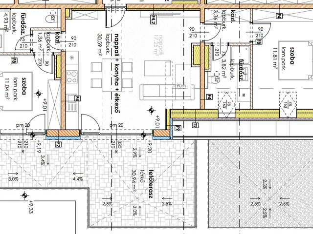
Alaprajzokat kérésre szívesen küldök!
Tulajdonságok
Téglalakás
4
Új építésű
Padlófűtés
2026
31 m²
Nem adta meg a hirdető
Vedd fel a kapcsolatot a hirdetővel
Álomlak Kft. Az iroda összes hirdetése
+36 20 216 1
Hitelkalkulátor
Második évtől
529 336 Ft A 13. hónaptól
7,99% 8,49%
Végig fix Futamidő: 20 év Banki visszahívás
Az OTP Bank munkatársai a neked megfelelő napszakban veszik fel veled a kapcsolatot.Hitelfelvétel esetén akár egy héttel rövidebb lehet az ügyintézés.
Ez az ingatlan a nálunk meglévő adatok alapján azonnali értékbecslésre alkalmas lehet.
A becslés a hirdető által megadott adatokon alapul. A jelen tájékoztatás nem minősül ajánlattételnek és nem teljes körű, az egyes feltételek a hitelbírálat eredményétől függően változhatnak. Kérjük, a részletekről tájékozódj az OTP Bank fiókjaiban vagy az OTP Bank honlapján közzétett vonatkozó Üzletszabályzatokból és Hirdetményekből.
Vedd fel a kapcsolatot a hirdetővel
Álomlak Kft. Az iroda összes hirdetése
+36 20 216 1
Vedd fel a kapcsolatot a hirdetővel
Álomlak Kft. Az iroda összes hirdetése
+36 20 216 1
UI_KIT.CHARACTER_COUNTER__COMPONENT.REMAINING_SPACE__SR_ONLYUI_KIT.CHARACTER_COUNTER__COMPONENT.MAXIMUM_CHARACTER__SR_ONLY
Hasonló eladó ingatlanok Felsőváros városrészben
Frissítve: 25 napja

3
119,9 M Ft 1 016 102 Ft/m²
Eladó lakás, Szeged
Frissítve: 9 napja

13
129,99 M Ft 1 120 603 Ft/m²
Eladó lakás, Szeged
Frissítve: 2 éve

20
114,9 M Ft 440 230 Ft/m²
Eladó lakás, Szeged, Marostő

Fedezd fel a
hasonló lakásokat!Még további lakások Szegeden 123 M Ft körüli értékben
Tovább a hirdetésekhez Frissítve: 24 napja

19
119 M Ft 967 480 Ft/m²
Eladó lakás, Szeged, Belváros
Frissítve: 5 napja

15
135 M Ft 1 163 793 Ft/m²
Eladó lakás, Szeged
Frissítve: 9 napja

12
129,9 M Ft 1 119 828 Ft/m²
Eladó lakás, Szeged

Töltsd fel hirdetésed ingyenesen!
Egyszerű