Hirdetéskód: 8853317
Referenciaszám: 23443
Frissítve: 17 napja
Szeged eladó téglalakás 2+1 fél szobás: 75,99 millió Ft
75,99 millió Ft
1,23 millió Ft/m² *
* A m² árat a hirdető adta meg.
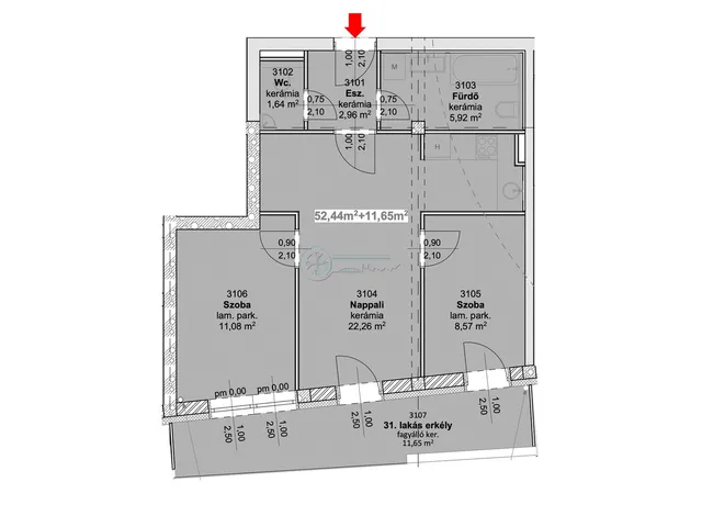
62 m²
2+1 fél szoba
3. emelet
Alsóvároson újépítésű lakás eladó
Home&People azonosító: #23443
Szécsi Nikolett: +36703233952
AMENNYIBEN KOLLÉGÁNK ELFOGLALT, KÉRJEN VISSZAHÍVÁST A SMS-BEN A +3670/628-10-33 TELEFONSZÁMON!
Alsóvároson új építésű lakás eladó!
Több szegedi referenciával is rendelkező, megbízható kivitelezőtől, kulcsrakész lakás eladó.
Lakás paraméterei:
3. emelet 62 m2
amerikaikonyhás nappali +2 szoba, 2 fürdőszoba wc-vel, gardrób
erkély
fűtés: levegő-víz hőszivattyú
Alsóvároson, a TIK-hez közel
2026. II.negyedév
autóbeálló, garázs vásárlás lehetőség
AZ INGATLAN ALKALMAS CSOK PLUSZ HITEL, CSOK PLUSZ ÉPÍTÉSI HITEL,PIACI LAKÁSHITEL FEDEZETÉNEK EGYARÁNT! AZ ÁR KULCSRAKÉSZ ÁLLAPOTRA VONATKOZIK!
Cégünk az ügyfeleink részére ingyenesen vállalja, a megegyezés sikeres lebonyolítását, jogi tanácsadást, illetve teljes körű CSOK és hitel ügyintézést!
Kérje ingyenes tájékoztatásunkat telefonon, vagy személyesen irodánkban a Bécsi krt. 18. szám alatt!
Ár: 75.990.000 Ft
Home&People azonosító: #23443
Szécsi Nikolett: +36703233952
Home and People akciós forint HITELEK: Szalai Gábor hitelspecialista! http://homeandpeople.hu
Tulajdonságok
Téglalakás
3
Új építésű
Egyéb
2026
Nem adta meg a hirdető
Vedd fel a kapcsolatot a hirdetővel
+36 70 323 3
Hitelkalkulátor
Második évtől
327 026 Ft A 13. hónaptól
7,99% 8,49%
Végig fix Futamidő: 20 év Banki visszahívás
Az OTP Bank munkatársai a neked megfelelő napszakban veszik fel veled a kapcsolatot.Hitelfelvétel esetén akár egy héttel rövidebb lehet az ügyintézés.
Ez az ingatlan a nálunk meglévő adatok alapján azonnali értékbecslésre alkalmas lehet.
A becslés a hirdető által megadott adatokon alapul. A jelen tájékoztatás nem minősül ajánlattételnek és nem teljes körű, az egyes feltételek a hitelbírálat eredményétől függően változhatnak. Kérjük, a részletekről tájékozódj az OTP Bank fiókjaiban vagy az OTP Bank honlapján közzétett vonatkozó Üzletszabályzatokból és Hirdetményekből.
Vedd fel a kapcsolatot a hirdetővel
+36 70 323 3
Vedd fel a kapcsolatot a hirdetővel
+36 70 323 3
UI_KIT.CHARACTER_COUNTER__COMPONENT.ACTUAL_CHARACTER__SR_ONLY UI_KIT.CHARACTER_COUNTER__COMPONENT.MAXIMUM_CHARACTER__SR_ONLY
Hasonló eladó ingatlanok Szegeden
Feltöltve: 1 napja
10
79,8 millió Ft 1,4 millió Ft/m²
Eladó lakás, Szeged
Frissítve: 1 hónapja
1
74,9 millió Ft 1,04 millió Ft/m²
Eladó lakás, Szeged, Agyagos utca 10
Frissítve: 5 napja
7
78,5 millió Ft 1,4 millió Ft/m²
Eladó lakás, Szeged, Vedres utca


Fedezd fel a
hasonló lakásokat!Még további lakások Szegeden 75,99 M Ft körüli értékben
Tovább a hirdetésekhez Frissítve: 17 napja
20
72 millió Ft 935,1 ezer Ft/m²
Eladó lakás, Szeged, Csorba utca

Frissítve: 17 napja
7
71,78 millió Ft 1,25 millió Ft/m²
Eladó lakás, Szeged

Frissítve: 9 napja
13
69,9 millió Ft 919,7 ezer Ft/m²
Eladó lakás, Szeged

