+13 fotó
Hirdetéskód: 8915126
Referenciaszám: PR095515-LK-28967
Frissítve: 12 napja
Eladó 3 szobás téglalakás 83,63 millió Ft értékben Szegeden - Szeged-Rókus városrész, Klapka tér közelében lakóparkban
Szeged 83,63 millió Ft
1 380 000 Ft/m² *
* A m² árat a hirdető adta meg.
60 m²
3 szoba
2. emelet
Leírás
BELVÁROS PEREMÉN STÍLUSOS, MODERN KULCSRAKÉSZ LAKÁSOK LIFTES TÁRSASHÁZBAN
MOST AJÁNDÉK MAGAS MINŐSÉGŰ OLASZ KONYHABÚTORRAL, BEÉPÍTETT GARDRÓBSZEKRÉNNYEL
ÚJ LAKÁSOK, AHOL ÉLNI JÓ
Szeged-Belváros peremén 35 lakásos liftes társasház épül, a földszinten 6 iroda, a mélygarázsban 24 garázs és autóbeálló kapott helyet.
A modern, 6 szintes épület ( pinceszint, fsz., 1.em., 2.em., 3.em., 4.em. (tetőtér) ) lakásai 2 tömbben - változatos méretben készülnek, erkéllyel, franciaerkéllyel, loggiával rendelkeznek.
A lakások alapterülete 32 m2- 80 m2 közötti, nagy üvegfelülettel, világos terekkel készülnek.
Tervezett kulcsrakész átadás: 2027. december
ÚJ LAKÁSOK, AHOL ÉLNI JÓ !
MOST AJÁNDÉK MAGAS MINŐSÉGŰ OLASZ KONYHABÚTORRAL, BEÉPÍTETT GARDRÓBSZEKRÉNNYEL
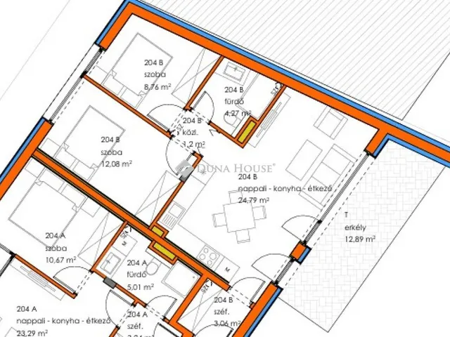
A 204.B számú lakás a hatszintes épület 2.emeletén található. Hasznos alapterülete 54,16 m2, melyben amerikai konyha+ nappali, 1 egész + 1 féll szoba, fürdő, közlekedő és előtér került kialakításra. A környezettel való kapcsolatot a nappaliból elérhető 12,89 m2-es erkély biztosítja.
Össz hasznos alapterület: 60,605 m2 (1/2 erkéllyel)
Néhány műszaki jellemző:
- födém: monolit vasbeton, mennyezet hűtéssel
- főfalak: 30 cm vastag vázkerámia falazat( Porotherm X-therm rapid)
- lakáselválasztó hanggátló falak Porotherm 20 SONO- nyílászárók: külső alumínium ablakpárkányokkal, rejtett redőnytokkal, korszerű műanyag nyílászárók bukó-nyíló 3 rétegű üvegezéssel
- központi hűtés-fűtés: padlófűtés, mennyezet hűtés minden lakásban, mely 4 db GEOTERMIKUS hőszivattyúval valósul meg
- szűrt levegős szellőztetés
- video kaputelefon
- homlokzat: 12 cm grafit EPS, vakolással, színezéssel
- alacsony fenntartási költség
- zárt, belső kert, nyugodt környezet
Az Árkád néhány perc sétára van az ingatlantól. A környék előnye, hogy közel van a Belváros, iskola, óvoda, élelmiszerbolt, orvosi rendelő.
Szomszédságában található a felújított modern játszótér, ahol pihenőhelyként szolgáló zöldterületet, szabadtéri fitneszparkot és multifunkcionális sportpályát alakítottak ki.
Tömegközlekedésnek köszönhetően számos autó-, és trolibusz segítségével juthatunk el Szeged bármely részére illetve a Mars tér nyújt számtalan lehetőséget a távolsági járatokhoz.
Remek választás lehet mindazok részére, akik modern, kiváló minőségű, minden igényt kielégítő otthont keresnek.
Elhelyezkedése miatt akár befektetési célra is remek lehetőség.
Felkeltettem érdeklődését?
Minden további részlettel, valamint műszaki alaprajzzal és személyes megtekintéssel kapcsolatban várom hívását!
FORDULJON HOZZÁM, KERESSEN BIZALOMMAL!
Tulajdonságok
Téglalakás
5
Új építésű
Geotermikus
2027
12,9 m²
Nem adta meg a hirdető
Vedd fel a kapcsolatot a hirdetővel
+36 62 300 7
Hitelkalkulátor
Második évtől
359 926 Ft A 13. hónaptól
7,99% 8,49%
Végig fix Futamidő: 20 év Banki visszahívás
Az OTP Bank munkatársai a neked megfelelő napszakban veszik fel veled a kapcsolatot.Hitelfelvétel esetén akár egy héttel rövidebb lehet az ügyintézés.
Ez az ingatlan a nálunk meglévő adatok alapján azonnali értékbecslésre alkalmas lehet.
A becslés a hirdető által megadott adatokon alapul. A jelen tájékoztatás nem minősül ajánlattételnek és nem teljes körű, az egyes feltételek a hitelbírálat eredményétől függően változhatnak. Kérjük, a részletekről tájékozódj az OTP Bank fiókjaiban vagy az OTP Bank honlapján közzétett vonatkozó Üzletszabályzatokból és Hirdetményekből.
Vedd fel a kapcsolatot a hirdetővel
+36 62 300 7
Vedd fel a kapcsolatot a hirdetővel
+36 62 300 7
UI_KIT.CHARACTER_COUNTER__COMPONENT.ACTUAL_CHARACTER__SR_ONLY UI_KIT.CHARACTER_COUNTER__COMPONENT.MAXIMUM_CHARACTER__SR_ONLY
Lakóparkhoz kapcsolódó további ingatlanok

