Hirdetéskód: 8968462
Referenciaszám: 7bd5b63a-2eee-432f-8904-4f882e1b97c6
Feltöltve: 1 napja
Eladó 3 szobás téglalakás 86,8 millió Ft értékben Szegeden - Örökzöld köz II. ütem lakóparkban
86,8 millió Ft
1 400 000 Ft/m²
62 m²
3 szoba
3. emelet
Örökzöld Lakópark – a II. ütem lakásai már megvásárolhatóak! Az építkezés megfelelő ütemben halad, jelenleg a 4. szint...
Örökzöld Lakópark – a II. ütem lakásai már megvásárolhatóak! Az építkezés megfelelő ütemben halad, jelenleg a 4. szint épül.
A II. ütem lakásait kínáljuk eladásra , ahol 36-61 m² közötti alapterületű, erkélyes otthonok közül választhat. A kisebb lakások különösen népszerűek a befektetők körében, hiszen gyorsan és könnyen kiadhatók, de tökéletesek fiatal pároknak első otthonként vagy idősebbeknek is, mivel az épület teljesen akadálymentesített és liftes.
Az ingatlanok igény esetén szerkezetkész állapotban is megvásárolhatóak, egyedi megállapodás alapján.
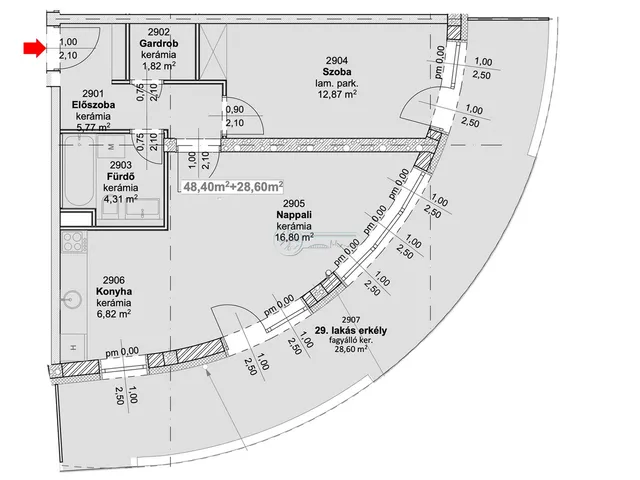
Ez a 29.jelű lakás a 3. emeleten helyezkedik el és 48,40 nm alapterülettel + 28,60 nm erkéllyel rendelkezik.
Főbb jellemzők:
-modern, energiatakarékos műszaki tartalom
-hőszivattyús rendszer + kondenzációs kazán az optimális energia felhasználás miatt
-lakásokon belül padlófűtés + klíma biztosítja a kellemes komfortot
-15 cm homlokzati hőszigetelés
-3 rétegű, 6 légkamrás nyílászárók
-minden lakás saját helyrajzi számmal rendelkezik
-teremgarázs (akár elektromos autó töltési lehetőséggel is) és autóbeálló vásárolható (beálló: 5 M Ft, teremgarázs: 10-13 M Ft)
-most még egyedi igényeket is figyelembe tudnak venni, pl. a fürdőszobában kád vagy tusoló is kérhető
-akár illetékmentes vásárlás
Lokáció előnyei:
A lakópark csendes, zöldövezeti részen épül, mégis közel a belvároshoz.
-pár perc sétára a Liget és a belváros
-közelben uszoda, gyógyszertár, kisebb boltok
-könnyen elérhető tömegközlekedéssel
Ideális választás:
-Befektetőknek: a kisebb alapterületű lakások gyorsan kiadhatók, magas kereslet van rájuk
-Fiatal pároknak, első lakásnak: elérhető ár-érték arány, modern otthon, jó közlekedés
-Idősebbeknek: akadálymentesített épület, lift, biztonságos környezet, közel minden fontos szolgáltatás
-Családoknak: tágasabb lakások nagy erkélyekkel, kényelmes élettér biztonságos közegben
-A projektről videó is megtekinthető:
A projekt kulcsrakész átadása várhatóan 2026 nyarán történik.
Az I. ütem lakásai már kulcsrakész állapotban elkészültek, - a használatbavételi engedélyüket már megkapták-, ezek referenciaként megtekinthetőek, így biztos lehet abban, hogy amit választ, az minőségi kivitelezés lesz.
A képek egy része a már épülő társasházról készültek, míg a másik része a nemrég átadott I. ütem lakásairól referencia fotók. A látványképek virtuálisan berendezett fotók, a bútorok és a dekoráció illusztráció.
Bővebb információért és megtekintésért keressen bizalommal!
Tulajdonságok
Téglalakás
5
Új építésű
2025
Nem adta meg a hirdető
Vedd fel a kapcsolatot a hirdetővel
+36 30 821 5
Hitelkalkulátor
Második évtől
373 548 Ft A 13. hónaptól
7,99% 8,49%
Végig fix Futamidő: 20 év Banki visszahívás
Az OTP Bank munkatársai a neked megfelelő napszakban veszik fel veled a kapcsolatot.Hitelfelvétel esetén akár egy héttel rövidebb lehet az ügyintézés.
Ez az ingatlan a nálunk meglévő adatok alapján azonnali értékbecslésre alkalmas lehet.
A becslés a hirdető által megadott adatokon alapul. A jelen tájékoztatás nem minősül ajánlattételnek és nem teljes körű, az egyes feltételek a hitelbírálat eredményétől függően változhatnak. Kérjük, a részletekről tájékozódj az OTP Bank fiókjaiban vagy az OTP Bank honlapján közzétett vonatkozó Üzletszabályzatokból és Hirdetményekből.
Vedd fel a kapcsolatot a hirdetővel
+36 30 821 5
Vedd fel a kapcsolatot a hirdetővel
+36 30 821 5
UI_KIT.CHARACTER_COUNTER__COMPONENT.ACTUAL_CHARACTER__SR_ONLY UI_KIT.CHARACTER_COUNTER__COMPONENT.MAXIMUM_CHARACTER__SR_ONLY
Hasonló eladó ingatlanok Szegeden
Frissítve: 1 napja
A hirdető törölte az ingatlanhirdetést
Frissítve: ma
9
89,5 M Ft 1 243 069 Ft/m²
Eladó lakás, Szeged

Frissítve: 7 napja
12
95 M Ft 9 301 Ft/m²
Eladó lakás, Szeged

Fedezd fel a
hasonló lakásokat!Még további lakások Szegeden 86,8 M Ft körüli értékben
Tovább a hirdetésekhez Frissítve: 3 napja
A hirdető törölte az ingatlanhirdetést
Frissítve: 7 napja
9
89,5 M Ft 1 230 085 Ft/m²
Eladó lakás, Szeged

Frissítve: 7 napja
20
85,9 M Ft 1 227 143 Ft/m²
Eladó lakás, Szeged

