+8 fotó
Hirdetéskód: 8983025
Referenciaszám: ed79aba2-2a7a-4117-920d-f97676d23d9e
Feltöltve: 1 napja
Eladó 2 szobás téglalakás 77 millió Ft értékben Szegeden - Örökzöld köz II. ütem lakóparkban
77 millió Ft
1,4 millió Ft/m²
55 m²
2 szoba
4. emelet
Tető alatt az Örökzöld Lakópark II. üteme – válassza ki új otthonát most, és költözzön be már idén ősszel! A II. ütem...
Tető alatt az Örökzöld Lakópark II. üteme – válassza ki új otthonát most, és költözzön be már idén ősszel!
A II. ütem lakásait kínáljuk eladásra , ahol 36-61 m² közötti alapterületű, erkélyes otthonok közül választhat. A kisebb lakások különösen népszerűek a befektetők körében, hiszen gyorsan és könnyen kiadhatók, de tökéletesek fiatal pároknak első otthonként vagy idősebbeknek is, mivel az épület teljesen akadálymentesített és liftes.
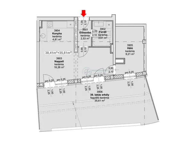
Ez a 39.jelű lakás a 4. emeleten helyezkedik el és 38,41 nm alapterülettel + 35,61 nm erkéllyel rendelkezik.
Főbb jellemzők:
-modern, energiatakarékos műszaki tartalom
-hőszivattyús rendszer + kondenzációs kazán az optimális energia felhasználás miatt
-lakásokon belül padlófűtés + klíma biztosítja a kellemes komfortot
-15 cm homlokzati hőszigetelés
-3 rétegű, 6 légkamrás nyílászárók
-minden lakás saját helyrajzi számmal rendelkezik
-teremgarázs (akár elektromos autó töltési lehetőséggel is) és autóbeálló vásárolható (beálló: 5 M Ft, teremgarázs: 10-13 M Ft)
-most még egyedi igényeket is figyelembe tudnak venni, pl. a fürdőszobában kád vagy tusoló is kérhető
Lokáció előnyei:
-A lakópark csendes, zöldövezeti részen épül, mégis közel a belvároshoz.
-pár perc sétára a Liget és a belváros
-közelben uszoda, gyógyszertár, kisebb boltok
-könnyen elérhető tömegközlekedéssel
Ideális választás:
-Befektetőknek: a kisebb alapterületű lakások gyorsan kiadhatók, magas kereslet van rájuk
-Fiatal pároknak, első lakásnak: elérhető ár-érték arány, modern otthon, jó közlekedés
-Idősebbeknek: akadálymentesített épület, lift, biztonságos környezet, közel minden fontos szolgáltatás
-Családoknak: tágasabb lakások nagy erkélyekkel, kényelmes élettér biztonságos közegben
A projektről videó is megtekinthető:
A projekt kulcsrakész átadása 2026. augusztus 31-én esedékes.
Az I. ütem lakásai már kulcsrakész állapotban elkészültek, - a használatbavételi engedélyüket már megkapták-, ezek referenciaként megtekinthetőek, így biztos lehet abban, hogy amit választ, az minőségi kivitelezés lesz.
A képek egy része a már épülő társasházról készültek, míg a másik része a nemrég átadott I. ütem lakásairól referencia fotók. A látványképek virtuálisan berendezett fotók, a bútorok és a dekoráció illusztráció.
Bővebb információért és megtekintésért keressen bizalommal!
Tulajdonságok
Téglalakás
5
Új építésű
2025
Nem adta meg a hirdető
Vedd fel a kapcsolatot a hirdetővel
+36 30 821 5
Hitelkalkulátor
Második évtől
331 373 Ft A 13. hónaptól
7,99% 8,49%
Végig fix Futamidő: 20 év Banki visszahívás
Az OTP Bank munkatársai a neked megfelelő napszakban veszik fel veled a kapcsolatot.Hitelfelvétel esetén akár egy héttel rövidebb lehet az ügyintézés.
Ez az ingatlan a nálunk meglévő adatok alapján azonnali értékbecslésre alkalmas lehet.
A becslés a hirdető által megadott adatokon alapul. A jelen tájékoztatás nem minősül ajánlattételnek és nem teljes körű, az egyes feltételek a hitelbírálat eredményétől függően változhatnak. Kérjük, a részletekről tájékozódj az OTP Bank fiókjaiban vagy az OTP Bank honlapján közzétett vonatkozó Üzletszabályzatokból és Hirdetményekből.
Vedd fel a kapcsolatot a hirdetővel
+36 30 821 5
Vedd fel a kapcsolatot a hirdetővel
+36 30 821 5
UI_KIT.CHARACTER_COUNTER__COMPONENT.ACTUAL_CHARACTER__SR_ONLY UI_KIT.CHARACTER_COUNTER__COMPONENT.MAXIMUM_CHARACTER__SR_ONLY
Hasonló eladó ingatlanok Szegeden
Frissítve: 17 napja
4
73,9 millió Ft 1,12 millió Ft/m²
Eladó lakás, Szeged
Frissítve: 3 napja
20
81,59 millió Ft 849,2 ezer Ft/m²
Eladó lakás, Szeged, Damjanich utca

Frissítve: 2 hónapja
1
75,9 millió Ft 1,38 millió Ft/m²
Eladó lakás, Szeged, Kenguru köz

Fedezd fel a
hasonló lakásokat!Még további lakások Szegeden 77 M Ft körüli értékben
Tovább a hirdetésekhez Frissítve: 17 napja
11
83,81 millió Ft 1,23 millió Ft/m²
Eladó lakás, Szeged

Frissítve: ma
11
83,81 millió Ft 1,23 millió Ft/m²
Eladó lakás, Szeged

Frissítve: 2 napja
20
81,59 millió Ft 849,9 ezer Ft/m²
Eladó lakás, Szeged

