+18 fotó
Hirdetéskód: 8775260
Referenciaszám: LK043363-5077351
Feltöltve: ma
Szentendre eladó téglalakás 4 szobás: 169 millió Ft
169 millió Ft
1 508 929 Ft/m²
112 m²
4 szoba
2. emelet
Eladó lakás, Szentendre
Szentendrén a Barackvirág lakóparkban ELADÓ egy 112 m2-es PRÉMIUM PENTHOUSE lakás 110 m2-es részben fedett terasszal! Kocsibeállóval! Kuriózum! Egyedülálló a piacon! Kizárólag irodánk kínálatában!
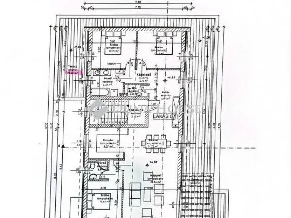
Szentendrén a Barackvirág utcában eladó egy 2020-ban épült 7 lakásos társasház 2. emeletén lévő 112 m2-es penthouse lakás + 110 m2-es terasszal.
Az ingatlan az alábbi helyiségekből áll: nappali-ebédlő-konyha, 3 szoba 2 fürőszoba + wc, előszoba, közlekedő, hatalmas 110 m2-es terasz!
Az épület melynek tetején ékszerdobozként ül ez a lakás igényes és minőségi anyagokból épült. Az ingatlan gondosan válogatott Revoir, Paris hideg és Kaindl meleg-burkolatokkal, összesen 224 m2 alapterülettel várja új tulajdonosát. A 112 m2-es terasz kiváló lehetőséget nyújt azoknak, akik szeretnek kertészkedni, vagy grill partit rendezni. A vihar és forró napsütés ellen is védelmet nyújtó belga, Renson Lagune távirányítós motoros pergola, 4000*3000*3250mm-es méretben.
Az ingatlanhoz tartoziik 2 db kocsibeálló + 10.000.000,- Ft-ért!
További információért hívjon!
Referencia szám: LK043363-ZE
Tulajdonságok
Téglalakás
Újszerű
Gázkazán
2020
Nem adta meg a hirdető
Vedd fel a kapcsolatot a hirdetővel
+36 26 664 0
Hitelkalkulátor
Második évtől
727 299 Ft A 13. hónaptól
7,99%
Végig fix Futamidő: 20 év Banki visszahívás
Az OTP Bank munkatársai a neked megfelelő napszakban veszik fel veled a kapcsolatot.Hitelfelvétel esetén akár egy héttel rövidebb lehet az ügyintézés.
Ez az ingatlan a nálunk meglévő adatok alapján azonnali értékbecslésre alkalmas lehet.
A becslés a hirdető által megadott adatokon alapul. A jelen tájékoztatás nem minősül ajánlattételnek és nem teljes körű, az egyes feltételek a hitelbírálat eredményétől függően változhatnak. Kérjük, a részletekről tájékozódj az OTP Bank fiókjaiban vagy az OTP Bank honlapján közzétett vonatkozó Üzletszabályzatokból és Hirdetményekből.
Vedd fel a kapcsolatot a hirdetővel
+36 26 664 0
Vedd fel a kapcsolatot a hirdetővel
+36 26 664 0
UI_KIT.CHARACTER_COUNTER__COMPONENT.REMAINING_SPACE__SR_ONLYUI_KIT.CHARACTER_COUNTER__COMPONENT.MAXIMUM_CHARACTER__SR_ONLY
Hasonló eladó ingatlanok Szentendrén
Frissítve: 8 napja
20
174,5 M Ft 1 237 589 Ft/m²
Eladó lakás, Szentendre

Frissítve: 8 napja
20
174,5 M Ft 1 544 248 Ft/m²
Eladó lakás, Szentendre

Frissítve: 8 napja
20
174,5 M Ft 1 544 248 Ft/m²
Eladó lakás, Szentendre


Fedezd fel a
hasonló lakásokat!Még további lakások Pest megyében 169 M Ft körüli értékben
Tovább a hirdetésekhez Frissítve: ma
20
174,5 M Ft 1 544 248 Ft/m²
Eladó lakás, Szentendre

Frissítve: 8 napja
20
174,5 M Ft 1 544 248 Ft/m²
Eladó lakás, Szentendre

Frissítve: 8 napja
20
174,5 M Ft 1 544 248 Ft/m²
Eladó lakás, Szentendre


Töltsd fel hirdetésed ingyenesen!
Egyszerű
