+10 fotó
Hirdetéskód: 8783895
Referenciaszám: H509899-5082775
Frissítve: 2 napja
Szigetszentmiklós eladó téglalakás 4 szobás: 74,95 millió Ft
74,95 millió Ft
936 875 Ft/m²
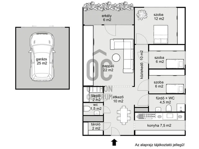
80 m²
4 szoba
földszint
Eladó lakás Szigetszentmiklós
Szigetszentmiklóson ideális otthon: tágas nappali + 3 szoba + garázs!
Családi otthont keresel?
Akár 3%-os Otthon Start hitellel? Rendben!
Itt az otthon, ahol mindenki elfér, és minden megvan, amire csak szükséged lehet!
A lakásról
Szigetszentmiklós központi, mégis csendes részén eladó egy 80 m²-es, földszinti, világos és modern lakás,
25 m²-es saját garázzsal zárt udvarban, gondozott közös kerttel.
Fantasztikus elosztásának és praktikus megoldásainak köszönhetően igazi családi fészek!
Amit imádni fogsz benne
Tágas nappali–étkező–konyha – ahol együtt lehet a család
3 külön nyíló hálószoba – mindenkinek saját birodalom
Fürdőszoba WC-vel + külön WC kézmosóval – nincs több reggeli sorban állás
Erkély – világos, hangulatos, tökéletes reggeli kávé helyszín
Gardrób, tárolók, sok pakolóhely
Modern műanyag nyílászárók redőnnyel és szúnyoghálóval
️ Konvektoros fűtés + hűtő-fűtő klíma
Bútorok megegyezés szerint maradhatnak
Nyugodt, barátságos lakóközösség
Saját 25 m²-es garázs zárt udvarban – biztonságos parkolás + extra tároló
Elhelyezkedés
Központi, mégis csendes és családbarát környék
Aldi, Pláza, kávézó, bank, buszmegálló – mindössze 50 méterre!
A garázs az ingatlannal együtt megvásárolandó, ára: +9.900.000 Ft
Miért különleges?
Ez a lakás ritka kincs Szigetszentmiklóson –
modern, világos, tágas otthon, amit tényleg csak be kell lakni!
Hívj most, és szeress bele személyesen!
Referencia szám: H509899-ZE
Tulajdonságok
Téglalakás
Jó állapotú
Gáz (konvektor)
1980
D
Vedd fel a kapcsolatot a hirdetővel
+36 70 465 6
Hitelkalkulátor
Második évtől
322 551 Ft A 13. hónaptól
7,99%
Végig fix Futamidő: 20 év Banki visszahívás
Az OTP Bank munkatársai a neked megfelelő napszakban veszik fel veled a kapcsolatot.Hitelfelvétel esetén akár egy héttel rövidebb lehet az ügyintézés.
Ez az ingatlan a nálunk meglévő adatok alapján azonnali értékbecslésre alkalmas lehet.
A becslés a hirdető által megadott adatokon alapul. A jelen tájékoztatás nem minősül ajánlattételnek és nem teljes körű, az egyes feltételek a hitelbírálat eredményétől függően változhatnak. Kérjük, a részletekről tájékozódj az OTP Bank fiókjaiban vagy az OTP Bank honlapján közzétett vonatkozó Üzletszabályzatokból és Hirdetményekből.
Vedd fel a kapcsolatot a hirdetővel
+36 70 465 6
Vedd fel a kapcsolatot a hirdetővel
+36 70 465 6
UI_KIT.CHARACTER_COUNTER__COMPONENT.ACTUAL_CHARACTER__SR_ONLY UI_KIT.CHARACTER_COUNTER__COMPONENT.MAXIMUM_CHARACTER__SR_ONLY
Hasonló eladó ingatlanok Szigetszentmiklóson
Frissítve: 1 hónapja
5
82 M Ft 976 190 Ft/m²
Eladó lakás, Szigetszentmiklós

Frissítve: 14 napja
12
79,9 M Ft 1 401 754 Ft/m²
Eladó lakás, Szigetszentmiklós

Frissítve: 9 napja
6
70 M Ft 833 333 Ft/m²
Eladó lakás, Szigetszentmiklós


Fedezd fel a
hasonló lakásokat!Még további lakások Szigetszentmiklóson 74,95 M Ft körüli értékben
Tovább a hirdetésekhez Frissítve: 21 napja
6
70 M Ft 833 333 Ft/m²
Eladó lakás, Szigetszentmiklós

Frissítve: 2 napja
6
70 M Ft 833 333 Ft/m²
Eladó lakás, Szigetszentmiklós

Frissítve: ma
6
70 M Ft 833 333 Ft/m²
Eladó lakás, Szigetszentmiklós

