+6 fotó
Hirdetéskód: 8814278
Referenciaszám: 706000338
Feltöltve: 1 napja
Szombathely eladó téglalakás 2 szobás: 39,5 millió Ft
39,5 millió Ft
877 778 Ft/m²
45 m²
2 szoba
1. emelet
Szombathelyen, új építésű 45 m2 lakás a Ferro Parkban eladó!
Új lakópark Szombathelyen: FERRO PARK.
Utolsó kis méretű lakások még elérhetők!!
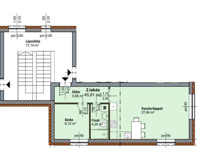
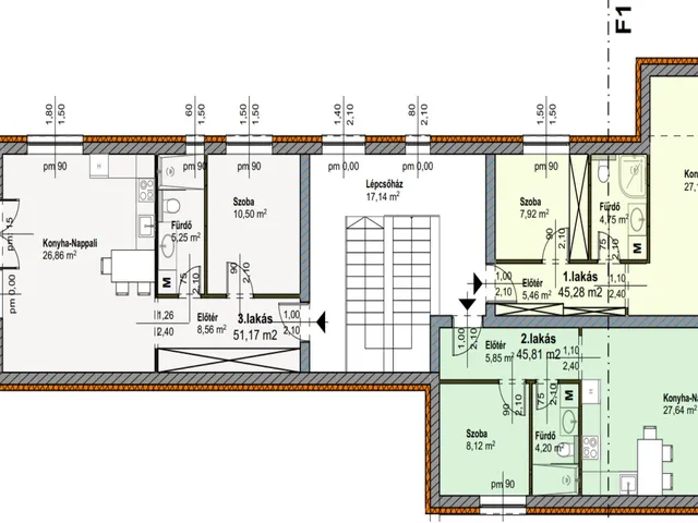
Lakás méret: 45,81 m2
Garázs még vásárolható: 8 millió forint
Az építés éve 2026-ban lesz. Átadás 2027. nyár
Szombathely belvárosának határai folyamatason tolódnak ki. Új lakóparkot építünk közel a Fő térhez. amelynek lakásai garantáltan értékálló otthonok és jövedelmező befektetések lesznek a leendő tulajdonosoknak.
Fedezze fel a FERRO PARK, épületeinek lakásait!
Befektetési és hitelezési szaktanácsadásban is segítem az Ön döntését!
A környékről:
Szombathely belvárosának vonzásában, a Jáki ut elején, a FERRO Park lakónegyed részeként épül a legújabb, épületünk modern beruházása üzletekkel és lakásokkal.
Az épületről:
A három épületben Összesen 33 darab, teljesen újépítésű lakás lesz a beruházás része! Kitűnő választás lehet Önnek: ha otthonát alakítja ki benne vagy, ha befektetésként tekint rá.
Az épület kettő szintes lesz. A földszinten garázsok lesznek.
A lakás észak-nyugat tájolású. Fűtése központi padlófűtés lesz lakásonként szabályozható egyedi mérőegységgel felszerelve.
A műszaki tartalomról:
Téglaszerkezetű falazat, külső 15 cm-es hőszigeteléssel.
Fokozottan hőszigetelt, háromrétegű műanyag ablakok.
A bejárati ajtó fehér színű, 5 ponton záródó biztonsági zárral.
A beltéri ajtók egyedileg lesznek kiválasztva.
A fűtése hőszivattyúval, a lakásokban egyedi hőmennyiség szabályozóval, padlófűtéssel.
A melegvíz-ellátást eco villanybojler biztosítja.
A padlóburkolatot, a csempét, a járólapot és a szanitereket a vásárló választja ki.
A lakás konyhabútort nem tartalmaz.
Az ingatlanhoz saját, kizárólagos használatú és tulajdonú, lezárható parkoló tartozik.
Miért válassza ezt az ingatlant?
Egyedi fizetési ütemezést határozunk meg az ügyféllel!
A lakások 30 % önrésszel már lefoglalhatóak.
A kivitelezés során az építő kifejezetten figyel a magas minőségre, a magas műszaki tartalomra, illetve a pontos kivitelezésre.
Kapcsolat:
Ha felkeltette érdeklődését az ingatlan, akkor kérem keressen, hogy a részletekről is beszélhessek Önnel.
Akár csak befektetné a pénzét vagy szeretne költözni, most egy igazán értékes ingatlanhoz juthat kedvező áron!
Garantáljuk, hogy a teljes lakóparki projekt megvalósulása során az Ön lakása értékálló, jó befektetés lesz.
Kérem hívjon, hogy további részletekről tájékoztathassam vagy keressen szaktanácsadásért.
Simon Zsolt
06209504680
ml.ingatlan1@gmail.com
Tulajdonságok
Téglalakás
1
Új építésű
Padlófűtés
2026
Nem adta meg a hirdető
Vedd fel a kapcsolatot a hirdetővel
+36 20 950 4
Hitelkalkulátor
Második évtől
169 990 Ft A 13. hónaptól
7,99% 8,49%
Végig fix Futamidő: 20 év Banki visszahívás
Az OTP Bank munkatársai a neked megfelelő napszakban veszik fel veled a kapcsolatot.Hitelfelvétel esetén akár egy héttel rövidebb lehet az ügyintézés.
Ez az ingatlan a nálunk meglévő adatok alapján azonnali értékbecslésre alkalmas lehet.
A becslés a hirdető által megadott adatokon alapul. A jelen tájékoztatás nem minősül ajánlattételnek és nem teljes körű, az egyes feltételek a hitelbírálat eredményétől függően változhatnak. Kérjük, a részletekről tájékozódj az OTP Bank fiókjaiban vagy az OTP Bank honlapján közzétett vonatkozó Üzletszabályzatokból és Hirdetményekből.
Vedd fel a kapcsolatot a hirdetővel
+36 20 950 4
Vedd fel a kapcsolatot a hirdetővel
+36 20 950 4
UI_KIT.CHARACTER_COUNTER__COMPONENT.REMAINING_SPACE__SR_ONLYUI_KIT.CHARACTER_COUNTER__COMPONENT.MAXIMUM_CHARACTER__SR_ONLY
Hasonló eladó ingatlanok Belváros városrészben
Frissítve: 11 napja
7
37,9 M Ft 1 114 706 Ft/m²
Eladó lakás, Szombathely, Belváros
Frissítve: 20 napja
5
37,9 M Ft 1 114 706 Ft/m²
Eladó lakás, Szombathely, Belváros
Frissítve: 8 napja
8
42 M Ft 954 545 Ft/m²
Eladó lakás, Szombathely, Belváros

Fedezd fel a
hasonló lakásokat!Még további lakások Szombathely, Belváros városrészben 39,5 M Ft körüli értékben
Tovább a hirdetésekhez Frissítve: 1 napja
17
36,9 M Ft 534 783 Ft/m²
Eladó lakás, Szombathely, Belváros
Frissítve: 20 napja
6
42,99 M Ft 796 111 Ft/m²
Eladó lakás, Szombathely, Belváros
Feltöltve: 15 napja
10
43 M Ft 651 515 Ft/m²
Eladó lakás, Szombathely, Belváros, Kiskar u.


Töltsd fel hirdetésed ingyenesen!
Egyszerű