+8 fotó
Hirdetéskód: 8714219
Referenciaszám: U0048183-5040145
Frissítve: ma
Vác eladó téglalakás 3 szobás: 79 millió Ft
79 millió Ft
1 462 963 Ft/m²
54 m²
3 szoba
földszint
Eladó lakás Vác, Bácska
ÖRÖK PANORÁMÁS ÚJ Építésű, NAPELEMES LAKÁSOK!
Vácon a Bácska dűlőben kínálunk eladásra teraszos, kertkapcsolatos lakásokat, a Pilis hegységre és a szentendrei szigetre néző panorámával.
Az épület dny-i tájolásának köszönhetően a lakások rendkívül világosak, benapozottak.
Magas műszaki tartalom, igényes kivitelezés referenciákkal bíró kivitelezőtől.
A korszerű technológiának és a napelemes rendszernek köszönhetően egy alacsony
költségen fenntartható értékálló ingatlant vásárolhatunk.
A három szintes négy lakásos társasház egy zárt telken kerül kialakításra.
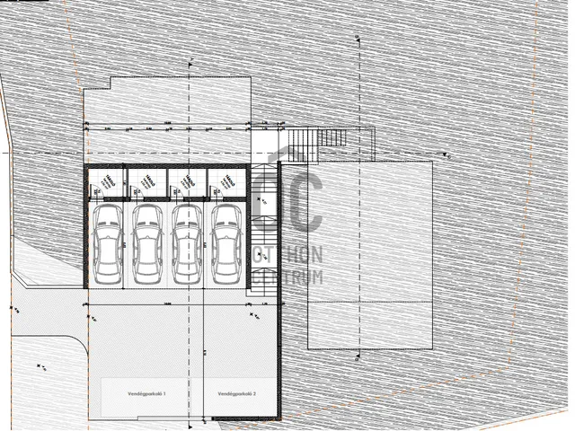
A garázs szinten fedett kocsibeálló és a hozzájuk tartozó tároló opcionálisan megvásárolható.
Valamennyi lakáshoz 1-1 nyitott udvari kocsibeálló tartozik.
Az A és B épületrészt egy külső lépcsősor választ el egymástól. Mindkét épületben, egy földszinti és egy emeleti lakás kap majd helyet.
GARÁZSZSZINT:
Az A épület garázsszintjén négy darab garázs és a hozzájuk tartozó tárolók kerülnek
majd kialakításra. Garázs+ tároló 10 M ft ellenében megvásárolható.
A ÉPÜLET:
A1 földszinti lakás 54 nm, 2 háló+ nappali, fürdő+ wc, wc+ mosdó, közlekedő, 23,8 nm fedett terasz kertkapcsolattal, udvari kocsibeálló.
A2 emeleti lakás 54 nm, 2 háló+ nappali, fürdő+ wc, wc+ mosdó, közlekedő, 12,2 nm fedett terasz, udvari kocsibeálló.
B ÉPÜLET:
B1 földszinti lakás 54 nm, 2 háló+nappali, fürdő+wc, wc+mosdó, közlekedő
22,9 nm fedett terasz kertkapcsolattal, udvari kocsibeálló.
B2 emeleti lakás 54 nm, 2 háló+nappali, fürdő+wc, wc+mosdó, közlekedő
14,6 nm fedett terasz, udvari kocsibeálló.
Jelen hirdetés azB1-jelű jobb oldali földszinti lakás leírása.
A lakások tervezett átadása 2026 nyara.
MŰSZAKI TARTALOM:
Vasbeton sávalap. Teherhordó falazat 25 cm-es Porotherm falazóelem 15 cm-es homlokzati, szigeteléssel. Monolit vasbeton födém. Korcolt lemez fedés. Műanyag 3 rétegű, nyílászárók szúnyoghálóval redőnnyel szerelve.
Hőszivattyús fűtés és melegvízellátás. Padlófűtés és mennyezethűtés.
5 KW napelemes rendszer tároló akkumulátorral.
Amivel segíteni tudjuk az Ön ingatlanvásárlását:
-ingyenes, bankfüggetlen hitelügyintézés
-jogi háttér
-földhivatali ügyintézés
-energetikai tanúsítvány készítése
-értékbecslés
Amennyiben a hirdetés felkeltette érdeklődését kérem forduljon hozzám bizalommal.
Referencia szám: U0048183
Tulajdonságok
Téglalakás
Új építésű
Egyéb
2025
Nem adta meg a hirdető
Vedd fel a kapcsolatot a hirdetővel
+36 70 469 3
Hitelkalkulátor
Második évtől
339 980 Ft A 13. hónaptól
7,99% 8,49%
Végig fix Futamidő: 20 év Banki visszahívás
Az OTP Bank munkatársai a neked megfelelő napszakban veszik fel veled a kapcsolatot.Hitelfelvétel esetén akár egy héttel rövidebb lehet az ügyintézés.
Ez az ingatlan a nálunk meglévő adatok alapján azonnali értékbecslésre alkalmas lehet.
A becslés a hirdető által megadott adatokon alapul. A jelen tájékoztatás nem minősül ajánlattételnek és nem teljes körű, az egyes feltételek a hitelbírálat eredményétől függően változhatnak. Kérjük, a részletekről tájékozódj az OTP Bank fiókjaiban vagy az OTP Bank honlapján közzétett vonatkozó Üzletszabályzatokból és Hirdetményekből.
Vedd fel a kapcsolatot a hirdetővel
+36 70 469 3
Vedd fel a kapcsolatot a hirdetővel
+36 70 469 3
UI_KIT.CHARACTER_COUNTER__COMPONENT.REMAINING_SPACE__SR_ONLYUI_KIT.CHARACTER_COUNTER__COMPONENT.MAXIMUM_CHARACTER__SR_ONLY
Hasonló eladó ingatlanok Bácskán
Frissítve: 2 napja
11
79 M Ft 1 196 970 Ft/m²
Eladó lakás, Vác, Bácska

Frissítve: 9 hónapja
1
85,99 M Ft 1 131 447 Ft/m²
Eladó lakás, Vác, Kisderecske
Frissítve: 16 napja
20
72,5 M Ft 979 730 Ft/m²
Eladó lakás, Vác


Fedezd fel a
hasonló lakásokat!Még további lakások Vácon 79 M Ft körüli értékben
Tovább a hirdetésekhez Frissítve: ma
20
72,5 M Ft 979 730 Ft/m²
Eladó lakás, Vác

Frissítve: 17 napja
12
79 M Ft 1 196 970 Ft/m²
Eladó lakás, Vác
Frissítve: 6 hónapja
1
74,7 M Ft 900 000 Ft/m²
Eladó lakás, Vác, Belváros, Rákóczi tér 17.
