+5 fotó
Hirdetéskód: 8815006
Referenciaszám: M309077-5100843
Frissítve: 1 napja
Velence eladó téglalakás 4 szobás: 96,9 millió Ft
96,9 millió Ft
1 020 000 Ft/m²
95 m²
4 szoba
Eladó Lakás, Velence
Prémium minőségű, energiatakarékos otthon Velencén - testre szabható belső kialakítással!
Foglalja le most új otthonát egy mediterrán hangulatú, 4 lakásos társasházban, amely nemcsak modern megjelenésével, hanem kiemelkedő műszaki tartalmával is kitűnik! A legkorszerűbb építési technológiák és minőségi anyagok garantálják a kényelmet, a fenntarthatóságot és a hosszú távú értékállóságot.
Az ingatlan családi házas környezeteben található, 1,5 km-re a Velencei-tó partjától! Séta távolságra található bevásárlási lehetőség, néhány perc autóútra: iskola, gyógyszertár és orvosi rendelő érhető el.
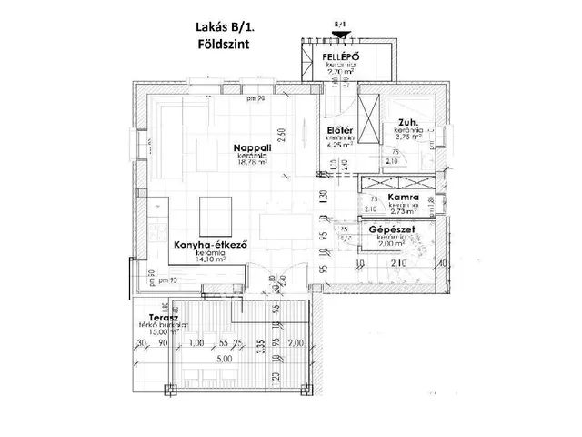
Lakótér: 95,76 m2 (Fsz: 48,31 m2 + Emelet: 47,45 m2)
Terasz: 15 m2
Saját kert: 221 m2
Főbb jellemzők:
- Energiatakarékos levegő-víz hőszivattyús fűtés padlófűtéssel - a kellemes hőérzetért és alacsony rezsiköltségekért
- Diszkrét magasoldali fan-coil hűtés, amely hatékonyan hűti otthonát a nyári hónapokban
- Tartós szerkezet: 30 cm vastag tégla főfalak 15 cm-es hőszigeteléssel
- Kiváló nyílászárók: kívül színezett, 3 rétegű műanyag ablakok beépített redőnnyel és szúnyoghálóval
- Fokozott födémszigetelés: 35 cm vastag fújt szigetelés a tetőtér alatt
- Hangszigetelt gépészeti kapcsolat a két lakás között, dupla fallal és extra szigeteléssel
A hideg- és melegburkolatok szabadon választhatóak:
- Hidegburkolat: 8.000 Ft/m2-ig
- Melegburkolat: 7.000 Ft/m2-ig
Extrák:
- Ajándék belsőépítészeti tervezés 500.000 Ft értékben, hogy új otthona tökéletesen tükrözze az Ön ízlését és életstílusát!
- Ajándék fügefa minden lakáshoz - a békés, napfényes és mediterrán hangulat szimbólumaként!
Az építkezés már elkezdődött! Várható átadás: 2026
Az OTP Ingatlanpont teljeskörű ügyintézéssel áll az eladók és a vevők rendelkezésére! A választott ingatlan finanszírozásához kedvezményes hitel- és pénzügyi konstrukciókat kínálunk. Az adásvétel teljes folyamatát végigkísérjük és ügyvédi közreműködést biztosítunk!
Amennyiben felkeltett érdeklődését az ingatlan, várom megtisztelő hívását akár hétvégén is!
Tulajdonságok
2026
Nem adta meg a hirdető
Vedd fel a kapcsolatot a hirdetővel
+36 30 322 9
Hitelkalkulátor
Második évtől
417 013 Ft A 13. hónaptól
7,99% 8,49%
Végig fix Futamidő: 20 év Banki visszahívás
Az OTP Bank munkatársai a neked megfelelő napszakban veszik fel veled a kapcsolatot. A becslés a hirdető által megadott adatokon alapul. A jelen tájékoztatás nem minősül ajánlattételnek és nem teljes körű, az egyes feltételek a hitelbírálat eredményétől függően változhatnak. Kérjük, a részletekről tájékozódj az OTP Bank fiókjaiban vagy az OTP Bank honlapján közzétett vonatkozó Üzletszabályzatokból és Hirdetményekből.
Vedd fel a kapcsolatot a hirdetővel
+36 30 322 9
Vedd fel a kapcsolatot a hirdetővel
+36 30 322 9
UI_KIT.CHARACTER_COUNTER__COMPONENT.REMAINING_SPACE__SR_ONLYUI_KIT.CHARACTER_COUNTER__COMPONENT.MAXIMUM_CHARACTER__SR_ONLY
Hasonló eladó ingatlanok Velencén
Frissítve: 9 napja
11
95,92 M Ft 1 498 704 Ft/m²
Eladó lakás, Velence

Frissítve: 10 napja
10
91,13 M Ft 1 340 074 Ft/m²
Eladó lakás, Velence

Frissítve: 9 napja
14
94,9 M Ft 1 029 285 Ft/m²
Eladó lakás, Velence


Fedezd fel a
hasonló lakásokat!Még további lakások Velencén 96,9 M Ft körüli értékben
Tovább a hirdetésekhez Frissítve: 10 napja
14
94,9 M Ft 1 031 522 Ft/m²
Eladó lakás, Velence

Frissítve: 10 napja
14
99,9 M Ft 1 051 579 Ft/m²
Eladó lakás, Velence

Frissítve: 4 napja
8
96,9 M Ft 1 020 000 Ft/m²
Eladó lakás, Velence

