

+11 fotó
Hirdetéskód: 8734763
Frissítve: ma
Múcsony eladó telephely 720 m² alapterületű: 85 millió Ft
85 millió Ft
118 056 Ft/m²
720 m²
2827 m²
5 szoba
Eladó ipari telephely Múcsonyban – főút mellett, kiváló adottságokkal!
Múcsony külterületi részén, közvetlenül a főút mellett kínálunk megvételre egy összközművesített, ipari árammal ellátott telephelyet, amely ideális választás vállalkozások számára.
A telephely azonnal költözhető.
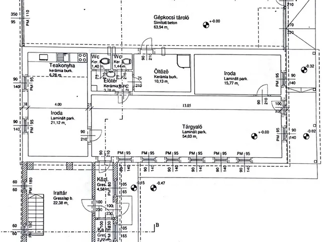
Főbb paraméterek:
• Telek mérete: 2827 m²
• Irodaépület: 260 m²
• Könnyűszerkezetes csarnok: 300 m², rugalmasan hasznosítható
• Fedett beálló: 160 m² az udvaron
• Teljes közművesítettség, ipari áram
• Kiváló megközelíthetőség, közvetlen főúti kapcsolat
A telephely széles körű felhasználási lehetőséget kínál: kereskedelmi, ipari vagy logisztikai tevékenységre egyaránt alkalmas.
Ha olyan telephelyet keres, amely azonnal használatba vehető, jól megközelíthető és biztos hátteret nyújt vállalkozása számára, ez az ingatlan tökéletes választás!
Tulajdonságok
Telephely
1
Újszerű
Gázkazán
2015
Nem adta meg a hirdető
Vedd fel a kapcsolatot a hirdetővel
+36 70 326 3
Vedd fel a kapcsolatot a hirdetővel
+36 70 326 3
Vedd fel a kapcsolatot a hirdetővel
+36 70 326 3
UI_KIT.CHARACTER_COUNTER__COMPONENT.REMAINING_SPACE__SR_ONLYUI_KIT.CHARACTER_COUNTER__COMPONENT.MAXIMUM_CHARACTER__SR_ONLY
Hasonló eladó ingatlanok Múcsonyon
Frissítve: 2 napja

6
79 M Ft 123 438 Ft/m²
Eladó kereskedelmi és ipari ingatlan, Felsőzsolca
Frissítve: 6 napja

17
90 M Ft
Eladó kereskedelmi és ipari ingatlan, Miskolc
Frissítve: 8 napja

20
84,9 M Ft 1 463 793 Ft/m²
Eladó kereskedelmi és ipari ingatlan, Tokaj


Fedezd fel a
hasonló hirdetéseket!Még további kereskedelmi és ipari ingatlanok Borsod-Abaúj-Zemplén megyében 85 M Ft körüli értékben
Tovább a hirdetésekhez Frissítve: 9 napja

20
84,99 M Ft 71 601 Ft/m²
Eladó kereskedelmi és ipari ingatlan, Ózd

Frissítve: 9 napja

16
85 M Ft 85 000 000 Ft/m²
Eladó kereskedelmi és ipari ingatlan, Mezőkövesd

Feltöltve: 4 hónapja

9
84,8 M Ft 400 000 Ft/m²
Eladó kereskedelmi és ipari ingatlan, Tiszaújváros, Szederkényi út

Töltsd fel hirdetésed ingyenesen!
Egyszerű