+17 fotó
Hirdetéskód: 8784393
Referenciaszám: 2-5635
Feltöltve: 7 napja
Budapest XIII. kerület eladó üzlet: 183,9 millió Ft
183,9 millió Ft
* A m² árat a hirdető adta meg.
XIII. Kerület, Váci út, 329 m²-es, üzlethelyiség utcai bejárattal
Kiváló lehetőség cégeknek, vállalkozásoknak a 13. kerület központi részén!
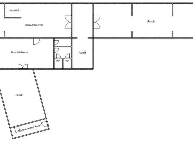
Eladó a Váci úton, a Dózsa György út és az Árpádhíd között egy dupla utcai bejáratos üzlethelyiség külön irodával és hatalmas pinceszinti raktárral.
A teljes ingatlan összesen 329 m², mely áll egy 45 m²-es üzlethelyiségből, egy 20 m²-es irodából, illetve a pinceszinten egy 264 m²-es raktárból. A teljes terület ezen egységek egybenyitásával jött létre. A fűtésről, és a meleg víz ellátásáról modern gázkazán gondoskodik, minden fogyasztásmérők alapján fizetendő. Az ingatlannak négy bejárata van, kettő az utcáról nyílik, kettő pedig a társasház udvaráról (külön az irodának, és külön a pinceszintnek). Az alsó szinten kialakításra került még egy irodahelyiség, külön mellékhelyiségek, két bemutató terem és raktárhelyiségek is.
Az ingatlan per és tehermentes, cég tulajdonában van, a teljes terület egyben kerül értékesítésre. Az eladás valamelyest sürgős, ezért az ár természetesen alkuképes.
Várom megkeresését, bármely egyéb kérdésben állok rendelkezésére az ingatlannal kapcsolatban, akár hétvégén is.
Tulajdonságok
Üzlet
Nem adta meg a hirdető
Vedd fel a kapcsolatot a hirdetővel
+36 70 443 2
Vedd fel a kapcsolatot a hirdetővel
+36 70 443 2
Vedd fel a kapcsolatot a hirdetővel
+36 70 443 2
UI_KIT.CHARACTER_COUNTER__COMPONENT.REMAINING_SPACE__SR_ONLYUI_KIT.CHARACTER_COUNTER__COMPONENT.MAXIMUM_CHARACTER__SR_ONLY
Hasonló eladó ingatlanok Budapest XIII. kerületben
Frissítve: ma
6
186 M Ft 284 839 Ft/m²
Eladó kereskedelmi és ipari ingatlan, Budapest XIII. kerület

Frissítve: 22 napja
6
194,97 M Ft 1 969 437 Ft/m²
Eladó kereskedelmi és ipari ingatlan, Budapest XIII. kerület

Frissítve: ma
6
489 725 Euro
190,01 M Ft 1 919 326 Ft/m²
Eladó kereskedelmi és ipari ingatlan, Budapest XIII. kerület


Fedezd fel a
hasonló hirdetéseket!Még további kereskedelmi és ipari ingatlanok Budapesten 183,9 M Ft körüli értékben
Tovább a hirdetésekhez Feltöltve: 1 hónapja
2
188 M Ft 1 105 882 Ft/m²
Eladó kereskedelmi és ipari ingatlan, Budapest XIII. kerület
Frissítve: ma
6
489 725 Euro
190,01 M Ft 1 919 326 Ft/m²
Eladó kereskedelmi és ipari ingatlan, Budapest XIII. kerület

Frissítve: 27 napja
20
200 M Ft 1 886 783 Ft/m²
Eladó kereskedelmi és ipari ingatlan, Budapest XXII. kerület, Nagytétényi út


Töltsd fel hirdetésed ingyenesen!
Egyszerű
