+9 fotó
Hirdetéskód: 8219504
Referenciaszám: 113539
Frissítve: ma
Felsőnyárád eladó üzlet 72 m² alapterületű: 9,2 millió Ft
9,2 millió Ft
127 778 Ft/m²
72 m²
624 m²
3 szoba
Eladó 72 m2 üzlethelyiség, Felsőnyárád
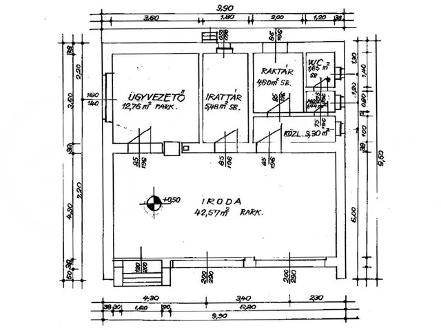
Felsőnyárádon, Kazincbarcikától 12 kilométere, Miskolctól 30 kilométerre található településen eladó egy 72 m2-es, 3 helyiséges irodaház 624 m2-es telken. Ár: 9.200.000.- Ft + Áfa.
A tulajdoni lapon "kivett irodaházként nyilvántartott".
Helyiség lista:
- 2 iroda
- irattár
- raktár
- mosdó
- WC.
- közlekedő
Műszaki leírás:
A kínált ingatlan földszintes tagolódású, tégla falszerkezetű, vasbeton gerenda födémes épület. Tetőformája összetett, fedése palafedés. Külső homlokzata kőporos vakolattal ellátott, homlokzati nyílászárói fa szerkezetű ablakok, illetve az utcafronti homlokzaton fém szerkezetűek. Fűtését gázkazán biztosítja radiátor hőleadókkal, melegvíz ellátását villanybojler biztosítja. A burkolatok a két irodában szalagparketta és mettlachi, a többi helyiségben vegyesen kerámia és mettlachi.
Környezet:
Az ingatlan a település központjában, a település főútja mellett, családi házak, boltok és szolgáltató helyiségek szomszédságában található.
Tulajdonságok
Nem adta meg a hirdető
Vedd fel a kapcsolatot a hirdetővel
+36 20 447 4
Vedd fel a kapcsolatot a hirdetővel
+36 20 447 4
Vedd fel a kapcsolatot a hirdetővel
+36 20 447 4
UI_KIT.CHARACTER_COUNTER__COMPONENT.REMAINING_SPACE__SR_ONLYUI_KIT.CHARACTER_COUNTER__COMPONENT.MAXIMUM_CHARACTER__SR_ONLY
Hasonló eladó ingatlanok Felsőnyárádon
Frissítve: 1 napja
20
8,49 M Ft 229 459 Ft/m²
Eladó kereskedelmi és ipari ingatlan, Miskolc

Frissítve: ma
10
9,2 M Ft 124 324 Ft/m²
Eladó kereskedelmi és ipari ingatlan, Monok

Frissítve: 1 éve
7
8,5 M Ft 250 000 Ft/m²
Eladó kereskedelmi és ipari ingatlan, Múcsony, Kossuth Lajos utca
Frissítve: ma
9
10,01 M Ft 111 290 Ft/m²
Eladó kereskedelmi és ipari ingatlan, Izsófalva, Izsó Miklós út

Frissítve: ma
6
8,86 M Ft 101 782 Ft/m²
Eladó kereskedelmi és ipari ingatlan, Aszaló, Rákóczi utca

Frissítve: 1 napja
8
10 M Ft 48 780 Ft/m²
Eladó kereskedelmi és ipari ingatlan, Gyöngyös

