+10 fotó
Hirdetéskód: 8918910
Referenciaszám: 393372
Frissítve: 17 napja
Gárdony eladó üzlet 38 m² alapterületű: 44,5 millió Ft
44,5 millió Ft
1,17 millió Ft/m²
38 m²
Eladó üzlet Gárdony, 38nm, 44.500.000Ft - Chernel István u.
Vip-004753. Gárdonyban, a Velencei-tó partjától mindössze 100 méterre ÚJ ÉPÍTÉSŰ társasház földszintjén 38m2-es, utcafronti üzlethelyiség/irodahelyiség eladó!
Az ingatlan kiváló elhelyezkedésű: mindössze 100 méterre található a Velencei-tó partjától, valamint a vasúti megálló is pár perc sétatávolságra elérhető.
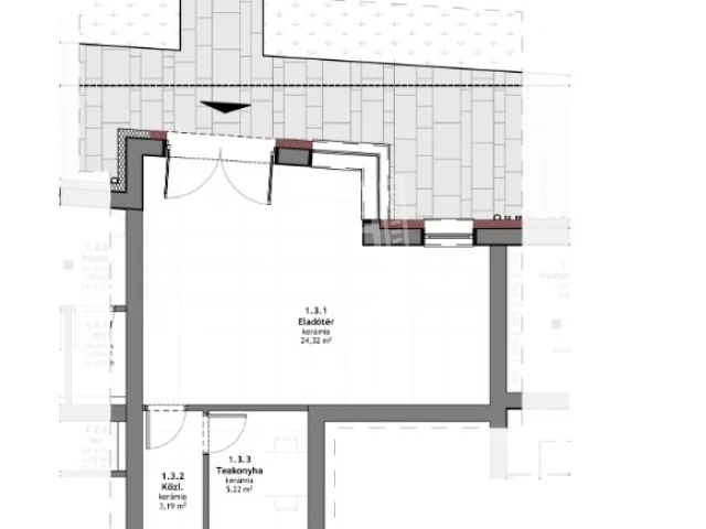
Beltéri elosztás:
Eladótér(nettó) 24,32 m²
Közlekedő(nettó) 3,19 m²
Teakonyha(nettó) 5,22 m²
Öltöző(nettó) 3,42 m²
WC(nettó) 1,93 m²
Összesen38,08 m²
Tájolása: ÉK
Minden közmű önállóan mérhető, fogyasztás alapján fizetendő.
A fűtést hőszivattyú biztosítja padlófűtéses hőleadással, klíma előkészítés kialakított.
Ingyenes parkolási lehetőség rendelkezésre áll a társasház környezetében, illetve lehetőség van felszíni parkolóhely megvásárlására a lakópark területén 2,5 M Ft-tól.
A társasház összesen 12 lakásból és 4 üzlethelyiségből áll –
tervezett műszaki átadás: 2026. szeptember.
Főbb műszaki paraméterek:
– padlófűtés
– klíma előkészítés
– egyéni mérőórák
– minőségi anyagok felhasználása
– felsőkategóriás belsőépítészeti kialakítás
– motoros redőnyök
– nyílászárók 3 rétegű üveggel
– választható hideg- és melegburkolat
– CPL fóliás beltéri ajtó választható színben
(Részletes műszaki leírás kérés esetén elérhető)
Eladási ár: 44,5 M Ft +Áfa
Az üzlethelyiség bérelhető is, bérleti díja: 220.000,- Ft + Áfa/ hó + rezsiköltség, illetve 2 havi kaució.
Elérhető földszinti, utcafronti irodák/üzlethelyiségek melyek megvásárolhatók, vagy kibérelhetők:
1. számú helyiség: 43m2 Eladási ára: 51.000.000.- forint / Bérleti díja: 250.000,- Ft + Áfa/ hó + rezsiköltség, illetve 2 havi kaució
2. számú helyiség: 127,9m2 Eladási ára: 130.000.000.- forint / Bérleti díja: 540.000,-Ft + Áfa/ hó + rezsiköltség, illetve 2 havi kaució
3. számú helyiség: 38m2 Eladási ára: 44.500.000.- forint / Bérleti díja: 220.000,-Ft + Áfa/ hó + rezsiköltség, illetve 2 havi kaució
4. számú helyiség: 36m2 Eladási ára: 45.000.000.- forint / Bérleti díja: 250.000,-Ft + Áfa/ hó + rezsiköltség, illetve 2 havi kaució
Ha felkeltette érdeklődését, hívja irodánkat bizalommal, éljen ingyenes, személyre szabott hitelügyintézés szolgáltatásunkkal. Segítünk továbbá adásvételhez szükséges ügyvédi közreműködésben, energetikai tanúsítvány, valamint értékbecslés elkészítésében.
For English details please send us a message or an e-mail, thank you. ...TOVÁBBI, TÖBBEZRES INGATLAN KÍNÁLAT: www.gdn-ingatlan.hu - GDN azonosító: 393372
Tulajdonságok
Üzlet
Új építésű
Hőszivattyú
2026
Nem adta meg a hirdető
Vedd fel a kapcsolatot a hirdetővel
+36 20 583 7
Vedd fel a kapcsolatot a hirdetővel
+36 20 583 7
Vedd fel a kapcsolatot a hirdetővel
+36 20 583 7
UI_KIT.CHARACTER_COUNTER__COMPONENT.ACTUAL_CHARACTER__SR_ONLY UI_KIT.CHARACTER_COUNTER__COMPONENT.MAXIMUM_CHARACTER__SR_ONLY
Hasonló eladó ingatlanok Gárdonyban
Frissítve: 17 napja
15
45 millió Ft 1,25 millió Ft/m²
Eladó kereskedelmi és ipari ingatlan, Gárdony

Frissítve: 17 napja
7
45 millió Ft 450 ezer Ft/m²
Eladó kereskedelmi és ipari ingatlan, Mór
Frissítve: 1 napja
15
44,9 millió Ft 160,4 ezer Ft/m²
Eladó kereskedelmi és ipari ingatlan, Sárszentmihály
Frissítve: 3 napja
20
42,9 millió Ft 997,7 ezer Ft/m²
Eladó kereskedelmi és ipari ingatlan, Martonvásár

Feltöltve: 10 hónapja
1
44,9 millió Ft 522,1 ezer Ft/m²
Eladó kereskedelmi és ipari ingatlan, Tác
Frissítve: 17 napja
9
43 millió Ft 32,3 ezer Ft/m²
Eladó kereskedelmi és ipari ingatlan, Aba

