+10 fotó
Hirdetéskód: 8839038
Referenciaszám: M319709
Frissítve: 1 hónapja
Miskolc eladó üzlet 209 m² alapterületű: 123,9 millió Ft
123,9 millió Ft
592,8 ezer Ft/m² *
* A m² árat a hirdető adta meg.
209 m²
Leírás
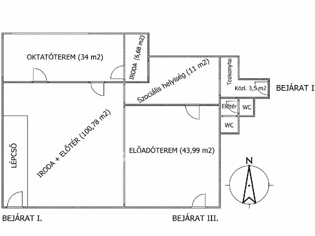
Miskolc abszolút belvárosában 209 nm-es, ELSŐ EMELETI, EXKLUZÍV ÜZLETI INGATLAN eladó!
Eladásra kínálunk Miskolc belvárosában, modern irodaházban egy újszerű, 209 nm-es ÜZLETI INGATLANT, mely jelenleg oktatási stúdióként funkcionál. Az ingatlan 2003-ban épült tégla szerkezettel, amelynek külső és belső állapota kiváló, folyamatosan karbantartott, így ideális környezetet biztosít a vállalkozások számára. A helyiséget házközponti fűtés, saját split klímás hűtő-fűtő rendszer, illetve szellőztetőrendszer teszi kényelmessé. A kupolának és a sok üvegfelületnek köszönhetően az üzlethelyiség napfényes, világos. Az utcafrontra nyíló hatalmas ablakok kiváló marketing felületet biztosítanak az üzleti tevékenységek reklámozására! Rendkívül jó elosztása miatt kiválóan alkalmas többféle üzleti tevékenységre, céges irodaként, rendelőnek, szépségszalonnak, call centernek, stb. Akadálymentes közlekedés biztosított, az ingatlan 2 lépcsőházból, illetve LIFT segítségével is megközelíthető!
A parkolás az utcán, mélygarázsban, fizetős rendszerben megoldott. Az ingatlan bútorozottan is megvásárolható, mely külön megállapodás tárgyát képezi.
Amennyiben hirdetésem felkeltette érdeklődését, várom megtisztelő hívását!
Tulajdonságok
Üzlet
Átlagos
Elektromos
2005
Nem adta meg a hirdető
Vedd fel a kapcsolatot a hirdetővel

+36 70 439 8
Vedd fel a kapcsolatot a hirdetővel

+36 70 439 8
Vedd fel a kapcsolatot a hirdetővel

+36 70 439 8
UI_KIT.CHARACTER_COUNTER__COMPONENT.ACTUAL_CHARACTER__SR_ONLY UI_KIT.CHARACTER_COUNTER__COMPONENT.MAXIMUM_CHARACTER__SR_ONLY
Hasonló eladó ingatlanok Belváros városrészben
Frissítve: 11 napja
17
125 millió Ft 706,2 ezer Ft/m²
Eladó kereskedelmi és ipari ingatlan, Miskolc, Belváros
Frissítve: 6 napja
11
123,9 millió Ft 592,8 ezer Ft/m²
Eladó kereskedelmi és ipari ingatlan, Miskolc, Belváros

Frissítve: 29 napja
15
125,2 millió Ft 65,4 ezer Ft/m²
Eladó kereskedelmi és ipari ingatlan, Miskolc

Fedezd fel a
hasonló hirdetéseket!Még további kereskedelmi és ipari ingatlanok Borsod-Abaúj-Zemplén megyében 123,9 M Ft körüli értékben
Tovább a hirdetésekhez Frissítve: 9 napja
20
125,2 millió Ft 65,4 ezer Ft/m²
Eladó kereskedelmi és ipari ingatlan, Miskolc, Újdiósgyőr

Frissítve: 1 hónapja
20
125,2 millió Ft 65,4 ezer Ft/m²
Eladó kereskedelmi és ipari ingatlan, Miskolc, Újdiósgyőr
Frissítve: 29 napja
14
115 millió Ft 144,3 ezer Ft/m²
Eladó kereskedelmi és ipari ingatlan, Miskolc
