+1 fotó
Hirdetéskód: 8700228
Referenciaszám: 715300144
Frissítve: 6 napja
Nyíregyháza eladó üzlet 82 m² alapterületű: 81,61 millió Ft
81,61 millió Ft
995 244 Ft/m²
82 m²
82 m²
Eladó prémium kategóriás iroda Nyíregyháza belvárosában – Kossuth utcán!
Kivételes lehetőség Nyíregyháza szívében! A belváros legfrekventáltabb részén, modern, A+ energetikai besorolású társasház földszintjén kínálunk eladásra egy 81,61 m²-es, exkluzív kivitelezésű irodát.
Az épületről röviden:
Épület típusa: Új építésű, lifttel felszerelt, modern társasház
Energetika: A+ besorolás – rendkívül alacsony fenntartási költségek
Fűtés / hűtés: korszerű hőszivattyús rendszer – energiahatékony, kényelmes megoldás egész évben
Kivitelezés: magas minőségű építőanyagok, modern építészeti megoldások
Szintek:
Alagsor: teremgarázs (16 parkoló)
Földszint: teremgarázs (10 parkoló), tárolók, előcsarnok, iroda
1–4. emelet: 26 lakás.
Várható átadás:2026 év vége.
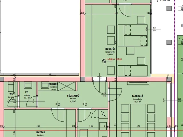
Iroda részletei:
Helyiségek:
Ügyfélváró
Irodatér
Tárgyaló
Teakonyha
Irattár
Közlekedő
2 db előtér
2 db külön WC
Burkolatok, beltéri ajtók, szaniterek, világítótestek:
A vevő ízlésének megfelelően választhatóak – lehetőség van a belső design teljes testreszabására.
Parkolás:
Opcionálisan vásárolható teremgarázs.
Áraink az ÁFÁ-T nem tartalmazzák.
A remek lokáció, a prémium technikai háttér és a rugalmas belső kialakítás miatt kiváló befektetés, akár kiadásra is.Vegye fel velünk a kapcsolatot még ma, hogy elsőként tekinthesse meg ezt a kivételes irodát, és személyre szabott ajánlatot kapjon.
Tulajdonságok
Üzlet
1
Új építésű
Hőszivattyú
2026
A+
Vedd fel a kapcsolatot a hirdetővel
+36 20 944 6
Vedd fel a kapcsolatot a hirdetővel
+36 20 944 6
Vedd fel a kapcsolatot a hirdetővel
+36 20 944 6
UI_KIT.CHARACTER_COUNTER__COMPONENT.REMAINING_SPACE__SR_ONLYUI_KIT.CHARACTER_COUNTER__COMPONENT.MAXIMUM_CHARACTER__SR_ONLY
Hasonló eladó ingatlanok Belváros városrészben
Frissítve: 1 hónapja
4
85,9 M Ft 1 176 712 Ft/m²
Eladó kereskedelmi és ipari ingatlan, Nyíregyháza, Belváros
Frissítve: 13 napja
6
85 M Ft 594 406 Ft/m²
Eladó kereskedelmi és ipari ingatlan, Nyíregyháza, Belváros
Feltöltve: 4 napja
11
84,9 M Ft 404 286 Ft/m²
Eladó kereskedelmi és ipari ingatlan, Nyíregyháza, Belváros

Fedezd fel a
hasonló hirdetéseket!Még további kereskedelmi és ipari ingatlanok Szabolcs-Szatmár-Bereg megyében 81,61 M Ft körüli értékben
Tovább a hirdetésekhez Frissítve: 21 napja
20
85 M Ft 594 406 Ft/m²
Eladó kereskedelmi és ipari ingatlan, Nyíregyháza
Frissítve: 2 napja
15
79,9 M Ft 271 769 Ft/m²
Eladó kereskedelmi és ipari ingatlan, Nyíregyháza, Oros
Frissítve: 6 hónapja
20
87,9 M Ft 283 548 Ft/m²
Eladó kereskedelmi és ipari ingatlan, Nyíregyháza, Malomkert

Töltsd fel hirdetésed ingyenesen!
Egyszerű