+17 fotó
Hirdetéskód: 8774104
Referenciaszám: 389149
Frissítve: 9 napja
Szigetszentmárton eladó vendéglő és étterem 312 m² alapterületű: 148,5 millió Ft
148,5 millió Ft
475 962 Ft/m²
312 m²
Eladó vendéglő, étterem Szigetszentmárton, 312nm, 148.500.000Ft - Ráckevei út
Eladó lakóház lakással és vendéglátóegységgel!
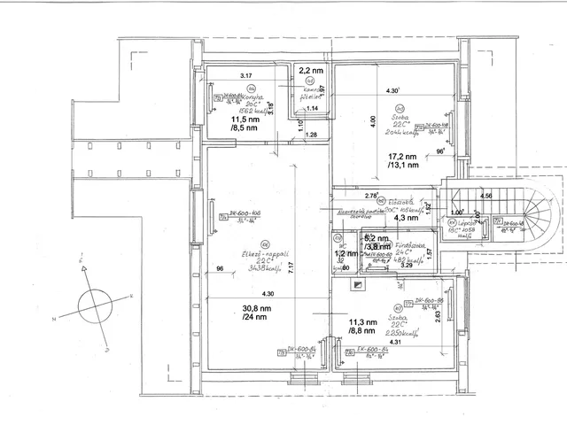
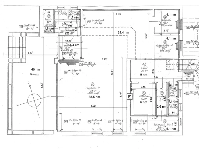
Szigetszentmártonban kínálunk megvételre egy jelenleg ételbárként üzemelő, tulajdoni lap szerint : kivett lakóház, udvar, tároló, cukrászműhely, cukrászda besorolású 312 nm alapterületű ingatlant 1218 nm-es telken.
Az ingatlan 1993-ban Porotherm téglából épült, 5 cm-es külső szigeteléssel.
A földszinten melynek hasznos alapterülete: 106,6 nm + 40 nm terasz, és a pinceszinten 103,2 nm működik az ételbár, a tetőtérben egy 82,3 nm alapterületű lakás van kialakítva.
A lakás alapterülete 82,3 nm.
Beosztása-
- előszoba,
- nappali+ étkező,
- konyha,
- kamra,
- hálószoba,
- hálószoba,
- fürdőszoba,
- WC.
A lakásrészben 2021-ben történt felújítás:
- új burkolatok, fürdőszoba, konyhabútor új ajtókat kapott, új főzőlap,
sütő, elszívó,
- új klíma, új villanybojler,
- az eredeti fa, dupla thermo üvegezésű nyílászárókat átfestették.
A lakásnak külön mérőórái vannak.
2021-ben a termelő részben végzett felújítások:
- új műanyag nyílászárók, részleges padlófelújítás,
- hűtőkamra ajtaját cserélték, új aggregátor,
A fűtést és melegvizet gázkazán biztosítja radiátoros hőleadással.
- ipari gázóra és ipari áram van.
- az ingatlanban 2 db hűtő-fűtő klíma működik.
A telken található még egy 60 nm-es épület, 2 autónak garázs+ tároló, tetőszerkezetét 2020-ban felújították.
Az udvar térkövezett, több autónak beállási lehetőséget biztosítva.
Az ingatlannak két utcáról van bejárata.
Amivel segítjük az Ön ingatlanvásárlását:
- ingyenes hitelügyintézés,
- jogi háttér,
- földhivatali ügyintézés,
- energetikai tanúsítvány,
- a vevő számára az ingatlanközvetítés ingyenes.
Irodánk 30 éves szakmai tapasztalattal áll ügyfelei rendelkezésére!
Várom szíves megkeresését! ...TOVÁBBI, TÖBBEZRES INGATLAN KÍNÁLAT: www.gdn-ingatlan.hu - GDN azonosító: 389149
Tulajdonságok
Vendéglő és étterem
Jó állapotú
Gáz (héra)
1993
Nem adta meg a hirdető
Vedd fel a kapcsolatot a hirdetővel
+36 70 269 5
Vedd fel a kapcsolatot a hirdetővel
+36 70 269 5
Vedd fel a kapcsolatot a hirdetővel
+36 70 269 5
UI_KIT.CHARACTER_COUNTER__COMPONENT.ACTUAL_CHARACTER__SR_ONLY UI_KIT.CHARACTER_COUNTER__COMPONENT.MAXIMUM_CHARACTER__SR_ONLY
Hasonló eladó ingatlanok Szigetszentmártonban
Frissítve: 15 napja
3
143 M Ft 238 333 Ft/m²
Eladó kereskedelmi és ipari ingatlan, Cegléd

Frissítve: 13 napja
20
145 M Ft 107 328 Ft/m²
Eladó kereskedelmi és ipari ingatlan, Őrbottyán

Frissítve: 17 napja
3
139 M Ft 146 316 Ft/m²
Eladó kereskedelmi és ipari ingatlan, Szigethalom

Fedezd fel a
hasonló hirdetéseket!Még további kereskedelmi és ipari ingatlanok Pest megyében 148,5 M Ft körüli értékben
Tovább a hirdetésekhez Frissítve: 13 napja
9
135 M Ft 268 924 Ft/m²
Eladó kereskedelmi és ipari ingatlan, Tápiószentmárton

Frissítve: 15 napja
19
149 M Ft 227 481 Ft/m²
Eladó kereskedelmi és ipari ingatlan, Nagykőrös

Frissítve: 15 napja
19
140 M Ft 254 545 Ft/m²
Eladó kereskedelmi és ipari ingatlan, Pilisszentiván, Szabadság út


