+11 fotó
Hirdetéskód: 8895069
Referenciaszám: M322868
Feltöltve: ma
Budapest XIII. kerület kiadó csúsztatott zsalus lakás 1+1 fél szobás: 200 ezer Ft
200 ezer Ft/hó
3 922 Ft/m² *
* A m² árat a hirdető adta meg.
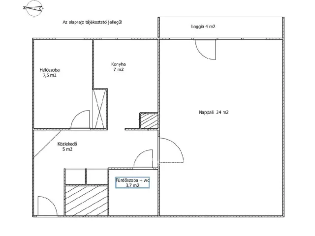
51 m²
1+1 fél szoba
8. emelet
Leírás
Figyelem! Az OTP Ingatlanpont kínálatában! Nyugalomra vágyik egy mozgalmas nap, a város zaja és nyüzsgése után? Kiadó XIII. kerület Göncz Árpád Városközpont közelében egy 2015-ben teljesen felújított, gépesített, kiváló közlekedésű, másfélszobás, VIII. emeleti, klímás, azonnal költözhető lakás. Az M3 metróvonal közelében található,kiváló közlekedéssel rendelkező, kellemes, hangulatos otthon. Tágas, világos, berendezett nappali, beépített szekrénnyel ellátott, nyugodt atmoszférájú hálószoba, étkező-konyha, kádas fürdőszoba, tágas előszoba várja új bérlőjét! Tökéletes választás lehet fiatal, ill. újrakezdő, gyermektelen pároknak vagy egyedülálló személynek, esetleg egyetemistának! A lakásban a dohányzás nem megengedett!!! Kisállat lehetséges. Tartozik hozzá egy kis tároló az épület pincéjében. A ház, ill. a lépcsőház rendezett. Közjegyzői kiköltözési nyilatkozat, 1 havi bérleti díj és 2 havi kaució megfizetése szükséges. Ha hirdetésünk felkeltette érdeklődését, kérem hívjon bizalommal a hét bármely napján! Az OTP Ingatlanpont teljes körű ügyintézéssel áll mind az eladók, a kiadók, vevők és a bérlők rendelkezésére! A bérleti szerződés megkötéséhez igény szerint megbízható ügyvédi és közjegyzői közreműködést biztosítunk.
Tulajdonságok
Csúsztatott zsalus lakás
Átlagos
Távfűtés
1970
Nem adta meg a hirdető
Vedd fel a kapcsolatot a hirdetővel
Puha Katalin Budapest XX. kerület Vörösmarty utca 72-76 - OTP Ingatlanpont Iroda Az iroda összes hirdetése
+36 20 965 7
Vedd fel a kapcsolatot a hirdetővel
Puha Katalin Budapest XX. kerület Vörösmarty utca 72-76 - OTP Ingatlanpont Iroda Az iroda összes hirdetése
+36 20 965 7
Vedd fel a kapcsolatot a hirdetővel
Puha Katalin Budapest XX. kerület Vörösmarty utca 72-76 - OTP Ingatlanpont Iroda Az iroda összes hirdetése
+36 20 965 7
UI_KIT.CHARACTER_COUNTER__COMPONENT.ACTUAL_CHARACTER__SR_ONLY UI_KIT.CHARACTER_COUNTER__COMPONENT.MAXIMUM_CHARACTER__SR_ONLY
Hasonló kiadó ingatlanok Budapest XIII. kerületben
Frissítve: 6 napja
12
220 000 Ft/hó 4 400 Ft/m²
Kiadó lakás, Budapest XIII. kerület, Máglya köz
Feltöltve: 1 hónapja
10
200 000 Ft/hó 5 000 Ft/m²
Kiadó lakás, Budapest XIII. kerület, Csata utca
Frissítve: 15 napja
6
213 000 Ft/hó 4 630 Ft/m²
Kiadó lakás, Budapest XIII. kerület, Karikás Frigyes utca

Fedezd fel a
hasonló lakásokat!Még további lakások Budapest XIII. kerületben 200 ezer Ft/hó körüli értékben
Tovább a hirdetésekhez Frissítve: 15 napja
20
220 000 Ft/hó 6 111 Ft/m²
Kiadó lakás, Budapest XIII. kerület, Kerekes utca
Frissítve: 1 napja
5
210 000 Ft/hó 5 250 Ft/m²
Kiadó lakás, Budapest XIII. kerület, Hegedűs Gyula utca
Frissítve: ma
9
220 000 Ft/hó 3 860 Ft/m²
Kiadó lakás, Budapest XIII. kerület

