+17 fotó
Hirdetéskód: 8949879
Referenciaszám: 394239
Feltöltve: 5 napja
Tura kiadó ikerház 3 szobás: 250 ezer Ft
250 ezer Ft/hó
2 427 Ft/m²
103 m²
630 m²
3 szoba
Kiadó ikerház Tura, 103nm, 250.000Ft - Csendes utcában
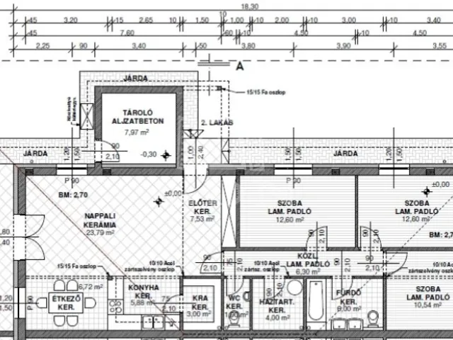
Kiadásra kínálok Tura csendes utcájában egy újépítésű ikerház felet, mely nettó 102,86 nm, bruttó 140,33 nm, 3 szobás és 630 nm-es saját telekrésszel rendelkezik.
Magas minőségű anyagok felhasználásával készült, szinte 0 energiaigényű, H-tarifás mérővel, hőszivattyú + klímával ellátott, padlófűtéses hőleadással.
Kérem, olvassák el a bérbevételi feltételek!
- legalább fél éves igazolható munkaviszony
- erkölcsi bizonyítvány
- munkáltatói igazolás
- bérleti díj: 250.000 Ft/hó
- rezsi költség: számla alapján
- kaució: min. 2 havi kaukció
- bérleti szerződés: határozatlan idejű, de minimum 1 év!
Kizárólag közjegyző által írt bérleti szerződés, mely a bérlő költsége!
Műszaki és egyégg információk:
Alapterület: 102,86 nm lakóterület
Fűtés: padlófűtés hőszivattyúról + klíma
Melegvíz: hőszivattyú
Felszereltség:
Gépesített konyha
tárolórendszerrel ellátott kamra
Helyiségek:
3 db hálószoba
konyha+étkező+nappali
vendég WC
előtér
gépészeti/háztartási helyiség
kamra
fürdő
terasz
További információkért és megtekintési időpontért keressen bizalommal! S.S. ...TOVÁBBI, TÖBBEZRES INGATLAN KÍNÁLAT: www.gdn-ingatlan.hu - GDN azonosító: 394239
Tulajdonságok
Ikerház
1
Új építésű
Hőszivattyú
2026
20 m²
A+
Vedd fel a kapcsolatot a hirdetővel
+36 30 556 5
Vedd fel a kapcsolatot a hirdetővel
+36 30 556 5
Vedd fel a kapcsolatot a hirdetővel
+36 30 556 5
UI_KIT.CHARACTER_COUNTER__COMPONENT.ACTUAL_CHARACTER__SR_ONLY UI_KIT.CHARACTER_COUNTER__COMPONENT.MAXIMUM_CHARACTER__SR_ONLY
Hasonló kiadó ingatlanok Turán
Frissítve: 4 napja
20
260 000 Ft/hó 1 857 Ft/m²
Kiadó családi ház, Galgahévíz
Frissítve: 12 napja
9
250 000 Ft/hó 3 205 Ft/m²
Kiadó házrész, Gödöllő, Fenyvesi nagyút

Frissítve: 2 napja
9
250 000 Ft/hó 3 205 Ft/m²
Kiadó házrész, Gödöllő

Frissítve: 12 napja
12
250 000 Ft/hó 7 143 Ft/m²
Kiadó családi ház, Délegyháza

Frissítve: 5 napja
20
240 000 Ft/hó 5 333 Ft/m²
Kiadó családi ház, Biatorbágy

Feltöltve: 1 napja
11
240 000 Ft/hó 6 857 Ft/m²
Kiadó családi ház, Érd

