+16 fotó
Hirdetéskód: 8881443
Referenciaszám: M293317-4882352
Frissítve: 4 napja
Budapest V. kerület kiadó téglalakás 3 szobás: 990 ezer Ft
990 ezer Ft/hó
7 984 Ft/m²
124 m²
3 szoba
2. emelet
Kiadó Lakás, Budapest 5. ker.
Kiadó luxuslakás a V. kerület szívében, a Petőfi Sándor utcában!
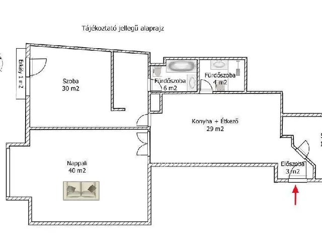
Budapest egyik legexkluzívabb környékén, a Kígyó Udvar közvetlen szomszédságában, kiadó egy 127 m2-es, igényesen kialakított, jó állapotú tégla lakás. Az ingatlan tágas belső tereivel, magas belmagasságával és modern felszereltségével minden kényelmi igényt kielégít.
Az ingatlan főbb jellemzői:
Alapterület: 127 m2
Szobák száma: 3 (2 tágas hálószoba + világos nappali).
Állapot: jó állapotú, luxuskomforttal.
Elrendezés: különálló modern konyha és étkező, fürdőszoba külön és egyben is.
Emelet: 2. emeleten, liftes házban.
Kilátás: utcai, erkély 1 m2
Belmagasság: 3 méternél magasabb, elegáns térérzetet nyújt.
Klíma és fűtés: légkondicionáló, fan-coil és gázkazán.
Bútorozottság: megállapodás szerint.
Környék és közlekedés:
A lakás Budapest V. kerületének egyik legkeresettebb részén található, kiváló közlekedési lehetőségekkel. A belváros nyüzsgése és a Duna közelsége egyaránt kényelmet biztosít, miközben a környék patinás eleganciája emeli az ingatlan értékét.
Bevásárlás és szórakozás: éttermek, kávézók, boltok a közelben.
Tömegközlekedés: metró, villamos és buszmegállók rövid sétatávolságra.
Parkolás: teremgarázs hely biztosított.
Költségek:
Havi bérleti díj: érdeklődésre.
Közös költség: 24.000 Ft/hó.
Rezsi: kb. 40.000 Ft/hó (fogyasztás szerint).
Egyéb információk:
Min. bérleti idő: 12 hónap.
Kisállat nem hozható.
Azonnal költözhető!
Kiváló választás lakásként, irodaként vagy rendelőként is, az elegáns környezethez méltó színvonalon.
Hívjon most, és tekintse meg ezt az exkluzív ingatlant személyesen!
Referenciaszám: M293317
Referencia szám: M293317-ZE
Tulajdonságok
Téglalakás
Felújított
Egyéb
1914
Nem adta meg a hirdető
Vedd fel a kapcsolatot a hirdetővel
Urbán Ferenc Krisztián OTPip - Csongrád Fő utca 54 - OTP Ingatlanpont Iroda Az iroda összes hirdetése
+36 30 588 0
Vedd fel a kapcsolatot a hirdetővel
Urbán Ferenc Krisztián OTPip - Csongrád Fő utca 54 - OTP Ingatlanpont Iroda Az iroda összes hirdetése
+36 30 588 0
Vedd fel a kapcsolatot a hirdetővel
Urbán Ferenc Krisztián OTPip - Csongrád Fő utca 54 - OTP Ingatlanpont Iroda Az iroda összes hirdetése
+36 30 588 0
UI_KIT.CHARACTER_COUNTER__COMPONENT.ACTUAL_CHARACTER__SR_ONLY UI_KIT.CHARACTER_COUNTER__COMPONENT.MAXIMUM_CHARACTER__SR_ONLY
Hasonló kiadó ingatlanok Budapest V. kerületben
Frissítve: 1 napja
17
990 000 Ft/hó 7 795 Ft/m²
Kiadó lakás, Budapest V. kerület
Frissítve: 13 napja
19
990 000 Ft/hó 7 984 Ft/m²
Kiadó lakás, Budapest V. kerület

Frissítve: 13 napja
14
2 900 Euro/hó
1,1 M Ft/hó 10 523 Ft/m²
Kiadó lakás, Budapest V. kerület, Veres Pálné utca

Fedezd fel a
hasonló lakásokat!Még további lakások Budapest V. kerületben 990 ezer Ft/hó körüli értékben
Tovább a hirdetésekhez Feltöltve: 11 hónapja
1
2 800 Euro/hó
1,07 M Ft/hó 10 458 Ft/m²
Kiadó lakás, Budapest V. kerület, Szarka utca 7
Frissítve: 13 napja
20
2 900 Euro/hó
1,1 M Ft/hó 10 668 Ft/m²
Kiadó lakás, Budapest V. kerület, Nádor utca
Frissítve: ma
10
1,06 M Ft/hó 13 109 Ft/m²
Kiadó lakás, Budapest V. kerület, Párizsi utca

