+13 fotó
Hirdetéskód: 8950045
Referenciaszám: M326106
Frissítve: 2 napja
Budapest XIII. kerület kiadó téglalakás 2 szobás: 350 ezer Ft
350 ezer Ft/hó
7 447 Ft/m² *
* A m² árat a hirdető adta meg.
47 m²
2 szoba
2. emelet
Leírás
NEM AI ....inkább egy FANTASZTIKUS GYÖNGYSZEM
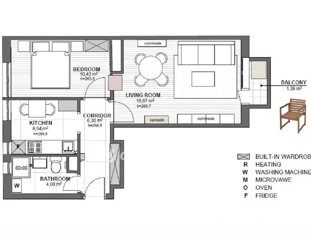
Budapesten, a XIII. kerületben, központi elhelyezkedéssel, mégis csendes utcában, KIADÓ egy 47 nm-es, 2 szobás, erkélyes, teljeskörűen felújított, bútorozott lakás egy rendezett, 1962-ben épült szövetkezeti ház 2. emeletén, megbízható, hosszú távú bérlő részére.
LAKÁS JELLEMZŐI:
- Teljeskörűen felújított, egyedi design és különleges hangulat
- Csendes, parkra néző ablakok, világos terek
- DNy-i tájolás
- Bútorzott állapotban kiadó
- Nappali + külön nyíló hálószoba
- Erkély, kellemes kilátással
- Új nyílászárók redőnnyel + belső ajtók is
- Fürdőszoba és WC egy helyiségben
KÉNYELEM ÉS EXTRÁK:
- Héra gázfűtés a szobákban
- Elektromos kandalló a nappaliban
- Vadonatúj, gépesített konyha: beépített sütő és tűzhely, hűtő, mosogatógép
- Mosógép a fürdőszobában
- Folyosón beépített, felújított szekrények
- Egyedi világítás és design elemek minden helyiségben
HÁZ és KÖRNYÉK:
- 1962-ben épült, rendezett társasház
- Kulturált lakóközösség
- Pár perc a metró és egyéb tömegközlekedés
- Pár percre bevásárlási lehetőség
BÉRLETI FELTÉTELEK:
- Hosszú távra kiadó - min. 1 év
- 2 havi kaució + 1 havi bérleti díj induláskor
- Közjegyzői okirat szükséges (bérlő költségére)
- Kisállat és gyermek nem hozható
- Nem dohányzó bérlő
Központi elhelyezkedés, mégis nyugodt, zöld környezet - ritka kombináció a városban.
További információért és megtekintés miatt hívjon bizalommal!
Tulajdonságok
Téglalakás
1
Újszerű
Gáz (héra)
1962
1,4 m²
Nem adta meg a hirdető
Vedd fel a kapcsolatot a hirdetővel
Váradi Orsolya Budapest XI. kerület Bartók Béla út 62 - OTP Ingatlanpont Iroda Az iroda összes hirdetése
+36 30 475 7
Vedd fel a kapcsolatot a hirdetővel
Váradi Orsolya Budapest XI. kerület Bartók Béla út 62 - OTP Ingatlanpont Iroda Az iroda összes hirdetése
+36 30 475 7
Vedd fel a kapcsolatot a hirdetővel
Váradi Orsolya Budapest XI. kerület Bartók Béla út 62 - OTP Ingatlanpont Iroda Az iroda összes hirdetése
+36 30 475 7
UI_KIT.CHARACTER_COUNTER__COMPONENT.ACTUAL_CHARACTER__SR_ONLY UI_KIT.CHARACTER_COUNTER__COMPONENT.MAXIMUM_CHARACTER__SR_ONLY
Hasonló kiadó ingatlanok Angyalföld városrészben
Frissítve: 4 napja
20
1 000 Euro/hó
375 000 Ft/hó 5 682 Ft/m²
Kiadó lakás, Budapest XIII. kerület, Angyalföld

Frissítve: 9 napja
8
320 000 Ft/hó 6 400 Ft/m²
Kiadó lakás, Budapest XIII. kerület, Angyalföld, Babér utca
Frissítve: 1 hónapja
15
370 000 Ft/hó 4 568 Ft/m²
Kiadó lakás, Budapest XIII. kerület, Angyalföld

Fedezd fel a
hasonló lakásokat!Még további lakások Budapest XIII. kerületben 350 ezer Ft/hó körüli értékben
Tovább a hirdetésekhez Frissítve: 5 napja
20
359 000 Ft/hó 6 190 Ft/m²
Kiadó lakás, Budapest XIII. kerület, Angyalföld, Úszódaru
Feltöltve: 4 napja
8
345 000 Ft/hó 8 625 Ft/m²
Kiadó lakás, Budapest XIII. kerület, Angyalföld, Népfürdő utca
Frissítve: ma
12
350 000 Ft/hó 4 545 Ft/m²
Kiadó lakás, Budapest XIII. kerület, Angyalföld


