+17 fotó
Hirdetéskód: 8870795
Referenciaszám: H512691
Feltöltve: ma
Budapest XIII. kerület kiadó téglalakás 2 szobás: 280 ezer Ft
280 ezer Ft/hó
3 733 Ft/m²
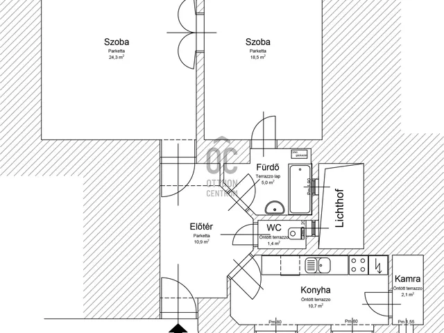
75 m²
2 szoba
3. emelet
Újlipótvárosi régies hangulatú, 2 szobás lakás - nyugodt otthon
Kiadó hosszú távra egy 2 szobás, 3. emeleti lakás Újlipótváros (XIII. kerület) csendesebb, közkedvelt részén.
Közlekedés, lokáció:
A lakás a XIII. kerületben a Dózsa György úti metrómegálló közelében van a Dunához közel eső részen. Tömegközlekedés szempontjából is kiváló, a közelben jár a 15-ös busz, a 75-ös és 79-es trolibusz. A Dunapart 4-500 m-re gyalog sincs messze. Közelben a Lehel téri piac, de a környéken megtalálható számos egyéb szolgáltatás is.
Épület:
Ez az épület 1909-10-ben épült Habich Károly műépítész tervei alapján, jellegzetes újlipótvárosi bérházként a szecessziós korban népies, historizáló motívumos homlokzati stílussal, hangsúlyos sarokház kialakítással. A lakás a többszöri felújítás ellenére is megőrizte régies jellegét, többek között eredeti öntött terazzo burkolattal rendelkezik még a konyhában és a fürdőben is, és eredeti fa nyílászárói is még korhűen őrzik a régi idők hangulatát. Lépcsőháza szépen felújított. Műkő lépcső és a díszes kovácsolt vas korlátok is kifogástalan állapotban díszítik a tágas lépcsőházat. Néhány éve kapott új, modern liftet is a hangulatos belső udvar felől. Függőfolyosós rendszerben közelíthetőek meg az egyes lakások a társasházban.
Parkolás utcán, fizető övezetben, bejelentkező lakóként kedvezményes parkolással.
Lakás:
3. emeleti, 2 szobás, fürdőszobás összkomfortos, jó állapotú, erkélyes, világos lakás utcára, illetve belső udvarra nyíló, nagyméretű ablakokkal. A nappali déli tájolású, az erkély városi panorámával rendelkezik, az utca felőli homlokzatra nyílik.
A lakás igény szerint bútorozható. Fűtése és meleg víz ellátása gáz kombi kazános egyedi fűtés, klíma nincs, de a lakás jól átszellőztethető.
Konyhája gépesített, azaz gáztűzhely, hűtő és mosógép is rendelkezésre áll.
Pincében van egy kb. 6 nm-es, zárható tároló is. Belső udvarban térkamerákkal figyelt, fedett kerékpártároló is igénybe vehető.
Kisállat tartás nem lehetséges.
Egyéb:
Bérleti díj 280 e Ft/hó + rezsi.
Hosszú távra kiadó lakás 1, max. 2 leinformálható, keresőképes felnőtt ember számára.
Két havi kaució és 1 havi bérleti díj megfizetése esetén azonnal birtokba vehető.
Találjuk meg együtt a legjobb megoldást!
Tulajdonságok
Téglalakás
Gázkazán
1910
3,3 m²
Nem adta meg a hirdető
Vedd fel a kapcsolatot a hirdetővel
+36 70 467 9
Vedd fel a kapcsolatot a hirdetővel
+36 70 467 9
Vedd fel a kapcsolatot a hirdetővel
+36 70 467 9
UI_KIT.CHARACTER_COUNTER__COMPONENT.REMAINING_SPACE__SR_ONLYUI_KIT.CHARACTER_COUNTER__COMPONENT.MAXIMUM_CHARACTER__SR_ONLY
Hasonló kiadó ingatlanok Újlipótváros városrészben
Feltöltve: 10 hónapja
1
280 000 Ft/hó 5 091 Ft/m²
Kiadó lakás, Budapest XIII. kerület, Újlipótváros
Frissítve: 3 napja
11
255 000 Ft/hó 6 892 Ft/m²
Kiadó lakás, Budapest XIII. kerület, Újlipótváros
Frissítve: 21 napja
16
295 000 Ft/hó 6 277 Ft/m²
Kiadó lakás, Budapest XIII. kerület, Újlipótváros

Fedezd fel a
hasonló lakásokat!Még további lakások Budapest XIII. kerületben 280 ezer Ft/hó körüli értékben
Tovább a hirdetésekhez Feltöltve: 7 hónapja
11
290 000 Ft/hó 5 472 Ft/m²
Kiadó lakás, Budapest XIII. kerület, Újlipótváros, Lehel utca
Frissítve: 5 napja
9
800 Euro/hó
308 000 Ft/hó 3 802 Ft/m²
Kiadó lakás, Budapest XIII. kerület, Újlipótváros

Feltöltve: 3 hónapja
10
300 000 Ft/hó 5 172 Ft/m²
Kiadó lakás, Budapest XIII. kerület, Újlipótváros

