+9 fotó
Hirdetéskód: 8815066
Referenciaszám: M316530-5100536
Feltöltve: ma
Csongrád kiadó üzlet 133 m² alapterületű: 300 ezer Ft
300 ezer Ft/hó
2 256 Ft/m²
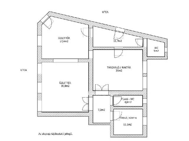
133 m²
3+1 fél szoba
Kiadó Üzlethelyiség, Csongrád
Kiadó Csongrád frekventált, könnyen megközelíthető helyén egy UTCAFRONTI, DUPLA BEJÁRATÚ, 133m2-es, üzlet- vagy irodahelyiség, mely pincehelyiséget is tartalmaz.
A belső tér 2025-ben felújításra került. A fűtést gazdaságos új kondenzációs gázkazán biztosítja, valamint 3 új klíma is beszerelésre került.
A minimális bérleti idő 1 év, de a hosszabb távú szerződések előnyt élveznek. A bérléshez 3 havi kaució szükséges. Elsősorban egyben kiadó, de igény szerint 2 részre tagolható a két külön utcai bejáratnak köszönhetően.
Bővebb információért hívjon bizalommal!
Az OTP Ingatlanpont teljes körű ügyintézéssel áll az eladók és vevők rendelkezésére. A kínálatunkból választott ingatlan finanszírozásához kedvezményes hitelkonstrukciót biztosítunk. Az OTP Banknál elérhető Babaváró, falusi CSOK, CSOK Plusz hitel és egyéb kölcsönök intézését díjmentesen vállaljuk. Az adásvételi szerződés megkötéséhez igény szerint ügyvédet biztosítunk. Irodáink Szentes, Petőfi utca 12. a buszmegálló felől, és Csongrád, Fő utca 54. szám alatt várjuk a személyes érdeklődőket. Válasszuk ki együtt az Önnek legmegfelelőbb ajánlatot banki sorban állás nélkül!
Referencia szám: M316530-ZE
Tulajdonságok
Üzlet
Jó állapotú
Gázkazán
1900
Nem adta meg a hirdető
Vedd fel a kapcsolatot a hirdetővel
+36 70 402 4
Vedd fel a kapcsolatot a hirdetővel
+36 70 402 4
Vedd fel a kapcsolatot a hirdetővel
+36 70 402 4
UI_KIT.CHARACTER_COUNTER__COMPONENT.REMAINING_SPACE__SR_ONLYUI_KIT.CHARACTER_COUNTER__COMPONENT.MAXIMUM_CHARACTER__SR_ONLY
Hasonló kiadó ingatlanok Csongrádon
Frissítve: 11 napja
12
300 000 Ft/hó 2 256 Ft/m²
Kiadó kereskedelmi és ipari ingatlan, Csongrád

Frissítve: 2 hónapja
20
305 509 Ft/hó 11 Ft/m²
Kiadó kereskedelmi és ipari ingatlan, Szeged, Klauzál tér
Frissítve: 23 napja
9
300 000 Ft/hó 1 408 Ft/m²
Kiadó kereskedelmi és ipari ingatlan, Szentes
Frissítve: 12 napja
15
300 000 Ft/hó 3 846 Ft/m²
Kiadó kereskedelmi és ipari ingatlan, Szeged, József Attila sugárút

Feltöltve: 20 napja
15
300 000 Ft/hó 3 846 Ft/m²
Kiadó kereskedelmi és ipari ingatlan, Szeged

Frissítve: 8 napja
5
300 000 Ft/hó 1 111 Ft/m²
Kiadó kereskedelmi és ipari ingatlan, Gyöngyös


Töltsd fel hirdetésed ingyenesen!
Egyszerű