Eladó ház Pest megyében - 10. oldal
1 158 találat

Friss hirdetések, amiket nem találsz meg más ingatlankereső portálon.
Fedezd fel elsőként a Zenga Premier címkés eladó ingatlanokat! További részletek A Duna House, OTP Ingatlanpont, Otthon Centrum és további hálózatok új, kizárólagos hirdetéseinek nagy részét a zenga.hu és koltozzbe.hu ingatlankeresőn láthatod legelőször, és a feltöltéstől két hétig nem érhetők el más ingatlankeresőn!

Milyen vételárban gondolkozhatok?
Az OTP Bank hitelezési szakértői személyre szabott kalkulációval, és előminősítéssel támogatják a biztosabb keresésedet.
Frissítve: ma
20
189,9 M Ft 730 385 Ft/m²

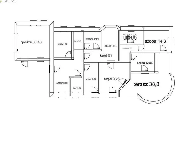
Eladó családi ház, Diósd
Frissítve: ma
10
176 M Ft 1 239 437 Ft/m²

Eladó családi ház, Diósd


