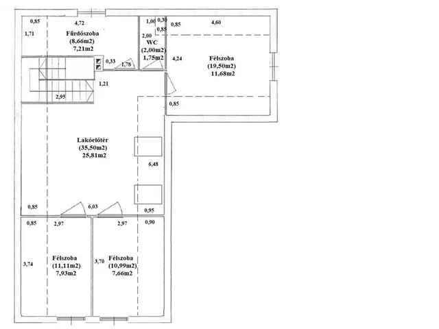
Eladó ház Budapest XXII. kerületben
107 találat

Friss hirdetések, amiket nem találsz meg más ingatlankereső portálon.
Fedezd fel elsőként a Zenga Premier címkés eladó ingatlanokat! További részletek A Duna House, OTP Ingatlanpont, Otthon Centrum és további hálózatok új, kizárólagos hirdetéseinek nagy részét a zenga.hu és koltozzbe.hu ingatlankeresőn láthatod legelőször, és a feltöltéstől két hétig nem érhetők el más ingatlankeresőn!

Ne aggódj a finanszírozás miatt!
Hitelt igényelnél? Segítünk, hogy biztosra mehess! Az OTP bank szakértője telefonos előminősítést készít neked.





